Architecture

13-02-2026

Photographer : Purnesh Dev Nikhanj

Text provided by Architect

Kalrav—“the chirping of birds”—is not just a house, but a memory brought back to life. For the couple who live here, it rekindles the cadence of another time: government homes with deep verandahs, mango trees casting shade, and mornings that began with birdsong. Their sons work away from home and visit often, so the design balances solitude with the anticipation of reunion. The new site in Mohali is compact and urban, yet the architecture restores that intimacy with nature, transforming everyday life into ritual.

The entrance opens not with grandeur, but with sky. A courtyard rises at the core, open and breathing, where shifting light and whispering leaves replace chandeliers and framed art. Its granite-clad verandah becomes a stage for monsoon rains, drifting clouds, and unhurried tea.

On the ground floor, the plan is woven for aging with grace. A master suite and formal lounge are located at the front, while the central zone opens into a soaring double-height lounge that invites light. The kitchen and dining embrace transparency so that every meal is shared with the presence of green.

Mohali,Punjab,India

Architects : Studio Vasaka
Area : 4825 sq. ft.
Year of Completion : 2025
Website : https://www.instagram.com/studiovasaka/tagged/?hl=en

Exterior view of Kalrav by Studio Vasaka


Entrance of Kalrav by Studio Vasaka


Foyer of Kalrav by Studio Vasaka


Living room of Kalrav by Studio Vasaka


Living room of Kalrav by Studio Vasaka


Living room of Kalrav by Studio Vasaka


Kitchen of Kalrav by Studio Vasaka


Courtyard of Kalrav by Studio Vasaka


Staircase of Kalrav by Studio Vasaka

The staircase anchors the home as a sculptural pause, metal and wood treads stretched wide enough to sit, linger, or read. Upstairs, bedrooms open into balconies that blur earth and sky. The terrace above remains uncluttered, left open to host gardens, gatherings, or silence.

Materials are tactile and timeless: exposed brick, grey stone tiles, and matte metal louvers articulate the façade, filtering light and softening views. Landscape elements, from the lawn to the gate, are integrated as part of the architectural composition. Internally, restraint defines the atmosphere, with white walls, custom wood furniture, brick insets, and stone flooring forming a calm, durable backdrop. In the lounge, a bespoke chandelier glows softly, not to impress but to cast a gentle rhythm across the walls.


Staircase of Kalrav by Studio Vasaka


Chandelier of Kalrav by Studio Vasaka


Bedroom 1 of Kalrav by Studio Vasaka

Kalrav listens more than it speaks. It listens to memory, to light, to the smallest patterns of daily life. It shelters without spectacle, making space for stillness, intimacy, and the quiet poetry of routine.


Bedroom 2 of Kalrav by Studio Vasaka


Bedroom 3 of Kalrav by Studio Vasaka


Toilet of Kalrav by Studio Vasaka


Elevation of Kalrav by Studio Vasaka


Ground Floor Plan of Kalrav by Studio Vasaka


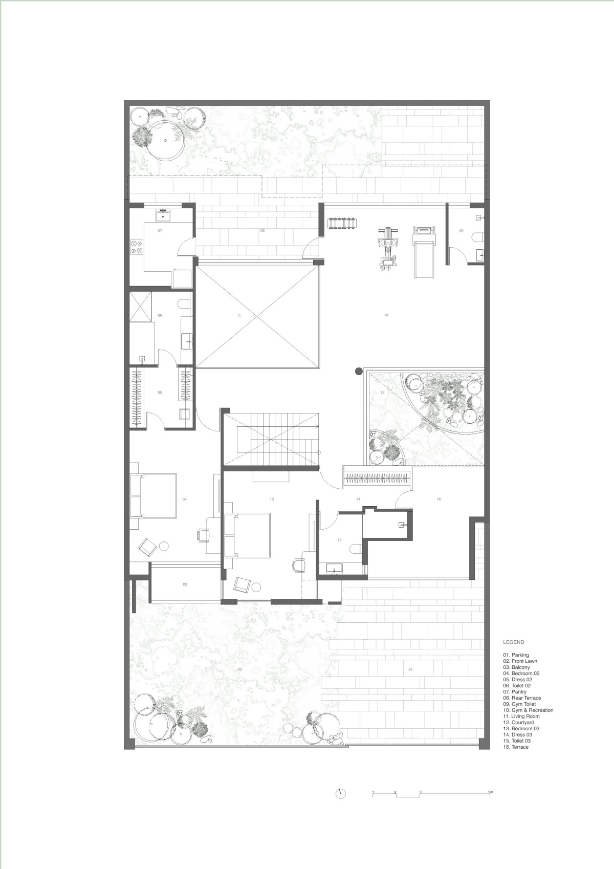
First Floor Plan of Kalrav by Studio Vasaka


Second Floor Plan of Kalrav by Studio Vasaka




Most Visited Articles




Subscribe

Get our latest article and updates delivered straight to your inbox.