Architecture

30-01-2026

Photographer : Ar. Vishnu V Nath

Text provided by Architect

Situated in the bustling residential neighbourhood of Koorkenchery, Thrissur, Dr. Lakshmi’s residence stands as a refined architectural response to a narrow 15.53 cent plot. The 4214.07 sq. ft. home is a seamless blend of modern and traditional elements, with an Indonesian inspired grey white exterior that exudes sophistication. The design strategically employs linear planning, integrating nature and light to create a harmonious living experience.

Given the site’s narrow constraints and the dense residential fabric surrounding it, the residence embraces an elongated spatial arrangement. The layout maximizes natural ventilation and daylight penetration through large openings, ensuring an airy and bright interior despite the spatial limitations.

The architecture draws from the client’s desired design language, an elegant fusion of modern minimalism and regionally inspired details., characterized by a minimalistic grey and white theme. This neutral palette highlights the interplay of textures and shadows, enhancing the house’s sculptural quality. The balance between modernity and tradition is further emphasized through traditional courtyard integration and material selection. A restrained yet elegant combination of contemporary finishes and locally inspired elements creates a timeless appeal.

Thrissur,Kerala,India

Architects : i2a Architects Studio
Area : 4214.07 sq. ft.
Year of Completion : 2024
Website : https://instagram.com/i2aarchitects?utm_medium=copy_link

Exterior view of A Line House by i2a Architects Studio


Entryway of A Line House by i2a Architects Studio


Waterbody of A Line House by i2a Architects Studio


Verandah of A Line House by i2a Architects Studio


Living room of A Line House by i2a Architects Studio

The residence is thoughtfully planned across two levels to accommodate the diverse needs of the family. The ground floor features two well-appointed bedrooms, a study room for focused work, and a dedicated guest living area. An open kitchen seamlessly connects to the main living spaces, enhancing functionality and interaction. The luxurious master bedroom includes an attached bathroom with a jacuzzi, ensuring comfort and relaxation. Large openings throughout the floor frame views the courtyard that follows a minimalist, raw aesthetic with a focus on textures rather than lush greenery. It features gravel, scattered rocks, and carefully placed plants, creating a balance between natural and architectural elements. The restrained material palette, combined with the interplay of light and shadow, enhances the courtyard’s sculptural quality. Instead of dense vegetation, the design embraces openness, allowing the selected plants to stand out as focal points within the space. This approach not only complements the residence’s modern theme but also reinforces a sense of tranquillity and understated elegance. allowing ample daylight to flood the interiors.


Passage to dining area of A Line House by i2a Architects Studio

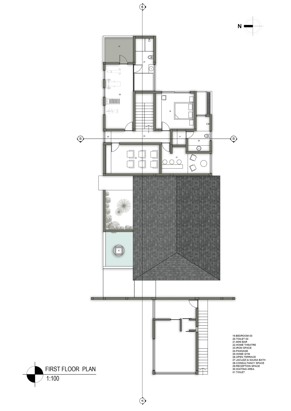
The first floor prioritizes privacy and recreation, comprising two additional bedrooms, a home theatre for entertainment, a stylish bar for social gatherings, and a dedicated gym promoting wellness. At the plot’s entrance, an independent clinic building functions as a professional space while maintaining separation from the main residence. Below the clinic, a well-designed porch provides shaded parking, maximizing the efficient use of available space.

While the residence predominantly follows a grey and white theme, the bar area on the first floor introduces a vibrant contrast. Featuring rich green tones, textured surfaces, and warm lighting, the space exudes an intimate yet lively atmosphere. The striking wave patterned mural, earthy flooring, and scalloped green tiles on the bar counter create a visually engaging composition. This design choice enhances the overall aesthetic, offering a cosy and sophisticated retreat within the modern home.


Courtyard of A Line House by i2a Architects Studio

Dr. Lakshmi’s residence exemplifies the harmony between modern design and traditional influences. The linear layout maximizes spatial efficiency, while large openings and courtyards ensure natural light and ventilation. Thoughtful material choices and a muted colour palette enhance elegance, creating a home that is both functionally and aesthetically enriching for its occupants.

Dr. Lakshmi’s residence exemplifies the harmony between modern desi and traditional influences. The linear layout maximises spatial efficiency, while large openings and courtyards ensure natural light and ventilation. Thoughtful material choices and a muted colour palette enhance elegance, creating a home that is both functionally and aesthetically enriching for its occupants.


Bar Area of A Line House by i2a Architects Studio


Staircase of A Line House by i2a Architects Studio


Bedroom of A Line House by i2a Architects Studio



Bedroom of A Line House by i2a Architects Studio


Bedroom of A Line House by i2a Architects Studio


Bedroom of A Line House by i2a Architects Studio


Site Plan of A Line House by i2a Architects Studio


Ground Floor Plan of A Line House by i2a Architects Studio


First Floor Plan of A Line House by i2a Architects Studio


Section AA of A Line House by i2a Architects Studio


Section BB of A Line House by i2a Architects Studio




Most Visited Articles




Subscribe

Get our latest article and updates delivered straight to your inbox.