Interior

27-08-2022

Photographer : Alexis Dornier

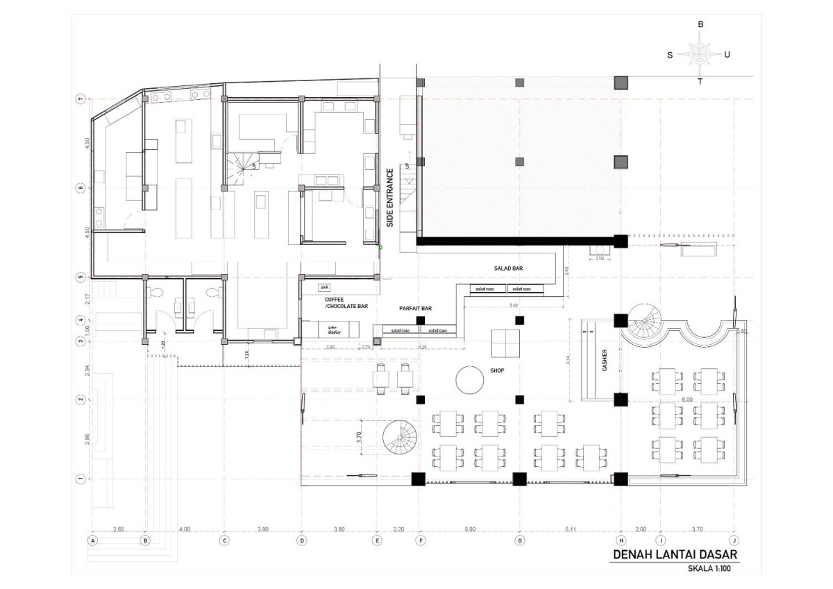
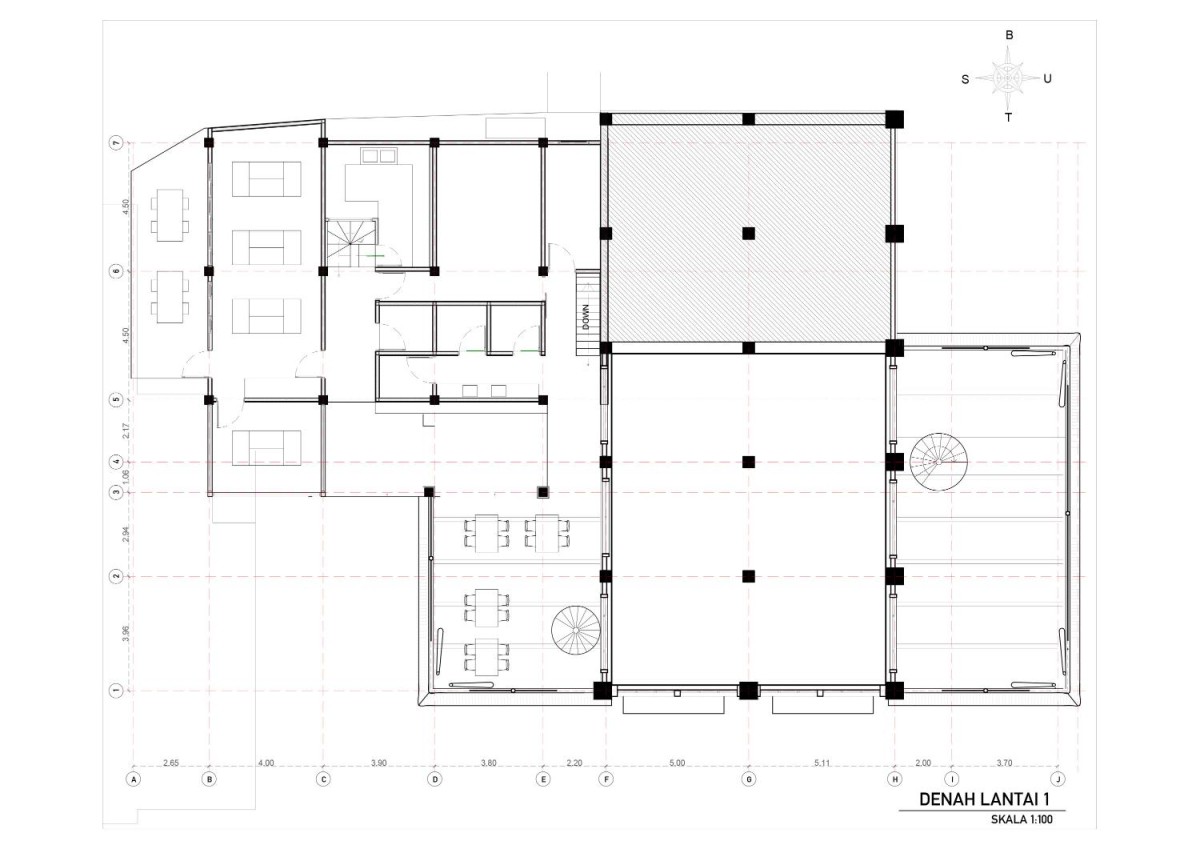
Alchemy Bali is the island's first 100% raw, organic, and vegan restaurant. it was established as a place for transformation in 2011 by a group of conscious, creative, live food enthusiasts. alchemy's vision is to honor mother nature, promote healthy sustainable living and support, and to offer a space of inspiration and community.

When talking about sustainable design, we want to use as little material as possible. This is why good design always needs an efficient structural concept.

The existing restaurant situated in a concrete building was completely opened and extended with a new 2-level structure on each end. Recycled telephone poles were used as pylons, from which the load of the entire decks and roof are being suspended. torn roofs made of bamboo and grass provide sufficient openings for air circulation while sheltering from sun and rain. a minimal amount of material was used by pre-stressed and tensile building components and rafters.

Ubud,Bali,Indonesia

Architects : Alexis Dornier
Area : 900 m2
Year of Completion : 2016
Website : alexisdornier.com


Most Visited Articles




Subscribe

Get our latest article and updates delivered straight to your inbox.