Architecture

08-03-2024

Photographer : Inclined Studio

An urban house on a big, busy street generally creates the picture of a high, impermeable and seemingly invisible fortress within. But does it have to be so dead, uninviting and distant in its approach and appearance? With a quite tight design brief, they decided to break this, and use it to do the opposite – make a lively, inviting and approachable home. 

They started with the idea of an inside out design that revolves around a central, open courtyard which becomes the epicentre for all communal uses, activities and even circulation. From being the most visible and public in nature, the courtyard branches into slightly more inconspicuous spaces that are mostly part public and part private; such as the living, dining, kitchen etc. While these spaces are functionally more defined, they’re carefully placed in the visual and physical access from and to the courtyard. Of these, the living space is thoughtfully tucked into the farther end, making it quieter and sanctuous. The floating treads of the stairways are discreetly kept breezy and light while giving it a character of its own. 

Ankleshwar,Gujarat,India

Architects : MISA Architects
Area : 6650 sq. ft.
Year of Completion : 2022
Website : https://www.instagram.com/misaarchitects/

Exterior view of An Urban House by MISA Architects


Exterior view of An Urban House by MISA Architects


Exterior view of An Urban House by MISA Architects

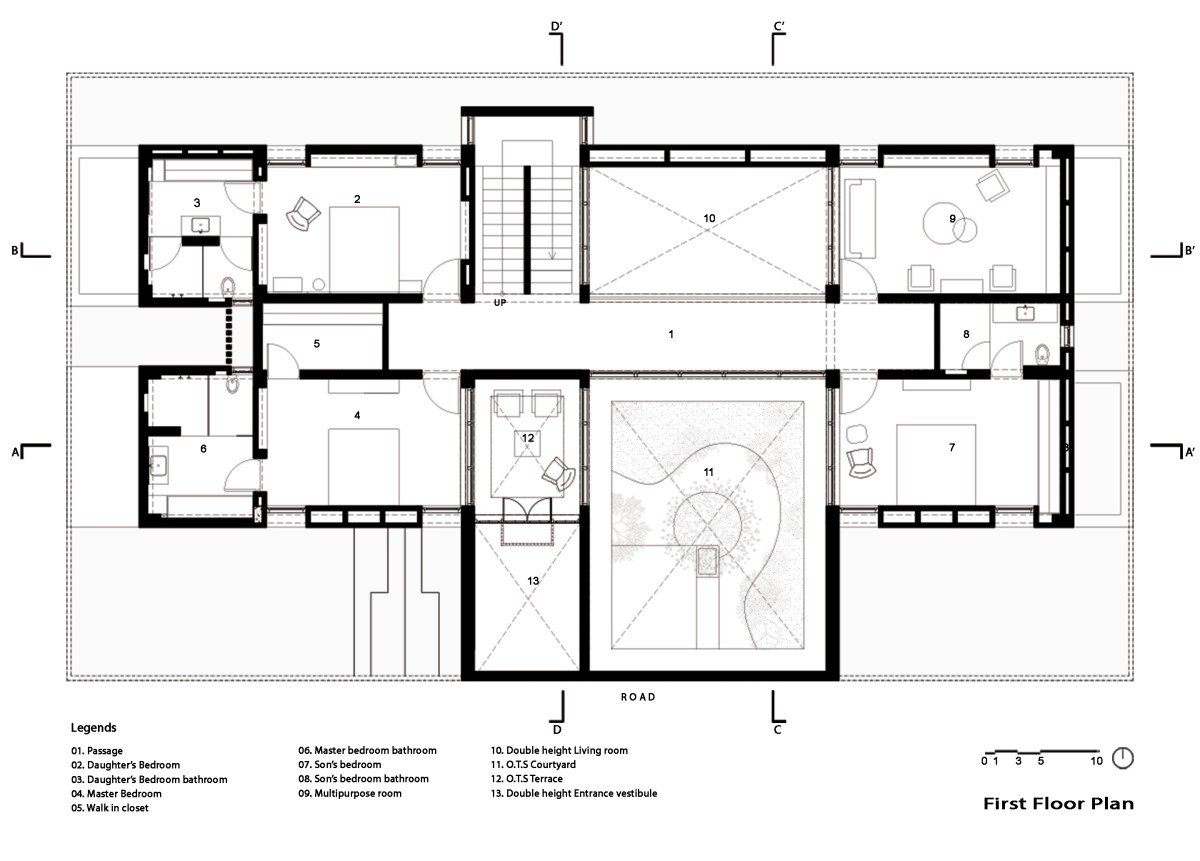
Going forward, the bedrooms on the upper level now start falling in the private realm. The room placement is aligned with our ancient Vastu wisdom that respects and responds to the sun and wind movement, thereby harnessing natural light and ventilation through the day. The interior spaces embrace a minimal design language – employing a subtle, unpretentious material and finish pallet – rendering timelessness and eliminating the hurried need to fill the space with unnecessary pieces of furniture. On the other hand, Indian stone is used to stimulate passer-by’s visual and tactile senses through the intricately designed motifs and patterns in different materials. Floors – generally an unnoticed part of the house – suddenly doubles up into Rangoli-like artwork. In terms of services, by grouping them at the either ends of the house, it helps define the service and serviced areas more clearly and makes long-term maintenance less troublesome.


Entrance of An Urban House by MISA Architects


Porch of An Urban House by MISA Architects


Living room of An Urban House by MISA Architects


Living room of An Urban House by MISA Architects


Living room of An Urban House by MISA Architects

Tall, punctured 18” thick cavity brick walls envelope the house, insulating and protecting the inside of the house from heat and noise, and allowing sight, light and air for the house users on the other hand. The brick bonds of these cavity walls are specially designed by the architect and use minimal bricks and concrete while keeping it aesthetically appealing and functional. To help reduce the costs, conventional bricks were used on the inner surfaces which are not exposed. Building techniques and structural improvisations were also introduced, for instance, the continuously running concrete bands at sill and lintel levels stabilized the brick walls and added to the overall strength of the construction. This is how the house feels from the inside.


Passage to living of An Urban House by MISA Architects


Passage of An Urban House by MISA Architects


Dining of An Urban House by MISA Architects


Courtyard and living of An Urban House by MISA Architects


Courtyard of An Urban House by MISA Architects

Now, let’s talk about the inside out design from the outside. The compound walls, facing the streets have sit-outs and small openings for pedestrians or passers-by to take a pause and rest for a while. The walls, aligned in the South direction, even though running into double height, are delicately designed to make them approachable and shaded through the day in a hot & dry climate. This urban house manifests a conscious decision to blur the public and private realms at its threshold – a character which built our city cores for centuries and are now forgotten and abandoned. This project is an ode to the vernacular Indian architecture that invites community with its porous yet contemporary feel instead of scaring them away with closed and brutal forms.


Courtyard of An Urban House by MISA Architects


Courtyard view from first floor of An Urban House by MISA Architects


Courtyard view from first floor of An Urban House by MISA Architects


Passage to staircase of An Urban House by MISA Architects


Staircase of An Urban House by MISA Architects


Staircase of An Urban House by MISA Architects


First floor lobby of An Urban House by MISA Architects


First floor lobby of An Urban House by MISA Architects


Bedroom of An Urban House by MISA Architects


Multipurpose room of An Urban House by MISA Architects


Detailed shot of exterior brick wall of An Urban House by MISA Architects


Detailed shot of brick wall of An Urban House by MISA Architects


Elevation A of An Urban House by MISA Architects


Elevation B of An Urban House by MISA Architects


Elevation C of An Urban House by MISA Architects


Elevation D of An Urban House by MISA Architects


Ground Floor Plan of An Urban House by MISA Architects


Ground Floor Plan of An Urban House by MISA Architects


Section A of An Urban House by MISA Architects


Section B of An Urban House by MISA Architects


Section C of An Urban House by MISA Architects


Section D of An Urban House by MISA Architects




Most Visited Articles




Subscribe

Get our latest article and updates delivered straight to your inbox.