Architecture

12-06-2025

Photographer : Xigma productions

The primary design brief was to create a home that feels vast, open, and elegant. Rooted in the principles of minimalism, the design emphasizes clean lines, ample natural light, and seamless cross-ventilation. These foundational ideas guided the development of every space within the residence.

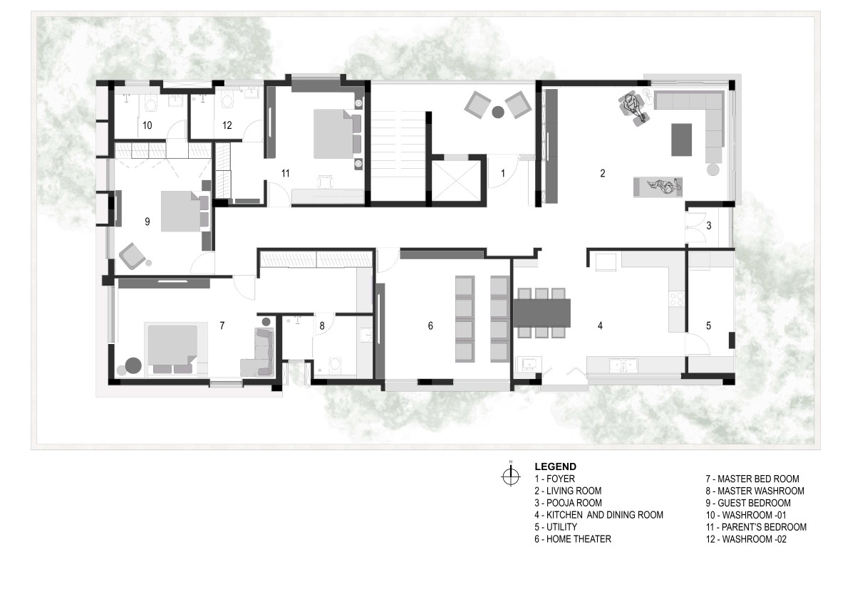
Located in the Anantapur district of Andhra Pradesh, this apartment was designed for a joint family, offering a spacious master bedroom, guest bedroom, and a dedicated bedroom for parents. Each floor of the apartment enjoys a unique and private entrance, reinforcing the sense of exclusivity and comfort.

A wide entrance leads into an inviting entry foyer with Basil planting, featuring a striking console that immediately draws attention. This console subtly separates the formal and private zones of the house. The formal area opens into an expansive living room, designed for warmth and togetherness.

Anantapur,Andhra Pradesh,India

Architects : Studio216 by N&G
Year of Completion : 2024
Website : https://www.instagram.com/studio.2.1.6/

Dining room of Basil House by Studio216 by N&G


Kitchen of Basil House by Studio216 by N&G

The kitchen is neatly tucked away yet maintains a visual and spatial connection to the dining area, aligning with the concept of openness. A large French window in the dining space frames views of green vista. 

The interior color scheme leans toward soft, neutral tones to ensure visual harmony and understated elegance. Accents like the entry console, curated wall art, and thoughtfully integrated lighting elements bring character and definition to each space.


Master Bedroom of Basil House by Studio216 by N&G


Master Bedroom of Basil House by Studio216 by N&G


Parents Bedroom of Basil House by Studio216 by N&G


Parents Bedroom of Basil House by Studio216 by N&G


Parents Bedroom of Basil House by Studio216 by N&G


Guest Bedroom of Basil House by Studio216 by N&G

One of the standout features is the guest bathroom, which offers a magical element of surprise — the door to the guest bedroom is cleverly concealed within the wardrobe design, adding a playful and sophisticated touch. The bedrooms enjoy western sunset, flooding the area with golden hues and enhancing the ambiance.

Each bedroom is styled in calming tones to create a serene and relaxing environment, with personalized touches that reflect the individuality of its occupants.

The material palette includes warm wood panelling, luxurious marble flooring from HMG, mirror and beige wall tones to enhance the sense of space and sophistication.


Guest Bedroom of Basil House by Studio216 by N&G


Console table at foyer of Basil House by Studio216 by N&G


Entrance of Basil House by Studio216 by N&G


Plan of Basil House by Studio216 by N&G




Most Visited Articles




Subscribe

Get our latest article and updates delivered straight to your inbox.