Architecture

03-07-2025

Photographer : Tarang Goyal

The house gets its name- ‘Box in Box’ from the way it was imagined. Set on a compact L-shaped plot of 3100 sq. ft. in Jodhpur, Box in Box is a three-storey residence designed for a joint family of two brothers and their extended family. With a requirement for 7-8 rooms, the site posed a significant challenge in terms of fitting the program while maintaining a sense of openness and connection to greens and daylight. The design flips the conventional approach, instead of function dictating form, the form was imagined first.  

The concept was to create a bold identity- cubes stacked, pushed, and pulled, forming a contemporary massing that sparked curiosity from every angle. This “form first” approach guided the entire layout, with spaces then introduced within its geometry. Solid zones housed utilities like toilets, while open spaces aligned with large fenestrations for light and air. The facade is intentionally minimal, clad in Gwalior and Kandla grey stone, softened by a perforated aluminium jali screen that visually breaks the verticality and brings proportion. The neutral palette- off-whites, warm browns, greys, sets a calm tone both outside and within. 

Large corner windows cut through the visual weight, offering transparency and rhythm to the street facing facade. Inside, spatial experiences are enhanced through double-height volumes. These vertical voids don’t just link spaces physically but emotionally; ground to first on the entrance foyer where the staircase becomes a sculptural core element, and first to second floors speak to each other through open family lounges. 

Jodhpur,Rajasthan,India

Architects : Genre of Design
Area : 10,900 sq. ft.
Year of Completion : 2024
Website : https://www.instagram.com/genreofdesign/

Exterior view of Box in Box by Genre of Design


Exterior view of Box in Box by Genre of Design


Exterior view of Box in Box by Genre of Design

Courtyard is strategically positioned to bring in natural light to spaces like the kitchen and family lounges, while corner bedrooms enjoy the air and city views. The third floor offers an entertainment suite and terrace with panoramic views of Jodhpur.  

With neutral materials, like exposed concrete and grey italian marble flooring, the spatial story leans into a minimal, immersive experience, proof that you can achieve lightness, openness, interaction, and privacy without excess, even on a compact footprint. 


Entrance of Box in Box by Genre of Design


Terrace Garden of Box in Box by Genre of Design


Terrace of Box in Box by Genre of Design


Aerial view of Box in Box by Genre of Design


Aerial view of Box in Box by Genre of Design


Elevation of Box in Box by Genre of Design


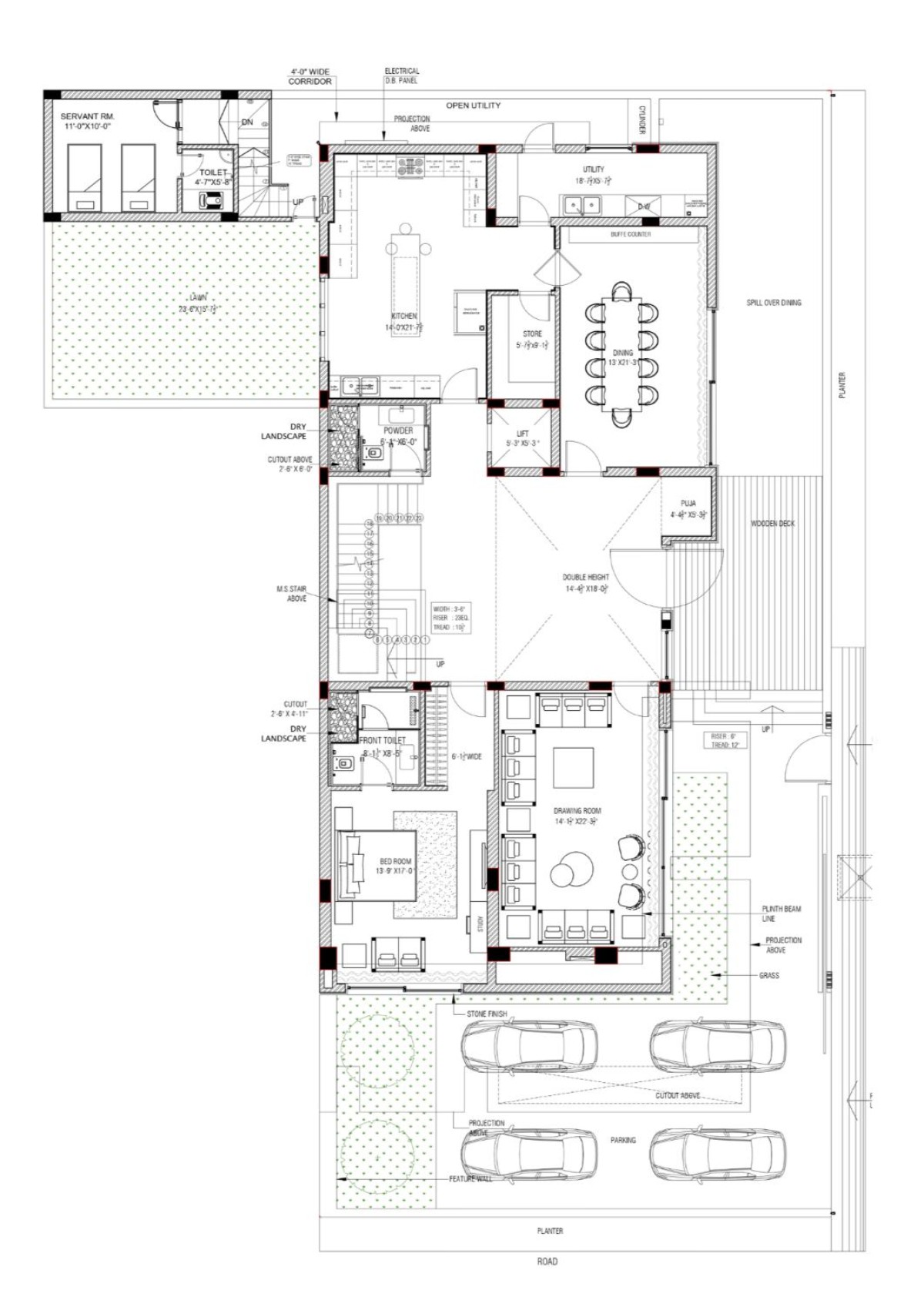
Ground Floor Plan of Box in Box by Genre of Design


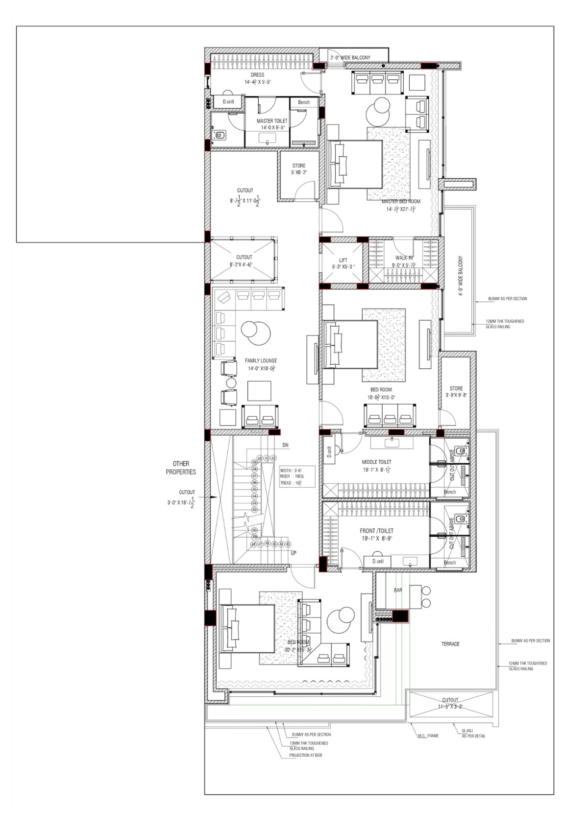
First Floor Plan of Box in Box by Genre of Design


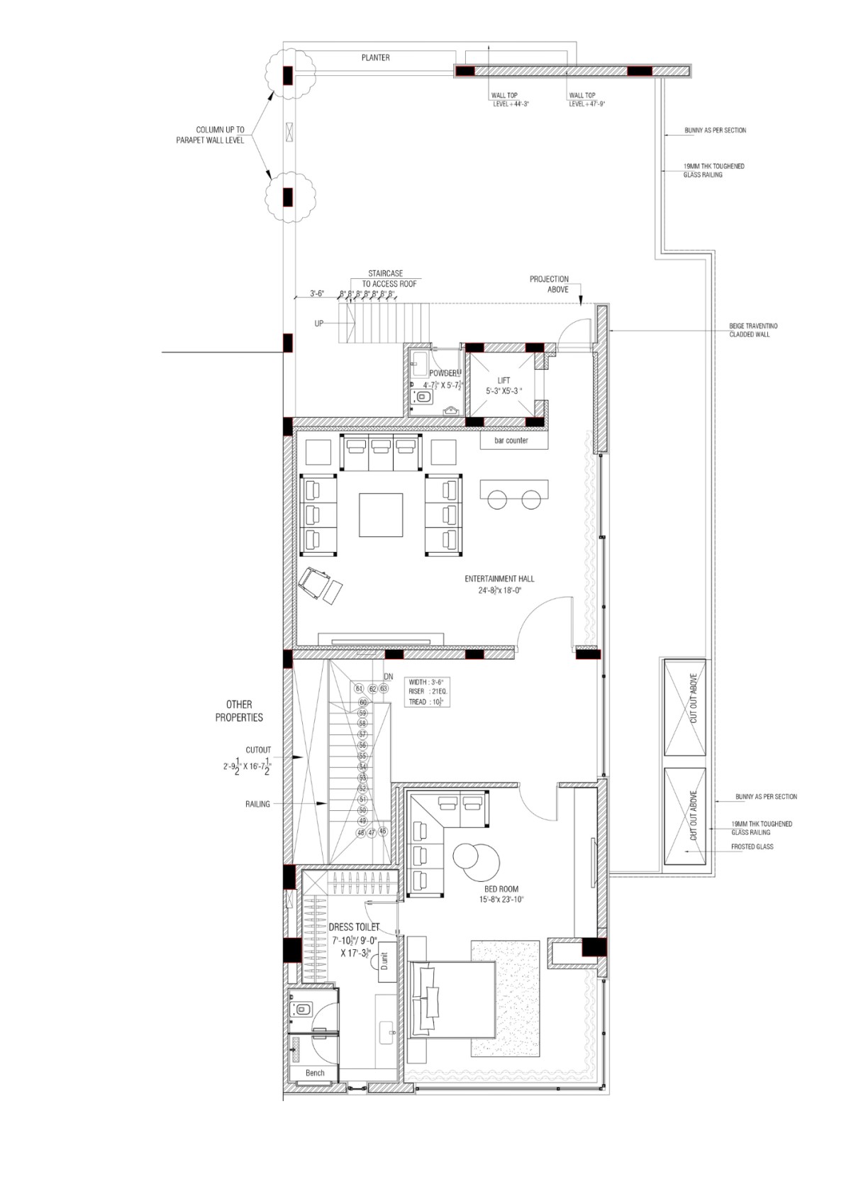
Second Floor Plan of Box in Box by Genre of Design


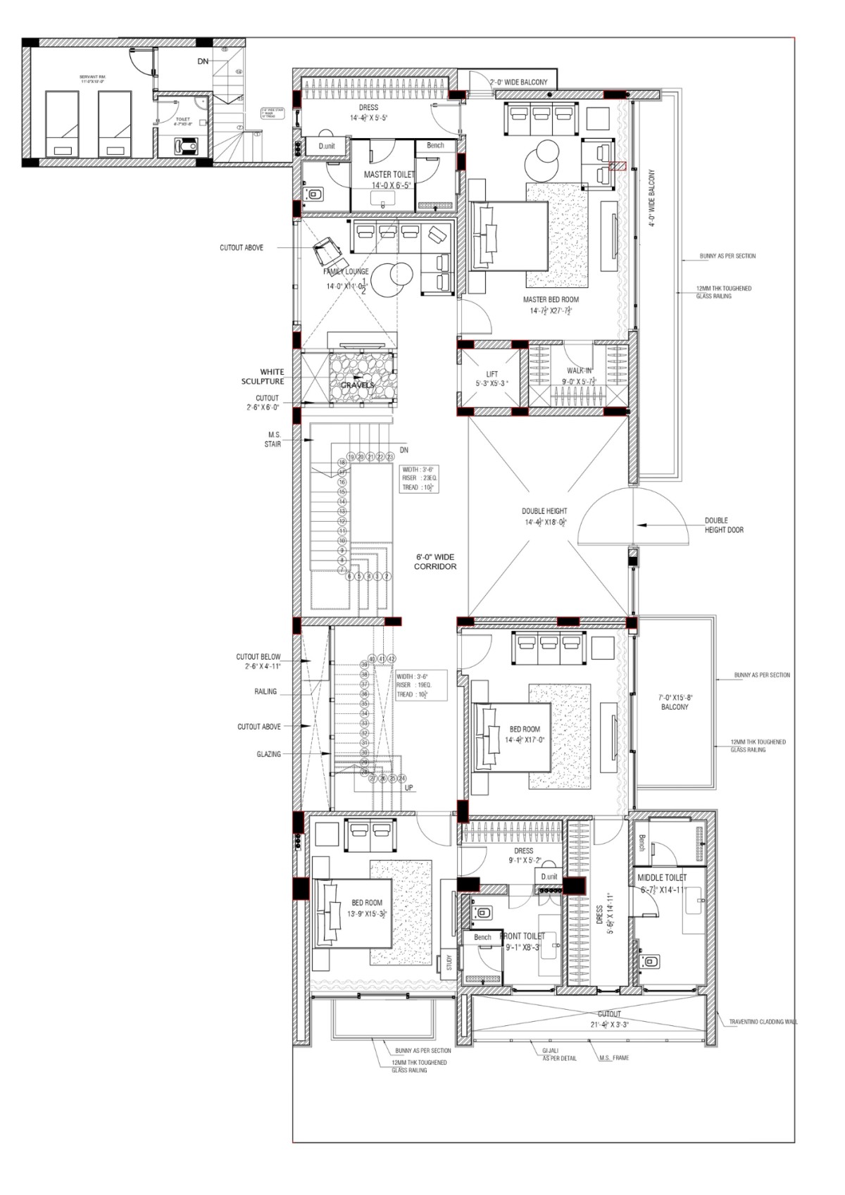
Fourth Floor Plan of Box in Box by Genre of Design


Section Plan of Box in Box by Genre of Design




Most Visited Articles




Subscribe

Get our latest article and updates delivered straight to your inbox.