Architecture

12-06-2024

Photographer : Ashish Bhonde

In the heart of Abhyankar Nagar, Nagpur, lies a testament to architectural finesse and familial harmony — ‘GANGA 151’ a sprawling family home seamlessly blending tradition with contemporary design. Spanning across a 2520 sq. ft. plot, this residence caters to the intricate needs of a three-generational living arrangement, embodying the essence of Vastu principles while embracing modern comforts.

Designed with meticulous attention to detail, the residence boasts 5 bedrooms, 3 living areas, and 2 kitchens, providing ample space for every member of the family to thrive. Strategically oriented towards the south, an aluminium screen facade gracefully controls light, ensuring the front facade remains shaded, thus fostering a serene and cool interior environment.

A key architectural highlight lies in the ingenious layout of the residence. To mitigate the vertical tower effect and evoke the warmth of an independent bungalow, the first and second floors are ingeniously amalgamated into a unifying volume framed with extended beams and clad with wooden aluminium batons. Also the third floor of the bungalow is pushed back from the front façade to make it feel visually lighter, these architectural features not only breaks the scale of the building but also enhances its aesthetic allure. 

Nagpur,Maharashtra,India

Architects : Studio Habitect
Area : 5300 sq. ft.
Year of Completion : 2023
Website : https://www.instagram.com/studiohabitect/

Exterior view of Ganga 151 by Studio Habitect


Exterior view of Ganga 151 by Studio Habitect


Exterior view of Ganga 151 by Studio Habitect


Entrance porch of Ganga 151 by Studio Habitect


Entrance porch of Ganga 151 by Studio Habitect


Lift lobby and Staircase of Ganga 151 by Studio Habitect


First floor living area of Ganga 151 by Studio Habitect


Second Floor Living area of Ganga 151 by Studio Habitect

The living room, nestled in the north-east corner, exudes grandeur with its double-height design, allowing for the soft infusion of north light through continuous glass panels. Overcoming the challenge posed by common walls, a skylit slab in the central area ensures natural light permeates deeper into the home, creating an inviting and uplifting atmosphere throughout. Step inside, and one is greeted by an interior that seamlessly marries Indian contemporary aesthetics with timeless elegance. The grey sandstone flooring serves as a canvas for the interplay of light and shadow, further enhancing the visual appeal of the space.


Second Floor Living area of Ganga 151 by Studio Habitect


Second Floor Living area of Ganga 151 by Studio Habitect


Dining of Ganga 151 by Studio Habitect


Pooja room of Ganga 151 by Studio Habitect


Pooja room of Ganga 151 by Studio Habitect


Kitchen of Ganga 151 by Studio Habitect


Kitchen of Ganga 151 by Studio Habitect


Staircase of Ganga 151 by Studio Habitect


Master Bedroom of Ganga 151 by Studio Habitect

The first floor, dedicated to the client's parents, features two cosy bedrooms, a well-appointed pantry, and a welcoming living room—a sanctuary where cherished memories are made and shared. Ascending to the second and third floors, one discovers a realm of comfort and sophistication, where the client, his wife, and their two children reside. Here, three spacious bedrooms offer respite from the hustle and bustle of daily life, while a thoughtfully designed kitchen, dining area, and living space provide the backdrop for cherished family moments and shared meals.

True to its Vastu-compliant ethos, the south gate stands as a striking visual statement adorned with mountain and elephant silhouettes, captivating the imagination of passers-by and setting the tone for the harmonious abode within.


Master Bedroom of Ganga 151 by Studio Habitect


Kids Bedroom of Ganga 151 by Studio Habitect


Kids Bedroom of Ganga 151 by Studio Habitect


Parent's Bedroom of Ganga 151 by Studio Habitect

In summary, this project in Abhyankar Nagar epitomizes thoughtful design, seamlessly blending functionality, tradition, and modern aesthetics to create a multi-generational living experience that transcends boundaries and fosters familial bonds. It is a testament to the power of architecture to elevate not just physical spaces, but the lives of those who inhabit them.


Parent's Bedroom of Ganga 151 by Studio Habitect


Walk in wardrobe at parents bedroom of Ganga 151 by Studio Habitect


Vehicular entrance of Ganga 151 by Studio Habitect


Dusk light exterior view of Ganga 151 by Studio Habitect


Elevation of Ganga 151 by Studio Habitect


Stilt floor plan of Ganga 151 by Studio Habitect


First floor plan of Ganga 151 by Studio Habitect


Second floor plan of Ganga 151 by Studio Habitect


Third floor plan of Ganga 151 by Studio Habitect


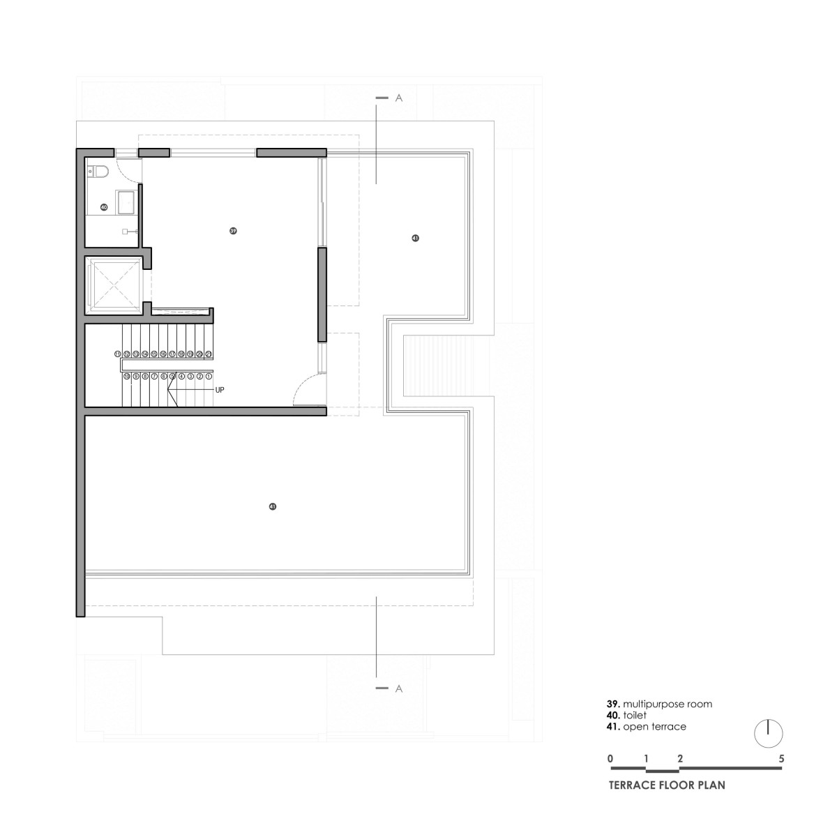
Terrace floor plan of Ganga 151 by Studio Habitect


Section of Ganga 151 by Studio Habitect




Most Visited Articles




Subscribe

Get our latest article and updates delivered straight to your inbox.