Architecture

28-07-2025

Photographer : Arjun Krishna

"I miss home." That’s where it all began — a simple sentiment rooted in nostalgia. How does one recreate the essence of home, far from its familiar embrace, on a compact 30 x 50 feet site in a bustling city like Bengaluru? For them, the answer lay in weaving together memories of Udupi and modernity — Mangalore tiles that echo the warmth of old roofs, courtyards that breathe life into a home, wooden accents softened by time, a play of light that is both diffused and dramatic, and pockets of greenery through planters and pots placed indoors.

Their clients, a couple who work from home, sought a sanctuary — a forever home nestled away from the city’s relentless rhythm. Vastu principles guided the spatial organization of this east-facing plot, ensuring harmony between the built and unbuilt. Aware that as the neighborhood grows, light would be limited from three sides, they opened large terraces on each floor and introduced a skylight above the central courtyard and staircase.

The ground floor unfolds as an invitation to pause and gather. The living room, opening onto a courtyard, is intimate. A cozy seat in bright yellow Jaisalmer stone and teak wood, set against a soothing green oxide pond and koi fish, nestled into a corner—a quiet retreat for a steaming cup of tea or an impromptu work session.

The pooja space strikes a balance between opulence and modernity, integrated into the living area and open enough to host gatherings of up to fifty. A custom-crafted jack wood mantap, sourced all the way from home, rests on dainty columns, giving a magical floating effect.

In the kitchen, an earthy yellow backsplash adds vibrancy, while high fixed windows flood the space with natural light and frame glimpses of the surrounding greenery. The guest bedroom and bathroom are tucked away for privacy, offering a comfortably accessible space for their clients’ aging parents. To ensure ample daylight—despite the prospect of future neighboring structures—a fluted glass opening connects the guest room to the courtyard, allowing soft, diffused light to filter through.

Bangalore,Karnataka,India

Architects : From Around Here
Area : 2760 sq. ft.
Year of Completion : 2024
Website : https://www.instagram.com/from.around.here/

Exterior view of Hanchu Mane by From Around Here


Exterior view of Hanchu Mane by From Around Here


Entrance of Hanchu Mane by From Around Here


Living room of Hanchu Mane by From Around Here

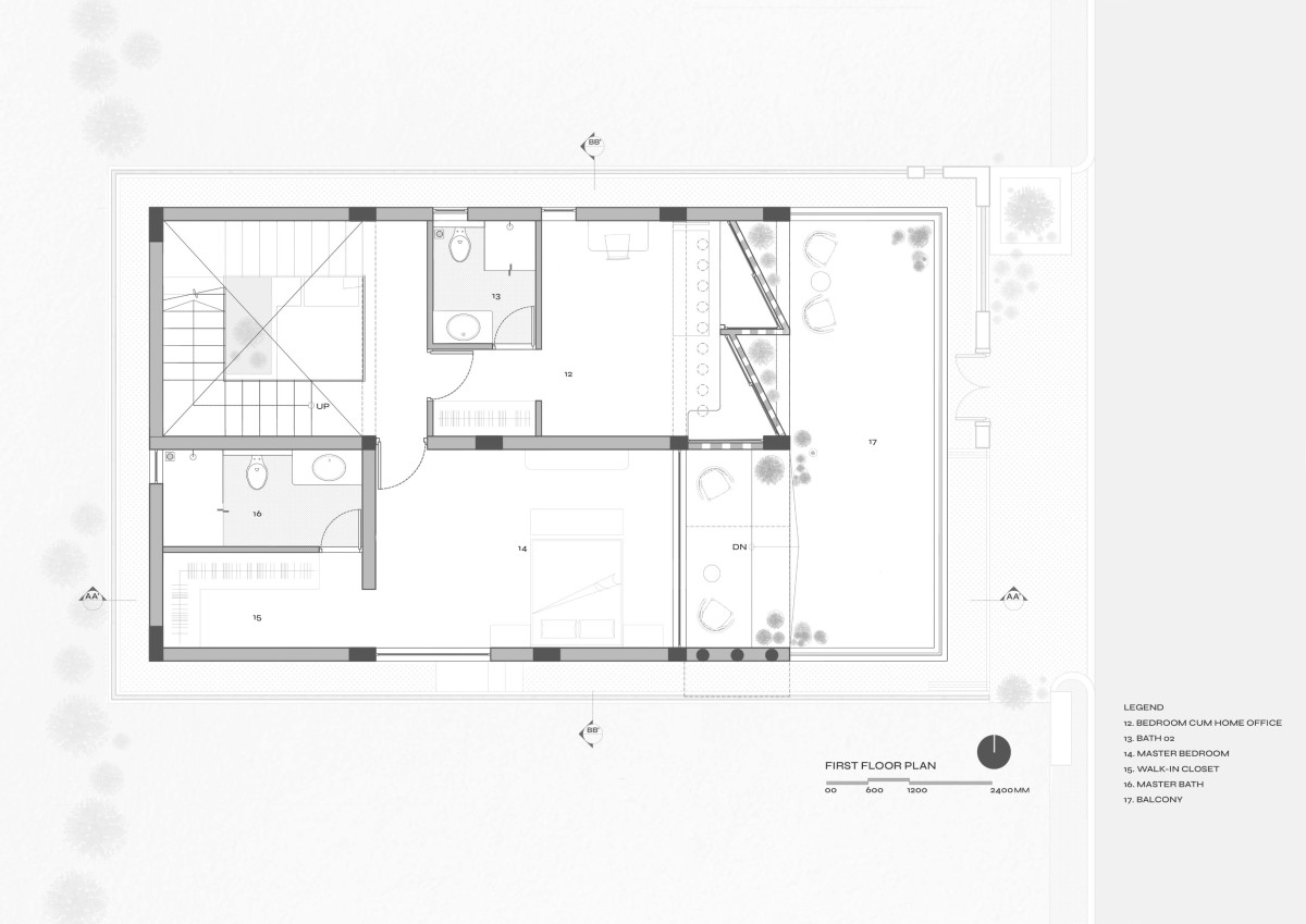
On the first floor, the rising sun takes center stage. The master bedroom, occupying nearly half the site area, embraces the morning light through a large east-facing sliding door that opens onto a generous balcony. Its terracotta flooring nods to tradition while keeping the space naturally cool. A high-pitched roof, paired with an all-white and wood interior, evokes a sense of understated luxury.

The children’s bedroom—currently a flexible space doubling as a home office and gym—serves as a canvas of playful contrasts. A striking jaali wall casts intricate patterns that dance with the shifting light, while also welcoming a few unexpected guests—families of finches that have made it their home. Designed in a zig-zag pattern, the jaali not only enhances privacy from future neighbors but also integrates a thoughtful seating nook inside and a planter outside, blending function with charm.


Living room of Hanchu Mane by From Around Here


Living room of Hanchu Mane by From Around Here


Living to staircase view of Hanchu Mane by From Around Here


Kitchen of Hanchu Mane by From Around Here


Kitchen of Hanchu Mane by From Around Here


Pooja area of Hanchu Mane by From Around Here


Courtyard of Hanchu Mane by From Around Here


Skylight of Hanchu Mane by From Around Here


Staircase of Hanchu Mane by From Around Here

Movement through the house becomes a journey of discovery. The staircase landings are more than mere transitions—they unfold like quiet vignettes, adorned with art and pockets of greenery, offering moments of surprise at every turn. Among these surprises are wooden windows with delicate flower motifs, pivoting along their metal rims to alter the flow of light into the stairwell. Traditional artwork adorn the walls, paying homage to the essence of Udupi.

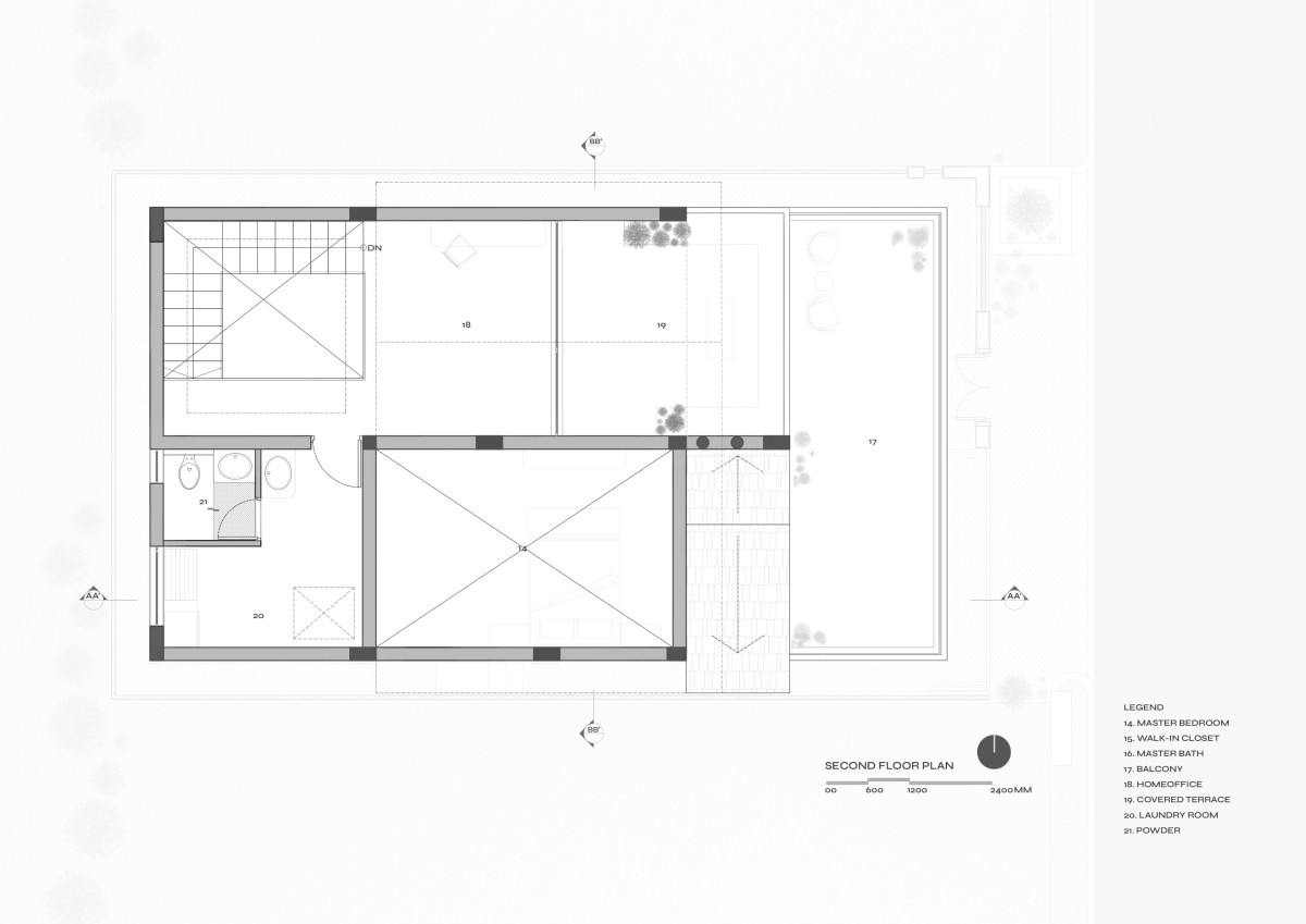
The second floor reinterprets work and leisure. A home office, calm yet connected, opens onto a semi-open balcony lined with fixed seating and planters — a perfect setting for hosting family and friends. The use of earthy green oxide continues on this floor, providing a beautiful foreground for the everchanging Bengaluru skies and it's famously beautiful weather. A delicate skylight, with traditional floral patterns in metal, casts ephemeral shadows on the walls and floors below — a subtle reminder that tradition and modernity can coexist, not just side by side, but intertwined.

Ultimately, this home is more than just a place to live — it’s a feeling, a memory rekindled. A place where old-world charm meets modern-day comfort, creating a self-sufficient haven — not just through the physicality of spaces, but through the soul they hold.


Staircase of Hanchu Mane by From Around Here


Staircase of Hanchu Mane by From Around Here


Master Bedroom of Hanchu Mane by From Around Here


Master Bedroom of Hanchu Mane by From Around Here


Children's Bedroom of Hanchu Mane by From Around Here


Workspace of Hanchu Mane by From Around Here


Workspace of Hanchu Mane by From Around Here


Balcony of Hanchu Mane by From Around Here


Ground floor plan of Hanchu Mane by From Around Here


First floor plan of Hanchu Mane by From Around Here


Second floor plan of Hanchu Mane by From Around Here


Section AA of Hanchu Mane by From Around Here


Section BB of Hanchu Mane by From Around Here




Most Visited Articles




Subscribe

Get our latest article and updates delivered straight to your inbox.