Encircling a family of four in this house fully themed on the components of earth, imitating ‘a geode’. A site with a seven-storey apartment on its east, existing within narrow streets, located in one of Bangalore’s densely inhabited areas, this house resides in Kodihallli.  With the existing site context and the arrangement of spaces by Vastu Purusha Mandala the family desired for plenty of green spaces to live within and balcony gardens attached to all bedrooms hence, all common spaces lay on the east pushing the private spaces to the west allowing the centre of the house to open vertically to the sky.   

Like a narrative of a cavern, a large veranda invites you to a mellow foyer space leading you to the centre of the house, a narrow triple height vertical volume assembled as a versatile space, topped with a chandelier to break the volume that imitates showers of rain lights directly from the sky. Following the path, is a Jhula court, a soft space with a sky light of its own and a simple aesthetical swing falling from the ceiling. 

Around the central courtyard the family has their major accommodations like the living space, kitchen and the dining space within which little green pockets of exotic plants thrive. Services like wet kitchen and the utility space are further tucked away behind the kitchen. Sitting on the edge of the central courtyard is the puja space, almost sitting in the centre of the house which often unwinds to the courtyard on festive occasions and is ‘designed to look like the temples on the face of the mountain/cave.’ 

Bangalore,Karnataka,India

Architects : Collage Architecture Studio
Area : 8000 sq.ft.
Year of Completion : 2021
Website : https://www.instagram.com/collage_architecture_studio/

Interior view of House Geode by Collage Architecture Studio


Interior view of House Geode by Collage Architecture Studio

With the surrounding context being very densely packed, a seven storey building beside the site, the aim was to not expose the interiors to the outside, making the building introvert in nature with its own landscaping. The southern façade has smaller openings, for less exposure to heat and surrounding, providing cross ventilation. The interiors utilizes natural materials like marble stone as an inner layer of the house, insulating the house, reducing heat absorption, keeping the interior at an optimal temperature. The ceiling has been cladded with wood, which has air gaps within that reduces the heat transmission from the roof. Further, to provide thermal comfort, the central atrium incorporates the “stack effect”, releasing hot air through the central courtyard, using exhausts. 

With the ground level accommodating most common spaces the first level holds the master bedroom and daughter’s bedroom with their own terrace decks whereas the second level occupies the son’s bedroom and a party space that unfolds to an outdoor terrace area. The basement of the house allows parking for four cars and a family movie theatre along with other services.


Interior view of House Geode by Collage Architecture Studio


Interior view of House Geode by Collage Architecture Studio

The comfort generated in the house with the use of natural elements like, stone, water, and green; in a situation of a pandemic, the house is fully sufficient to provide comfort and spaces lit with daylight, to carry out various activities. The green balconies can be converted to relaxing zones as well as work zones when required. The central courtyard providing ample amount of day light, to work in, do daily chores, and also daily interactions that happen under this skylight help with the mental being in the pandemic era. The use of glass instead of walls, allows for maximum transparency within the spaces, keeping everyone in the house visually connected at all times of the day, decreasing the feeling of ‘isolation’. 

With the existing building on the east, the façade wall is highlighted keeping priorities of privacy however, this wall has become a major green wall garden with striking plants growing on it for the house internally. Furthermore, to add scenic visual of the courtyard, glass walls are added to the bedroom with a strong view the eastern green wall. The bedrooms are planned to provide independent living spaces with their own terrace gardens and for further privacy the dresser and the toilets are neatly tucked away behind the wall panelling. Following a theme, the master bedroom is a glimpse of the ‘earth’ having a material palate of various wood textures and more exotic plant collection. The daughter’s room follows the theme of the ‘sun’ and compromises on finishing with brass and black for its dark gold look and the son’s room is themed of the ‘sky’ with floating glass selves and a light colour palate to allow a sense of ‘flow’. 


Central Rain Lighting of House Geode by Collage Architecture Studio


View from Terrace of House Geode by Collage Architecture Studio


Entrance of House Geode by Collage Architecture Studio


Exterior view of House Geode by Collage Architecture Studio

The face of the house has a strong black and crème marble texture and is tall, imitating a stone or a rock exterior for privacy from the compact neighborhood. Inside, is a space carved out with warm marble finish and a replication of crystals of the geode, the crystals being the interior finishing with an uninterrupted collection of incredible landscape like tall mountains with lush green foliage and waterfalls. Hence, making a geode with 3 layers. With the Central courtyard having rays of natural light filtering from the skylight at day, a starry night is achieved at night with the installation of an exquisite chandelier.  

Despite being restricted and following the traditional impression of a Vastu defined home, introduction of volumetric breaks, green pockets and internal openness of the space was a strong inspiration from nature and revolves around the arrangement of a geode.


Exterior view of House Geode by Collage Architecture Studio


ELEVATIONS- NORTH & WEST of House Geode by Collage Architecture Studio


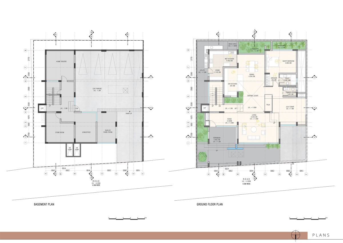
Plan - Basement and Ground Floor of House Geode by Collage Architecture Studio


Plans - First & Second Floor of House Geode by Collage Architecture Studio


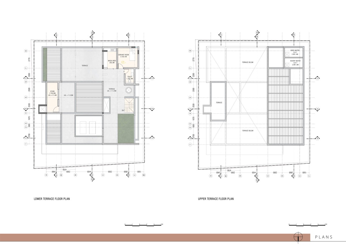
Plans - Lower & Upper Terrace Floor of House Geode by Collage Architecture Studio




Most Visited Articles




Subscribe

Get our latest article and updates delivered straight to your inbox.