Architecture

18-08-2020

Photographer : Aayush Bhaskar Photography & Ankur Manchanda

Set in a prime location in Bengaluru, the J-172 house is a careful reconstruction of an ancestral home, to meet the growing needs of the family, without disturbing the structural integrity of the house. Modern, minimal aesthetics were the basis of design, wood became the primary choice of material as per client brief and planning was vastly determined using concepts of Vastu (traditional Indian science of spatial design and placement).

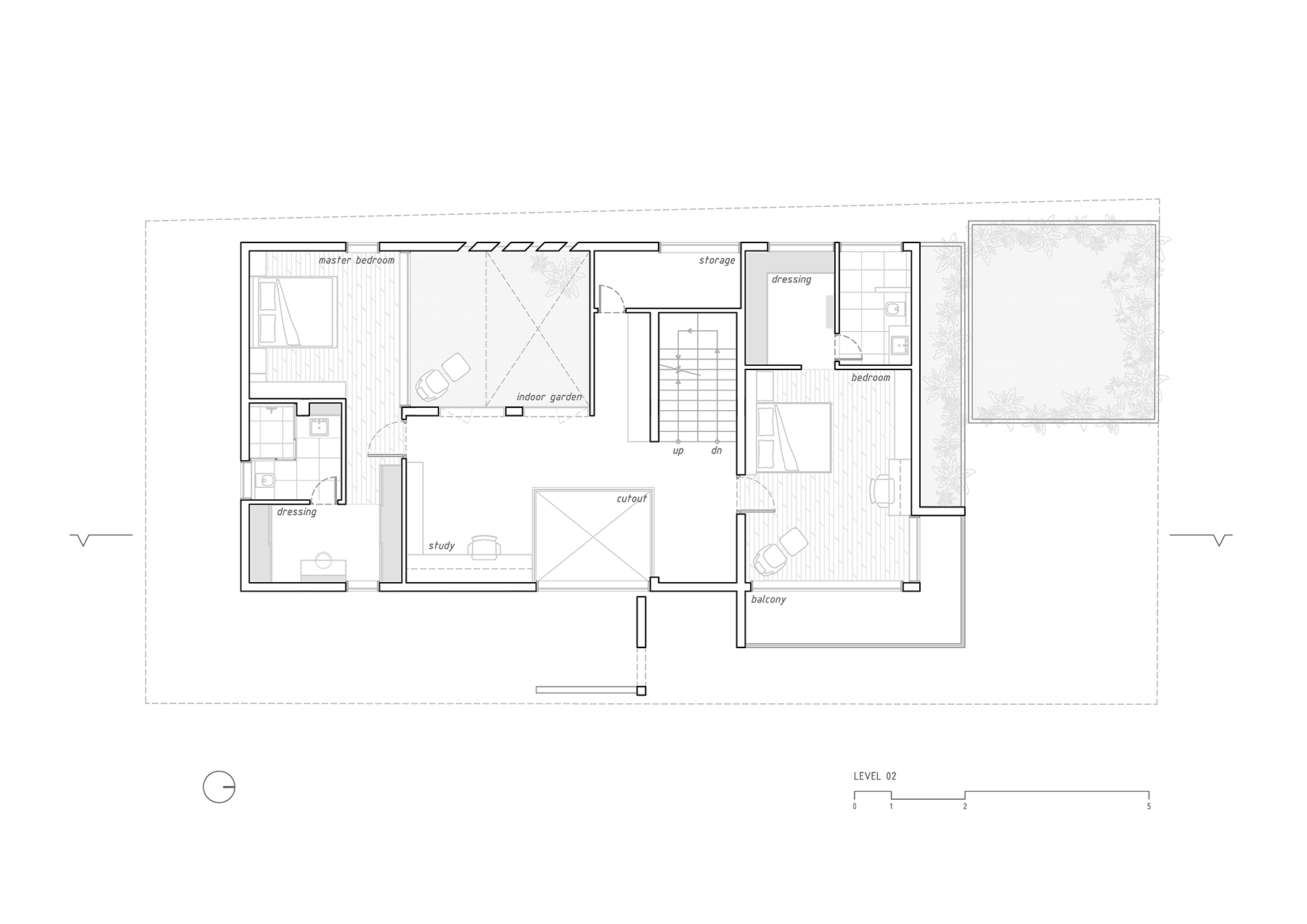
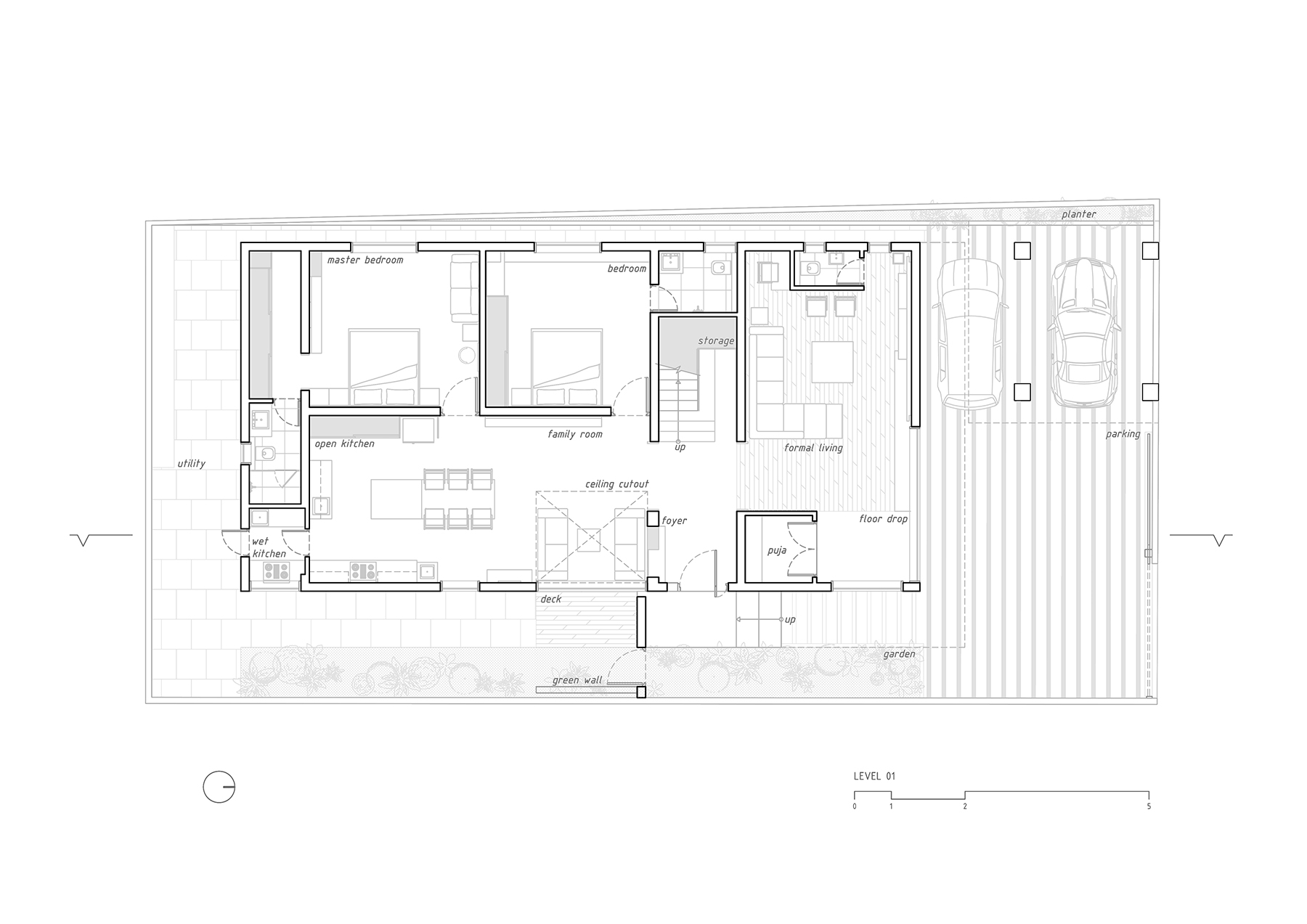
Though confined within the boundaries of the existing structure, we were able to provide a playful yet functional planning. The entrance foyer divides the house into public, semi-public and private spaces. To the right is the formal living room and to the left are the family room, kitchen, and elders’ bedrooms. The first floor comprises of 2 more bedrooms, an open study, and auxiliary spaces along with a garden attached to the Master Bedroom. The indoor garden can also be accessed by the outside corridor and provides a calming breakout space for meditative or recreational activities.

A cut-out in the ground floor slab opened up a double-height space that connects the family space to the first-floor study. The large fenestration brings enough daylight throughout the day and also creates a garden extension to the family room.

Bengaluru, Karnataka, India

Architects : K&M Design Studio
Year of Completion : 2018
Website : http://km-ar.in

An L shape concrete structure with grilled openings was added to attain 2 specific things- privacy from the neighbors as well as from guests. It also serves as a vertical green wall and adds to the charm of the entrance as well as the private garden.


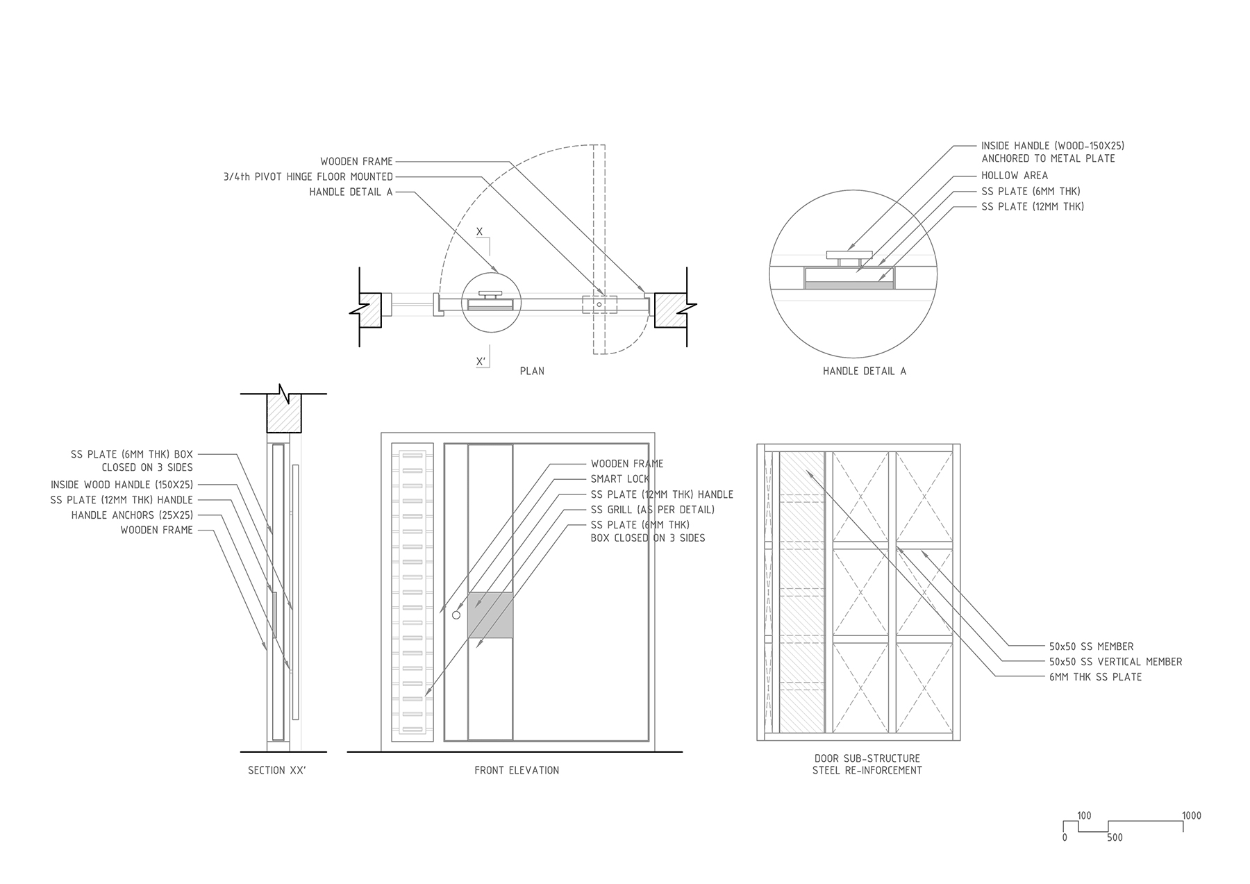
The main door is a 1350mm wide 3/4th pivot Corbusier style wooden door, reinforced with stainless steel sub-structure giving it sturdiness without weight gain.


The family room acts as the central hub of the house with most of the activities revolving around it. The open kitchen layout along with the custom made dining table invites casual conversations over meal preps while the informal window seats provide the perfect reading corner.


All bedrooms integrate creative usage of wood to accentuate different elements. Adequate natural light and ventilation, mood lighting, and uncluttered spaces make them the perfect space to relax and unwind.


Large openings are confined to the north and east side to minimize heat gain. The double-height window towards the east side gets further shaded with the L shape green wall. The house remains lit, ventilated, and cool throughout the day.


The elevation form is a bold wooden box intersecting with the white mass which sits in stark contrast to the lush green surroundings. Multiple layers of floating planters provide relief and a soft touch to the solid masses. The entrance pathway to the house gets adorned with Kadappa stone cladding and a garden along the passage endowed with large plants. The ever-changing flora around the house gives it a dynamic look throughout the year.




Most Visited Articles




Subscribe

Get our latest article and updates delivered straight to your inbox.