Cantilevered planes and projected volumes fulfil the demand for a sense of openness within the enclosure. Brick and concrete are exposed on the elevation to emphasise the character of the house. To allow penetration of natural light and fresh air, a clean composition of internal volumes and voids were designed which also enables the spaces to flow into each other while merging with the outdoors. 

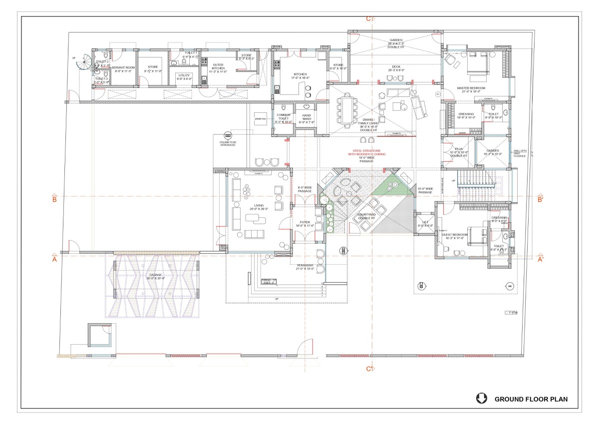
The house is located in a north facing site and is essentially a two-storey structure with courtyards and light-wells. The route from the foyer directly leads to the passage which flows to the kitchen, dining and family living spaces with the formal living space to the left and glazing on the side walls to give a glimpse of the open to sky green courtyard to the right. 

Beyond the kitchen to the left, are located the maid’s quarters and a table tennis room. An artificial pond followed by seating with lush plantation looks back towards the house. At the first storey level, a master bedroom and two other bedrooms in addition to a home-theatre and a gym room are linked by a wide corridor. 

The focus is to design a space that allows the client to live a relaxed open lifestyle with verandas, terraces and courtyard. The house embodies a hierarchy of privacy with a public facade that seeks not to attract undue attention and shelter their occupants while opening out to courtyards and terraces. It acts as a screen and provides calm and protects from frantic pace of life in city.

Coimbatore,Tamil Nadu,India

Architects : Cubism Architects & Interiors
Area : 8,500 sq. ft.
Year of Completion : 2021
Website : https://www.instagram.com/cubism_architects/

Exterior view of House of Lights by Cubism Architects & Interiors


Exterior view of House of Lights by Cubism Architects & Interiors

The entrance to the home is a space built with green landscaping and stone. The addition of exposed concrete blocks along with the plantation serves as a visual treat as they lead up to the main porch. The wooden ceiling in the sit-out area and the raw textured flooring blends with the landscape beautifully to provide a stunning experience to the user. 

The union and subtraction of geometries creates an interesting play of lights and shadows, dramas in solids and voids. The entrance foyer has mild coloured background with the bright mustard seater really brightens up the space. The foyer visually leads up-to a feature wall with marble accentuated with wall decors welcomes people on entering the house.

The foyer leads to the wide passage that flows into the other spaces of the home. The house is designed where every space was able to relate to the nature and the exterior. The corner space is chamfered to provide view of the garden. The double height dining hall provides ample natural light with two attractive garden spaces on either side offering a multitude of spatial experiences for the user. Opulent ambiance is created with the use of both marble and wooden flooring. The rich blue fabric of the dining chairs contrasts and complements the contemporary palette used throughout the interior spaces.


Exterior view of House of Lights by Cubism Architects & Interiors


Living of House of Lights by Cubism Architects & Interiors


Family living of House of Lights by Cubism Architects & Interiors

The family living space is a light filled space, double heighted for an expansive view with small garden space filled with lush plants as the backdrop. The staircase which is cladded each with wood and marble for the two alternating risers gives access to the upper floor. The skylight on the ceiling above with wood finish frames matches the wooden steps and breaks the monotonous white ceiling.

By placing a large mural of rich colours of red and blue hues contrasts and co-relates with the interior spaces and adds character to the space. The skylight open present in the toilet area along with plants makes the space bigger and provides the user the feel of calmness and sophistication.
 Natural light flowing through from the sky adds on to the patterns created by the walls and flooring. The garden space at the south corner of the site features a water cascade wall which fills with splashing water sounds thus creating a serene environment for enjoying one's evenings. This space is also double height with a balcony overlooking the garden from the first floor. The stone features add a sense of exposure.


Family living of House of Lights by Cubism Architects & Interiors


Open to sky court of House of Lights by Cubism Architects & Interiors

The west end of the site is filled by an artificial koi pond with lush plantation surrounded by it. The deck area provides access to the table tennis room enclosed by glazed sliding doors. The courtyard space is a perfect area for having a relaxing time with family and be close to a greener surrounding.
Seating space around the garden area is surrounded by lush plantation and water body contributing to the creation of an ambiance with the nature. A swing is installed in the garden at the east corner of the site flanked by plantations. The swing is placed in a way that it offers an unobstructed view of the building blending in with the garden through floor to ceiling windows.

The open to sky court with double height has creepers climbing through and around the grill, with a view out to the landscape offers a calm aura for the user utilising the space. The double height courtyard with plantation and open to the sky really opens up the space and is aesthetic to the eye.
The careful placement of custom made curved seater in contrast to its surrounding catches one's attention. The grills with several patterns and bricks spreads the climbers and creates a natural visage and its shadows creates various patterns throughout the day on the floor.


Open to sky court of House of Lights by Cubism Architects & Interiors


Play area of House of Lights by Cubism Architects & Interiors


Staircase of House of Lights by Cubism Architects & Interiors


Bedroom of House of Lights by Cubism Architects & Interiors


Foyer of House of Lights by Cubism Architects & Interiors


Courtyard of House of Lights by Cubism Architects & Interiors


Sitout of House of Lights by Cubism Architects & Interiors


Swing at courtyard of House of Lights by Cubism Architects & Interiors


Garden of House of Lights by Cubism Architects & Interiors


Deck to Garden of House of Lights by Cubism Architects & Interiors


Elevation of House of Lights by Cubism Architects & Interiors


Ground floor plan of House of Lights by Cubism Architects & Interiors


First floor plan of House of Lights by Cubism Architects & Interiors


Section of House of Lights by Cubism Architects & Interiors




Most Visited Articles




Subscribe

Get our latest article and updates delivered straight to your inbox.