A Villa in a calm serene environment in the outskirts of Tirupur city in a widespread plot size of 10000 sqft, has been articulated with a neutral colour palette of white and grey, inviting wholesome of bright light and ventilated with large openings to enhance the beauty of living. 16’ Cantilevered and suspended MS steel structure creates interest to the Porch entry enhancing the front yard of 40’ landscaping width. The Key concept of the design is to achieve the openness inside and outside the building through natural lighting and ventilation without compromising the privacy and enclosure. Vasthu was one of the main requirements from the client. 

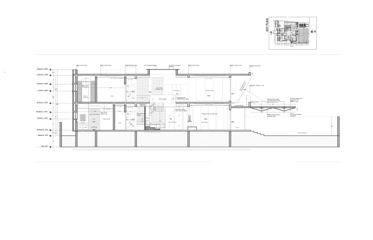
The Central axis of the residence cuts through the central axis of the Cantilevered porch, Main door, Pooja and skylight above, thereby providing a holistic experience of Linearity, at the same time avoiding the monotony through various interior elements and partitions. The 16’x16’ (265sqft) of Entrance Porch is made of cantilevered MS structure secondarily supported by suspension from the roof above. A 12mm metal insert plate is welded with the inner layer of cantilevered RCC beam during construction, to which the MS structure is fabricated. The courtyard acts as a consolidating element of this huge massing and functionally integrates the overall spatial configuration. The central skylight focuses on the Pooja. The visual frames of Hierarchy is enabled from the main entrance being the first frame, Partition frame in foyer being the mid-frame, Pooja frame as interior element being the third final frame. The frames grow hierarchically with size and height. The single strip window in staircase cuts through floor levels and bends in the roof to create interest and linearity in receiving light.

The service ducts were designed in such a way that they become elements of Elevation themselves. Massing of elevation was self-evolved during the process of designing. The residence design is complimented by appropriate landscape design and simple elevation with neutral colours. The design extravagantly fills the spaces with uniqueness, functionality, simplicity and lush of light and ventilation which were the key expectations of the client.


Tirupur,Tamil Nadu,India

Architects : Zraaya Architects
Area : 8425 sq.ft.
Year of Completion : 2022
Website : https://www.instagram.com/arthisrivijay/

Front east Elevation -House of Linearity by Zraaya Architects


North East View -House of Linearity by Zraaya Architects


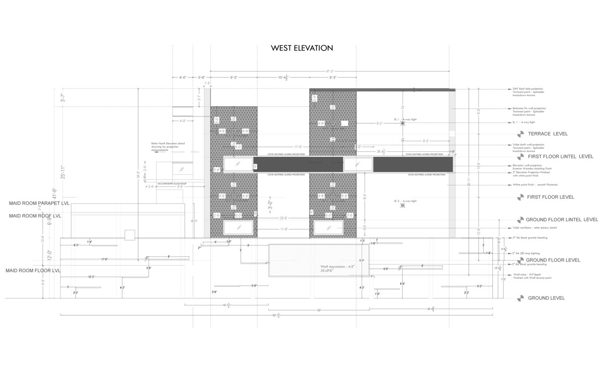
West elevation -House of Linearity by Zraaya Architects


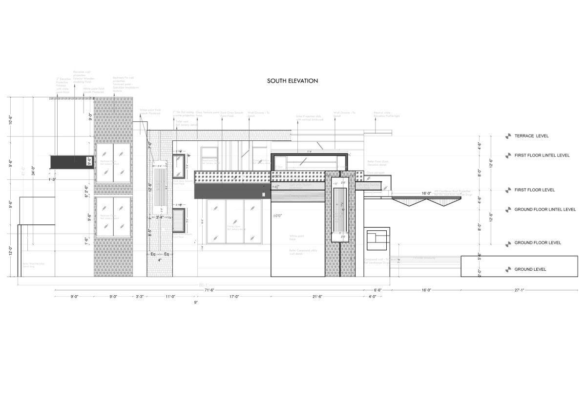
South elevation -House of Linearity by Zraaya Architects


Frames of Hierarchy -House of Linearity by Zraaya Architects


Cantilever Porch roof-House of Linearity by Zraaya Architects


Cantilever Porch roof-House of Linearity by Zraaya Architects


Foyer-House of Linearity by Zraaya Architects


Collapsable Door Foyer-House of Linearity by Zraaya Architects


Informal Living-House of Linearity by Zraaya Architects


Formal Living


Central space-House of Linearity by Zraaya Architects


Skylight and Pooja-House of Linearity by Zraaya Architects


First Floor master bedroom-House of Linearity by Zraaya Architects


Master bedroom-House of Linearity by Zraaya Architects


Party space-House of Linearity by Zraaya Architects


Roof cut Linear strip window-House of Linearity by Zraaya Architects


Central Skylight-House of Linearity by Zraaya Architects


South elevation - House of Linearity by Zraaya Architect


West elevation -House of Linearity by Zraaya Architects


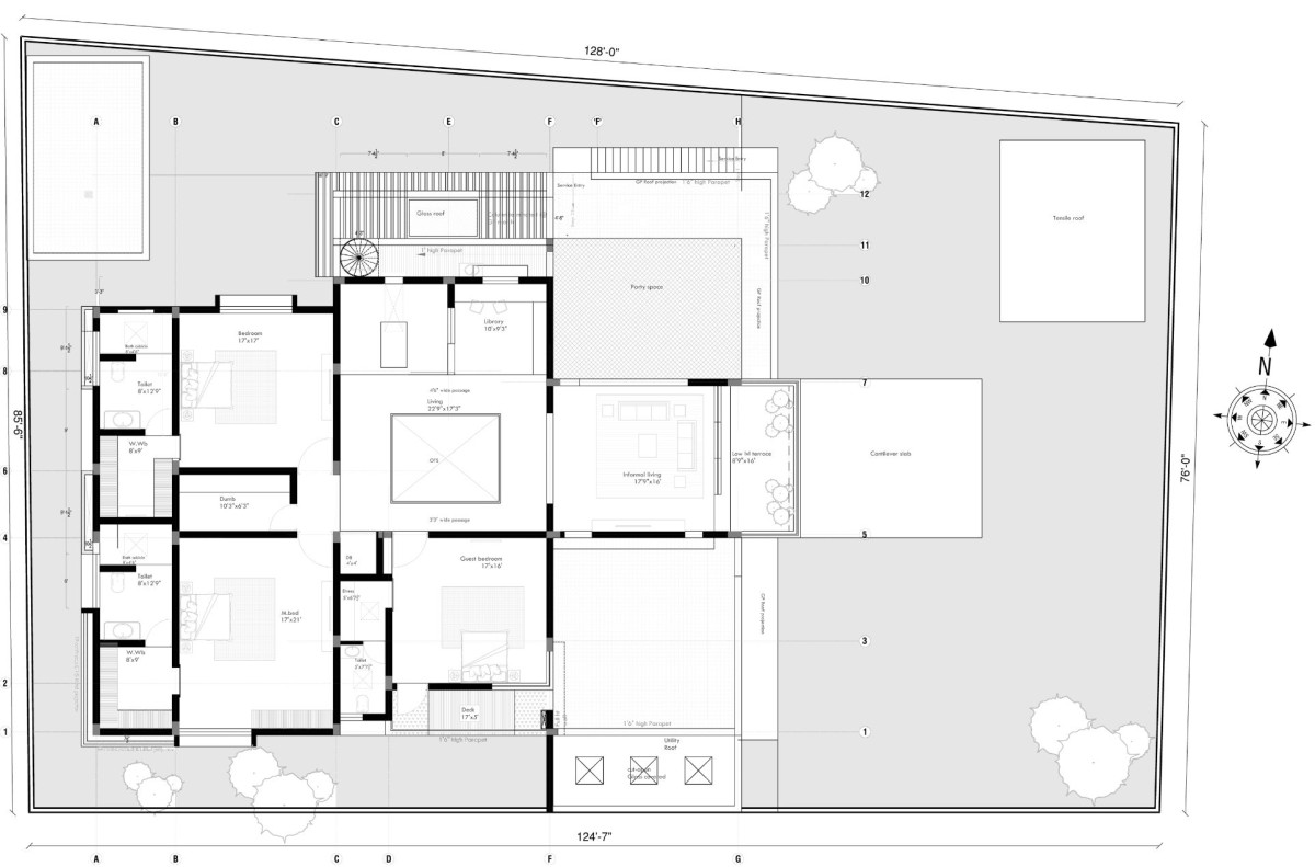
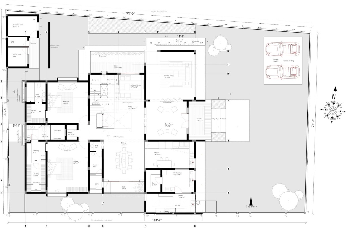
Ground floor plan-House of Linearity by Zraaya Architects


First floor plan-House of Linearity by Zraaya Architects


Section-House of Linearity by Zraaya Architects




Most Visited Articles




Subscribe

Get our latest article and updates delivered straight to your inbox.