Text provided by Architect

The site is located in a compact residential neighbourhood in the city of Tirupati. Typically with narrow roads, and homes located quite close to each other, the central core of the buildings can get quite dark. Another drawback was the lack of views / vistas on all four sides.  With a challenging site like this, it really is the form of the building that can have the biggest impact on the micro climate and the livability of the spaces. As a result we wanted to create an inward looking oasis. By orienting the living spaces to embrace natural light, breezes, and nature, we aimed to enhance the resident’s daily experience. 

A standout feature in the house is the external façade, designed to evoke a sense of sanctuary amidst urban hustle. Inspired by the need of protection from various factors such as extreme heat, close proximity to the roads and neighbouring homes the façade incorporates a curtain of terracotta breeze blocks. The expression of the façade was to enhance a weathered object within the landscape.  It spans three floors, offering privacy and protection from the extreme weather.  It houses alternating balconies within, which offer interesting visual connections for the inhabitants. And these pockets are used for the incorporation of the landscape for their home. This also allows for all spaces to be near the garden and to be able to see light change through the seasons and hours of the day. There are different ways to experience the home based on where you are vertically. 

Tirupati,Andhra Pradesh,India

Architects : Yellow Door Architects
Area : 8000 sq. ft.
Year of Completion : 2024
Website : https://www.instagram.com/yellowdoorarchitects/

Exterior view of House of Quite Llight by Yellow Door Architects


Exterior view of House of Quite Llight by Yellow Door Architects

The simple building form is comfortable to inhabit, relaxed, and has an easy lifestyle feeling about it. The home is organized in three levels. The living spaces on all three floors are located towards the front side of the home, making the rear side more private and houses all the bedrooms and en suites. Internally we wanted to capture a spirit of a tropical haven. The use of simple cement finishes with teak wood accents, elegant white marble, and timber ceilings infuses the spaces with warmth and a relaxed ambiance. Carefully curated materials such as locally sourced stones, natural oxide floorings, banana fiber mats, and bamboo-crafted lighting elements contribute to the tropical mood, ensuring a harmonious blend of comfort and style. 

In essence, our design approach for this house harmonizes functionality with aesthetics, creating a welcoming abode that celebrates its surroundings while offering a serene retreat from the urban rhythm of Tirupati.


Entrance of House of Quite Llight by Yellow Door Architects


Entrance foyer of House of Quite Llight by Yellow Door Architects


Living room of House of Quite Llight by Yellow Door Architects


Living room of House of Quite Llight by Yellow Door Architects


Dining of House of Quite Llight by Yellow Door Architects


Family living of House of Quite Llight by Yellow Door Architects


Family living of House of Quite Llight by Yellow Door Architects


Library room of House of Quite Llight by Yellow Door Architects


Library room of House of Quite Llight by Yellow Door Architects


Deck 1 of House of Quite Llight by Yellow Door Architects


Deck 1 of House of Quite Llight by Yellow Door Architects


Guest Bedroom of House of Quite Llight by Yellow Door Architects


Master Bedroom of House of Quite Llight by Yellow Door Architects


Master Bedroom of House of Quite Llight by Yellow Door Architects


Master Bedroom of House of Quite Llight by Yellow Door Architects


Bedroom 3 of House of Quite Llight by Yellow Door Architects


Third Floor Family Living of House of Quite Llight by Yellow Door Architects


Third Floor Family Living of House of Quite Llight by Yellow Door Architects


Deck 2 of House of Quite Llight by Yellow Door Architects


Terrace of House of Quite Llight by Yellow Door Architects


Dusk light exterior view of House of Quite Llight by Yellow Door Architects


Dusk light exterior view of House of Quite Llight by Yellow Door Architects


Dusk light exterior view of House of Quite Llight by Yellow Door Architects


Ground Floor Plan of House of Quite Llight by Yellow Door Architects


First Floor Plan of House of Quite Llight by Yellow Door Architects


Second Floor Plan of House of Quite Llight by Yellow Door Architects


Third Floor Plan of House of Quite Llight by Yellow Door Architects


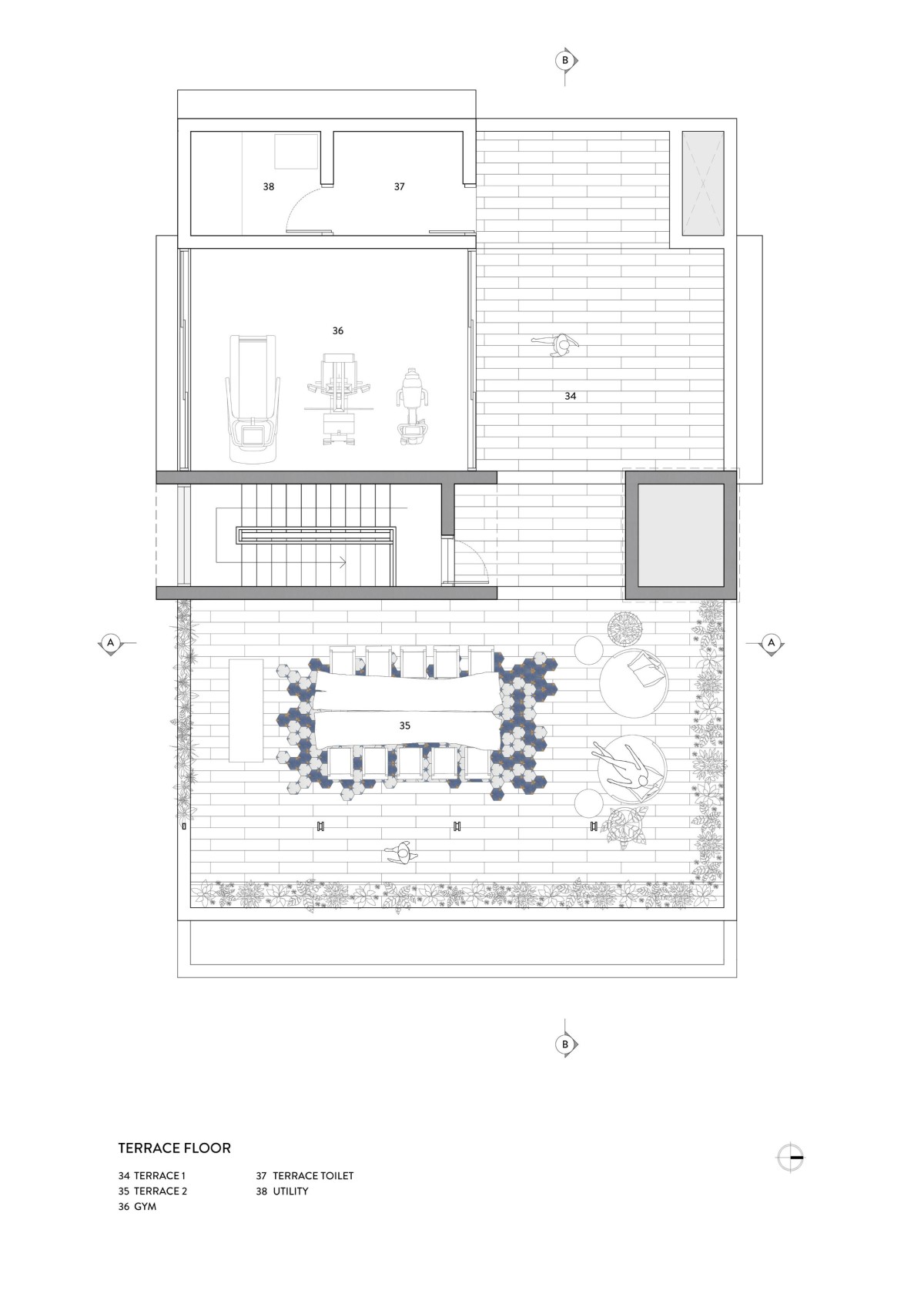
Terrace Floor Plan of House of Quite Llight by Yellow Door Architects


Section AA of House of Quite Llight by Yellow Door Architects


Section BB of House of Quite Llight by Yellow Door Architects




Most Visited Articles




Subscribe

Get our latest article and updates delivered straight to your inbox.