Text provided by Architect

Nestled in the foothills of the Western ghats outside of Ghargaon, Ahilyanagar in Maharashtra, The Ikyam Farmhouse, is a study in quiet restraint. It is a modern farmhouse based on the symbiosis between craft, climate and a gentle relationship with the surrounding landscape. At 8180 sqft. , the house occupies a small portion of the large one acre plot. The calm horizontal plane it carves into the sloping topography on site, is an intentional and measured intervention that frames views, guides winds and stages sunlight itself as materials.

The sites dramatic topography informed the primary design response. Rather than flattening the terrain, a terraced compound defined by stone retaining walls was created that bridges the cultivated fields below and wild hillside above. The plan reads as a linear spine. The Living and sleeping pavilions are organized with framed vistas and layered terraces that are oriented towards the valley or the ridgeline. The service and parking areas are tucked away into the periphery. The circulation is kept simple and purposeful, a winding stone paved pathway that meanders around the site.

The client sought a simple yet elegant weekend home that would embrace the outdoors. The design evolved around a central spine with a staircase that connects the living, dining, and sleeping zones, each of which open into landscaped courts and decks. 

Ahilyanagar,Maharashtra,India

Architects : Aher Design Studio
Area : 8180 sq. ft.
Year of Completion : 2025
Website : https://www.instagram.com/aher_design_studio/

Entrance Pathway of Ikyam Farmhouse by Aher Design Studio


Front Elevation of Ikyam Farmhouse by Aher Design Studio

The spatial layout promotes openness and interaction. The living volume, while is not ostentatious. It acts as a pivot .The interiors flow seamlessly as sequences of view and movement unfold, a shaded verandah leads into the garden, a stepped path down to the lower farm, a terrace that reads like a quiet lookout. Framed views of the farmland and natural hilly landscape bring calm and continuity. Each space is composed for the human scale with measured proportions and an emphasis on the calm horizontality that mirrors the fields beyond.

Material choices are deliberate and local. Dark, random-rubble basalt cladding anchors the building visually to its rocky context.  In contrast, the large plastered walls are painted white to lift the composition and so that light can play across the surfaces and volumes. Floors are laid in Kotah stone punctuated by hand-cut Jaisalmer inlays, a quiet detail that grounds the interiors in Indian craft while providing a warm tonal counterpoint to the cool grey floor. Rich, solid teak wood forms the extensive door and window frames, custom joinery, and the striking, sculptural staircase. This material infusion provides crucial warmth and an undeniable sense of permanence. Natural light and sculptural staircase with wooden railing & jaisalmer floor becomes the central decorative element. It is soft, diffused and ever-changing, animating the subtle interiors.


Exterior view of Ikyam Farmhouse by Aher Design Studio


Exterior view of Ikyam Farmhouse by Aher Design Studio


Exterior view of Ikyam Farmhouse by Aher Design Studio


Verandah of Ikyam Farmhouse by Aher Design Studio

Passive Design principles underpin the comfort strategy. The house is oriented to reduce western exposure, while dynamically placed large openings and shaded verandas promote cross-ventilation ultimately reducing cooling loads. Rainwater harvesting and minimal site disturbance further reduce environmental impact. The predominant use of locally sourced stone and timber lowers embodied energy while rooting the building in place. 

A core principle of the project is the dissolution of boundaries. Deeply shaded verandahs and covered decks extend the living space outward, acting as crucial, climate-responsive thresholds between the enclosed rooms and the vast open sky. This emphasis on sheltered intermediate spaces is a direct nod to classic Maharashtrian vernacular architecture.


Verandah of Ikyam Farmhouse by Aher Design Studio


Living room of Ikyam Farmhouse by Aher Design Studio


Living room of Ikyam Farmhouse by Aher Design Studio


Dining of Ikyam Farmhouse by Aher Design Studio


Kitchen of Ikyam Farmhouse by Aher Design Studio


Staircase of Ikyam Farmhouse by Aher Design Studio


Staircase of Ikyam Farmhouse by Aher Design Studio


Staircase view of Ikyam Farmhouse by Aher Design Studio


Bedroom 1 of Ikyam Farmhouse by Aher Design Studio

The morning light filters through teak shutters, while afternoon shadows animate the floors. Every key room, from the master bedroom to the upper-level balconies, is strategically oriented to ensure a direct, unobstructed visual connection to the sloping hills or the lower agricultural fields.  A restrained material palette allows light to become the main decorative element — soft, diffused, and ever-changing through the day.

More than just a residence, The Ikyam Farmhouse is an experience of a place. A contemporary interpretation of vernacular wisdom, it delivers architecture that embodies simplicity, permanence and a quiet grace that finds a beautiful balance with nature.


Bedroom 1 of Ikyam Farmhouse by Aher Design Studio


Bedroom 2 of Ikyam Farmhouse by Aher Design Studio


Toilet of Ikyam Farmhouse by Aher Design Studio


Balcony of Ikyam Farmhouse by Aher Design Studio


Terrace of Ikyam Farmhouse by Aher Design Studio


Balcony view of Ikyam Farmhouse by Aher Design Studio


Night exterior view of Ikyam Farmhouse by Aher Design Studio


Site Plan of Ikyam Farmhouse by Aher Design Studio


Ground Floor Plan of Ikyam Farmhouse by Aher Design Studio


First Floor Plan of Ikyam Farmhouse by Aher Design Studio


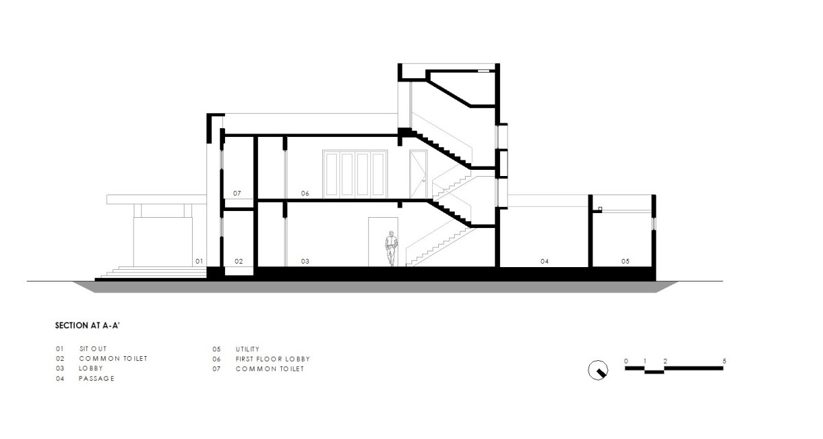
Section AA of Ikyam Farmhouse by Aher Design Studio


Section BB of Ikyam Farmhouse by Aher Design Studio


Section CC of Ikyam Farmhouse by Aher Design Studio




Most Visited Articles




Subscribe

Get our latest article and updates delivered straight to your inbox.