Architecture

20-11-2025

Photographer : Studio f/8

Text provided by Architect

Located in HMT layout, Bangalore, Isha_Srinidhi Nilaya is multi-generation home designed on a compact 60x40 ft.(2400 sq.ft)) East–facing plot with a total built-up area of 8000 sq. ft. Facing a lush public Park, the residence is conceived as a layered response to its Urban setting-balancing the needs for privacy with a strong desire to connect visually and spatially with the green expanse across the street.

The design strategy revolves around maximizing natural light ventilation and views achieved through the instigation of a double–height courtyard, organizing and garden–facing balconies on all habitable vertical space levels. A deliberate effort was made to open up the building envelope towards the East, allowing major functions like the kitchen, dining, bedrooms, and terrace garden to enjoy uninterrupted garden views and early morning light.

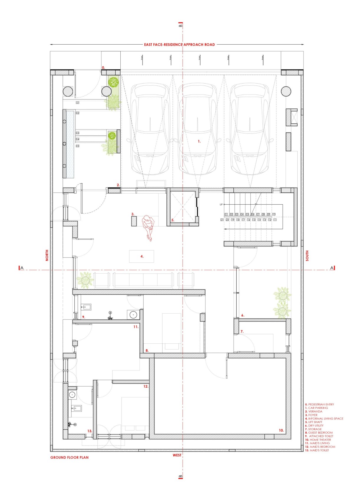
The house is vertically organized across four levels. The ground floor accommodates a car drop-off zone, parking for three vehicles, a formal living room, a Guest Bedroom, a Home theatre, and a maid's room with a separate entrance, ensuring privacy for domestic staff. This floor functions as a semi-public base with service and guest amenities tucked efficiently into the plan. 

Bangalore,Karnataka,India

Architects : a+me Architects
Area : 8000 sq. ft.
Year of Completion : 2024
Website : https://www.instagram.com/aplusme.in/

Exterior view of Isha_Srinidhi Nilaya by a+me Architects


Entrance Porch of Isha_Srinidhi Nilaya by a+me Architects


Entrance of Isha_Srinidhi Nilaya by a+me Architects


Entrance Foyer of Isha_Srinidhi Nilaya by a+me Architects


Informal living space of Isha_Srinidhi Nilaya by a+me Architects


Family living of Isha_Srinidhi Nilaya by a+me Architects

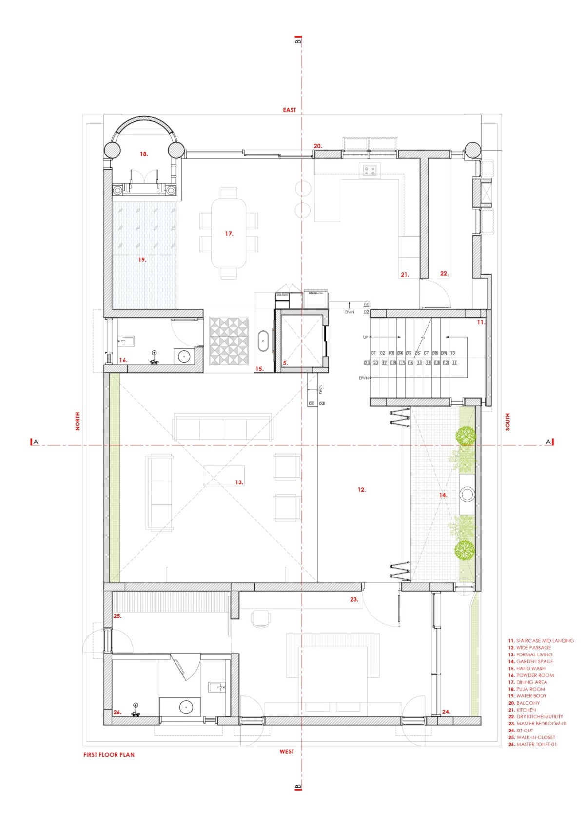
The first floor acts as the social and spiritual heart of the house. It features a double-height formal living area that opens into a linear courtyard, bringing in daylight and enabling passive cooling. A puja room, kitchen, and dining area are placed strategically as per South Indian Vastu on the east faces to fulfill the Vastu benefits, and same way, it benefits from front park views utilization. A master bedroom on this floor ensures privacy for the primary residents while maintaining proximity to communal spaces.


TV Unit of Isha_Srinidhi Nilaya by a+me Architects


View from family living of Isha_Srinidhi Nilaya by a+me Architects


Passage that connects family living & courtyard of Isha_Srinidhi Nilaya by a+me Architects


Passage that connects family living & courtyard of Isha_Srinidhi Nilaya by a+me Architects


Courtyard of Isha_Srinidhi Nilaya by a+me Architects


Courtyard of Isha_Srinidhi Nilaya by a+me Architects


Dining of Isha_Srinidhi Nilaya by a+me Architects


Kitchen of Isha_Srinidhi Nilaya by a+me Architects


Hand Wash Area of Isha_Srinidhi Nilaya by a+me Architects


Bedroom 1 of Isha_Srinidhi Nilaya by a+me Architects


Bedroom 1 of Isha_Srinidhi Nilaya by a+me Architects


Bedroom 2 of Isha_Srinidhi Nilaya by a+me Architects


Study Nook of Isha_Srinidhi Nilaya by a+me Architects

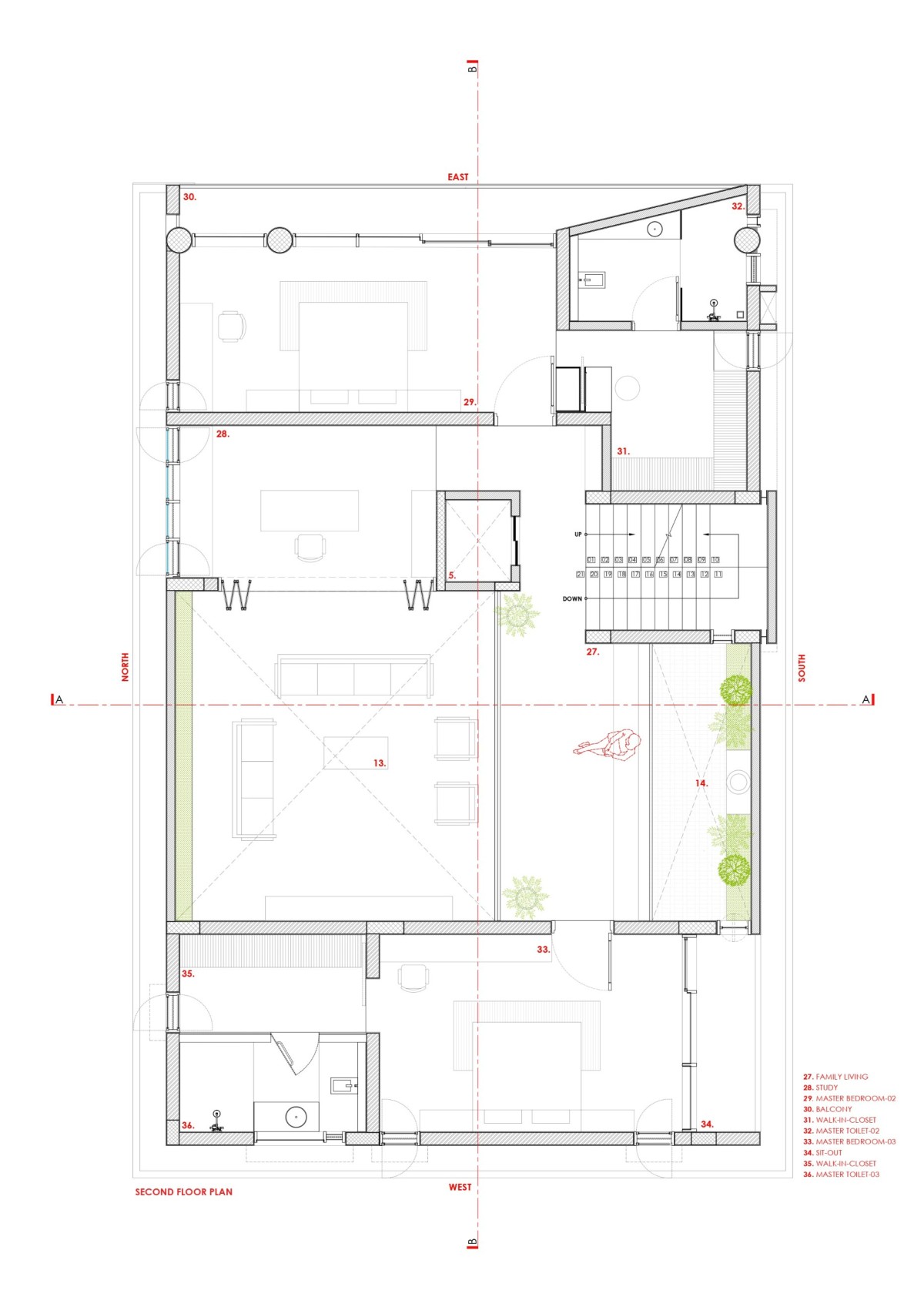
On the  Second floor, the layout shifts to a more private tone, with two large master bedrooms, family living, and a study with library space. Each space is extended with balconies facing the garden, offering shade and transitional zones between indoor and outdoor. These spaces allow for leisure and contemplation while maintaining visual continuity with the exterior.


Staircase of Isha_Srinidhi Nilaya by a+me Architects


Private Living of Isha_Srinidhi Nilaya by a+me Architects


Terrace of Isha_Srinidhi Nilaya by a+me Architects

The third floor is focused on wellness and relaxation, housing a gymnasium in a multifunctional space, a laundry area, and a terrace space with a planter box with lush green plants. The front east public park views serve as a green retreat at the height level, ideal for family gatherings and quiet reflection in the evening.  

Materially, the house employs a mix of exposed concrete, natural stones, woods, terracotta tiles, and glass- creating a warm, durable, and climate-responsive palette. The thoughtfulness of lights, air, and greenery defines the identity of the home. 

Isha_Srindhi Nilaya is sensitive to the urban sector site context, orientation, and family life –offering a spatially rich and environmentally tuned residence in the heart if the context on its. 


Night exterior view of Isha_Srinidhi Nilaya by a+me Architects


Ground Floor Plan of Isha_Srinidhi Nilaya by a+me Architects


First Floor Plan of Isha_Srinidhi Nilaya by a+me Architects


Second Floor Plan of Isha_Srinidhi Nilaya by a+me Architects


Third Floor Plan of Isha_Srinidhi Nilaya by a+me Architects


Section AA of Isha_Srinidhi Nilaya by a+me Architects


Section BB of Isha_Srinidhi Nilaya by a+me Architects


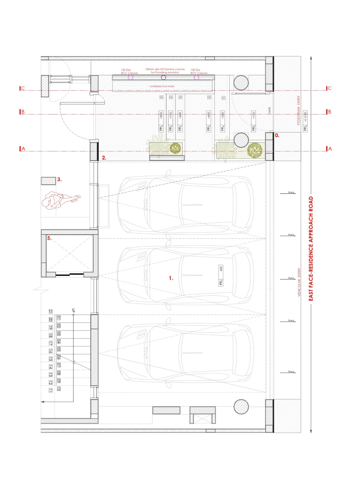
Entrance Space Plan of Isha_Srinidhi Nilaya by a+me Architects


A+103-HMT Section AA Details of Isha_Srinidhi Nilaya by a+me Architects


A+103-HMT Section BB Details of Isha_Srinidhi Nilaya by a+me Architects


A+103-HMT Section CC Details of Isha_Srinidhi Nilaya by a+me Architects




Most Visited Articles




Subscribe

Get our latest article and updates delivered straight to your inbox.