Architecture

27-10-2023

Photographer : ARJUN KRISHNA, ARUNKUMAR D, ROHIT VERNEKAR

A home where the line between indoors and outdoors is effectively gets blurred. Stepping into the 6000 sqft residence located in a quiet neighbourhood away in the bustling streets of Bangalore, one finds themselves in an immense space where the beauty of nature permeates every aspect of the home.

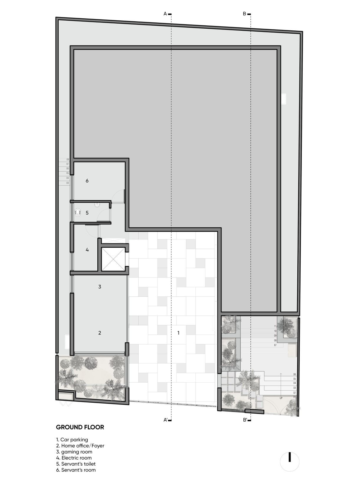
In a departure from the norm, we opted for an innovative approach to parking. Rather than excavating a basement, the habitable levels have been elevated, leaving the ground floor exclusively for parking. This decision not only ensures convenience but also imparts a playful volume to the living spaces. The steps leading to the first floor offer a delightful illusion of floating within the landscape, with the garden seamlessly integrated into this visual tapestry.

The ground floor is a verdant oasis, adorned with sprawling gardens meticulously landscaped to dissolve the boundaries between the interior and the exterior. A captivating water feature graces the entrance, setting the tone for the opulence that awaits within. Throughout the home, strategically positioned courtyards beckon as discreet outdoor retreats, extending their embrace into the indoor areas. In the central courtyard, a swing hangs as a subtle yet inviting element, inviting residents to recline in the lap of nature.

Bangalore,Karnataka,India

Architects : Collage Architecture Studio
Area : 6997 sq.ft.
Year of Completion : 2022
Website : https://www.instagram.com/collage_architecture_studio/

Exterior view of Janani House by Collage Architecture Studio


Exterior view of Janani House by Collage Architecture Studio


Living room of Janani House by Collage Architecture Studio

The open-plan layout of the common areas abstains from a conventional partitioning with walls in favor of split levels. This design choice not only promotes an uninterrupted flow but also affords captivating views of the various courtyards from any corner of the house. Long slit windows and multiple skylights generously bathe the interior in natural light, imbuing the space with a warmth reminiscent of a sun-kissed meadow. Large windows in the dining area facing east and the living area facing west usher in a continuous breeze that gracefully traverses the home. The skylights, aside from their function as light sources, create a dramatic interplay of light and shadow, choreographing the sun's trajectory through the interiors.

In a masterful stroke of design, the installation of onyx in the pooja room, bathes the space in splendid natural light. The result is a divine luminescence that envelops those engaged in prayer, offering a truly immersive spiritual experience.


Living room of Janani House by Collage Architecture Studio


Central court of Janani House by Collage Architecture Studio


Central court of Janani House by Collage Architecture Studio


Kitchen of Janani House by Collage Architecture Studio


Swing and staircase of Janani House by Collage Architecture Studio


Staircase of Janani House by Collage Architecture Studio


Family living of Janani House by Collage Architecture Studio

The second floor of the residence seamlessly connects with the landscape below through double-height spaces. The master bedroom integrates an inward-looking courtyard that provides a serene and private oasis. The daughters' and son's rooms, equally tranquil, open up to their own internal gardens and balconies, providing peaceful vistas of a majestic raintree.

The carefully chosen neutral color palette for the entire design purposefully contrasts with the lush greenery outside. Prioritizing a palette of white, grey, and brown, the interiors exude a harmonious blend of wood and white walls, harmonizing with the local variants of grey marbles such as sira and sadarahalli stones.

In unison, the key design elements of split levels, slit windows, skylights, and garden nooks come together to craft a living environment that transcends the ordinary urban home. This residence breathes life into the idea that a home should not merely be a structure but a living, breathing entity intimately intertwined with the natural world, where every corner tells a story of beauty and serenity, inviting you to immerse yourself in the embrace of nature's timeless grace.


Family living of Janani House by Collage Architecture Studio


Lobby of Janani House by Collage Architecture Studio


Bedroom of Janani House by Collage Architecture Studio


Bedroom of Janani House by Collage Architecture Studio


Elevation of Janani House by Collage Architecture Studio


Elevation of Janani House by Collage Architecture Studio


Ground floor plan of Janani House by Collage Architecture Studio


First floor plan of Janani House by Collage Architecture Studio


Second floor plan of Janani House by Collage Architecture Studio


Terrace plan of Janani House by Collage Architecture Studio


Section AA of Janani House by Collage Architecture Studio


Section BB of Janani House by Collage Architecture Studio




Most Visited Articles




Subscribe

Get our latest article and updates delivered straight to your inbox.