Architecture

13-06-2024

Nestled within the urban fabric of Koramangala, Bengaluru, the residence is designed to accommodate a family of four. This project goes beyond the construction of physical space; it's a profound journey to build a home that seamlessly integrates with its inhabitants, whether through the warmth of sunlight, the soothing presence of the wind, the splash of water, and by embracing the seasonal changes of surrounding trees, the project aims to build a delightful living experience for the inhabitants.
 
“I don’t believe architecture has to speak too much. It should remain silent and let nature in the guise of sunlight and wind” -Tadao Ando

The family's preference for a minimalistic approach has significantly influenced the design, leading to the implementation of clean lines, uncluttered white forms, and a focus on privacy. The clean lines contribute to a sense of order and simplicity, while the uncluttered white forms enhance the feeling of spaciousness.A unique element was incorporated where various avatars of Lord Ganesh's idols, collected by the family over the years, adorned different areas of the house, creating a spiritual ambiance.

Taking inspiration from the majestic African tulip trees (Spathodea campanulata) at the front of the site, the structure appeared as if it was suspended from a tree, creating the illusion of a treehouse. The design, centered around these trees aims to seamlessly merge indoor and outdoor spaces, utilizing well-balanced cantilever cubes, wooden louvers, and expansive windows to provide unhindered views and foster a connection with the natural landscape.

Bangalore,Karnataka,India

Architects : Studio Detail
Area : 5920.15 sq. ft.
Year of Completion : 2023
Website : https://www.instagram.com/studiodetail_

Exterior view of K2 House by Studio Detail


Entrance of K2 House by Studio Detail


Foyer of K2 House by Studio Detail


Living room of K2 House by Studio Detail

The journey of this tranquil place begins by immersing the senses in a soothing soundscape of flowing water. Upon opening the gate, one is greeted by a statue of Lord Ganesha, bathed in the morning sunlight and surrounded by a basin of gently streaming water crafted from black basalt stone, creating a sacred atmosphere.

Continuing from this foyer, the path leads to a double-height lobby which is illuminated by a skylight. The inclusion of a glass window on the entrance wall establishes visual connectivity with the tree outside. This allows the morning light to cast enchanting patterned shadows from the tree, creating a captivating play of light on the blue canvas adorning the wall of the foyer, extending to the floor.


Dining of K2 House by Studio Detail


Kitchen of K2 House by Studio Detail


Children's Bedroom of K2 House by Studio Detail

Illustrating a narrative of harmonizing light, texture, and foliage, each floor's design is thoughtfully planned to consider climatic factors, enhancing the comfort of the inhabitants. The ground floor strategically situates public spaces such as the living room, kitchen, and dining area on the northern side, complemented by an enchanting light well adorned with Calathea lutea plants, creating a revitalizing and comfortable atmosphere. The master bedroom and office, positioned in the southwest, find solace amidst verdant buffers. 

Despite spatial limitations, creepers shield interiors from harsh sunlight from the south-west and foster calmness for the occupants. As they ascend to the First Floor, the Family room and study area are placed in the east basking in natural light, and its white marble flooring acts as a canvas capturing the interplay of shadows cast by trees, making the space visually appealing. Towards the rear, two bedrooms are accompanied by nature-infused bathrooms, offering a serene retreat away from the bustling road. 


Master Bedroom of K2 House by Studio Detail


Master Bedroom of K2 House by Studio Detail


Multipurpose space of K2 House by Studio Detail


Deck area of K2 House by Studio Detail


Deck area of K2 House by Studio Detail


Dusk light exterior view of K2 House by Studio Detail

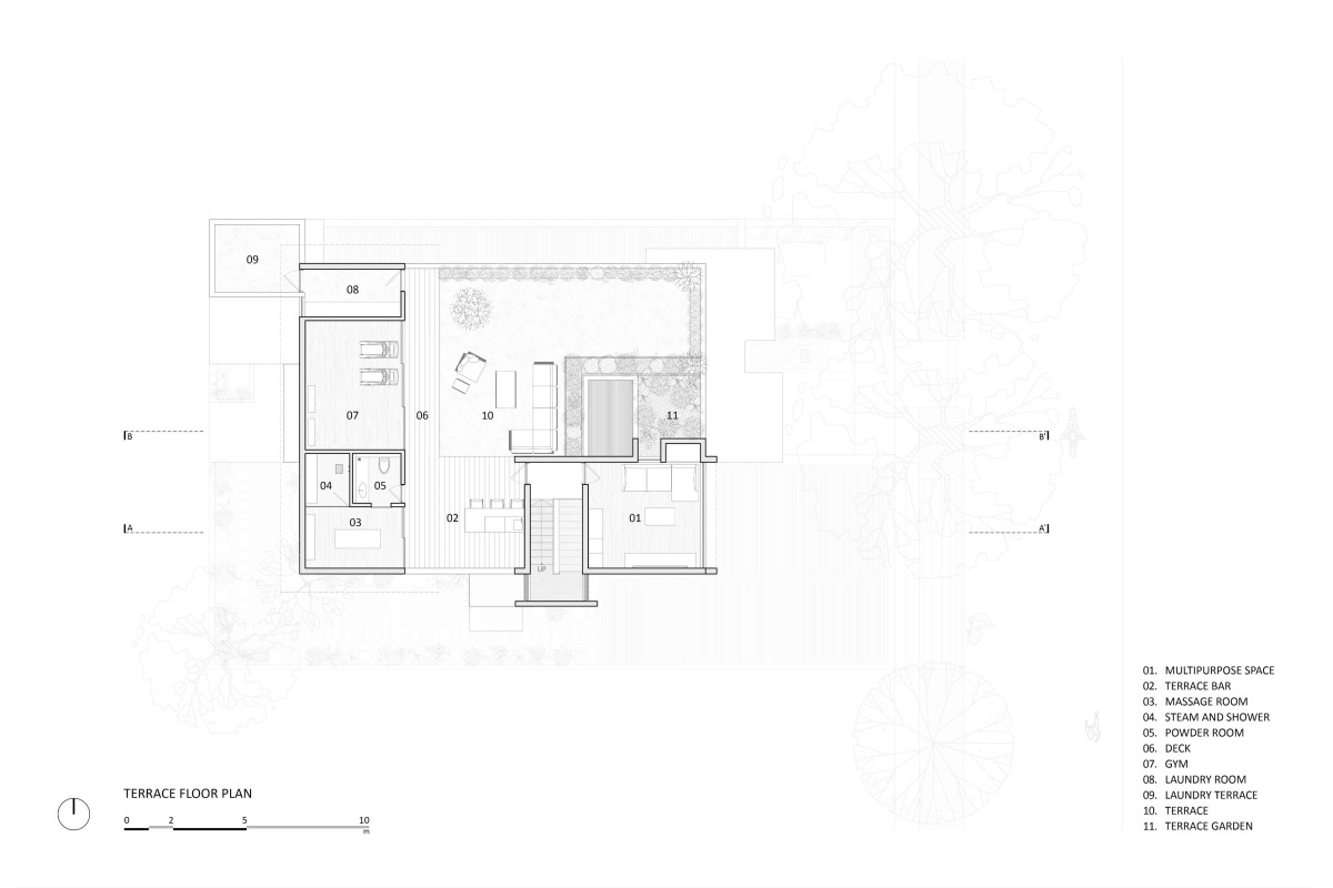
The terrace unravels as a recreational space, housing a spa, gym, multipurpose room, and a designated party area. The gym, adorned with expansive windows, bears witness to the tree’s seasonal growth, imparting a sense of upliftment to the mood. The bar, strategically positioned to overlook the terrace party area, exudes an aura of lively energy.

The seamless integration of sleek lines and natural elements results in a composed and harmonious atmosphere, forging a deep connection between the family and their environment. By prioritizing functionality and user-centric design, the space is cultivated into a minimalist yet elegant living space. The design blends seamlessly with the surrounding landscape, erasing the boundaries between indoor and outdoor spaces. This revitalizing environment fosters a sense of belongingness and tranquility, providing inhabitants with a serene living experience.


Dusk light exterior view of K2 House by Studio Detail


Dusk light exterior view of K2 House by Studio Detail


Ground floor plan of K2 House by Studio Detail


First floor plan of K2 House by Studio Detail


Terrace floor plan of K2 House by Studio Detail


Section AA of K2 House by Studio Detail


Section BB of K2 House by Studio Detail


Site plan of K2 House by Studio Detail




Most Visited Articles




Subscribe

Get our latest article and updates delivered straight to your inbox.