Nestled in the quiet greenery of Kalluketty, a small town in Kanyakumari, Tamil Nadu, Kalluveedu derives its name from both its location and its material identity—Kallu, the locally referred term for brick. Designed by Shils Designs, the 2800 sq.ft residence stands on elevated land surrounded by thick vegetation, with the house placed at the center of the plot to maximize views and breathing space on all sides.

The planning of the house draws inspiration from traditional South Indian homes, where a strong central axis anchors the spatial layout. Upon arrival, visitors are greeted by a serene sit-out clad in Kota stone flooring and edged with a Thinnai - a traditional raised seating area. This space has become an evening tea zone for the family of Mr. Victor and Mrs. Gemitha, setting the tone for a house rooted in cultural memory.

The front door opens up to a straight axis that visually connects the entire ground floor, starting with the living and TV space, which forms the social heart of the house. This leads to a guest bedroom and dining space placed symmetrically on either side. A spacious kitchen and a bedroom occupy the end of the axis. The living area is partly double-height, with a stairwell rising adjacent to it, creating a spatial pause and vertical connection.

Kuzhithurai,Tamil Nadu,India

Architects : Shils Designs
Area : 2800 sq. ft.
Year of Completion : 2024
Website : https://www.instagram.com/shilsdesigns/

Double Height Living Space of Kalluveedu – The Brick House by Shils Designs


Double Height Living Space of Kalluveedu – The Brick House by Shils Designs


Ceiling at living space of Kalluveedu – The Brick House by Shils Designs


Dining of Kalluveedu – The Brick House by Shils Designs


Kitchen of Kalluveedu – The Brick House by Shils Designs


Staircase of Kalluveedu – The Brick House by Shils Designs


First floor view of Kalluveedu – The Brick House by Shils Designs

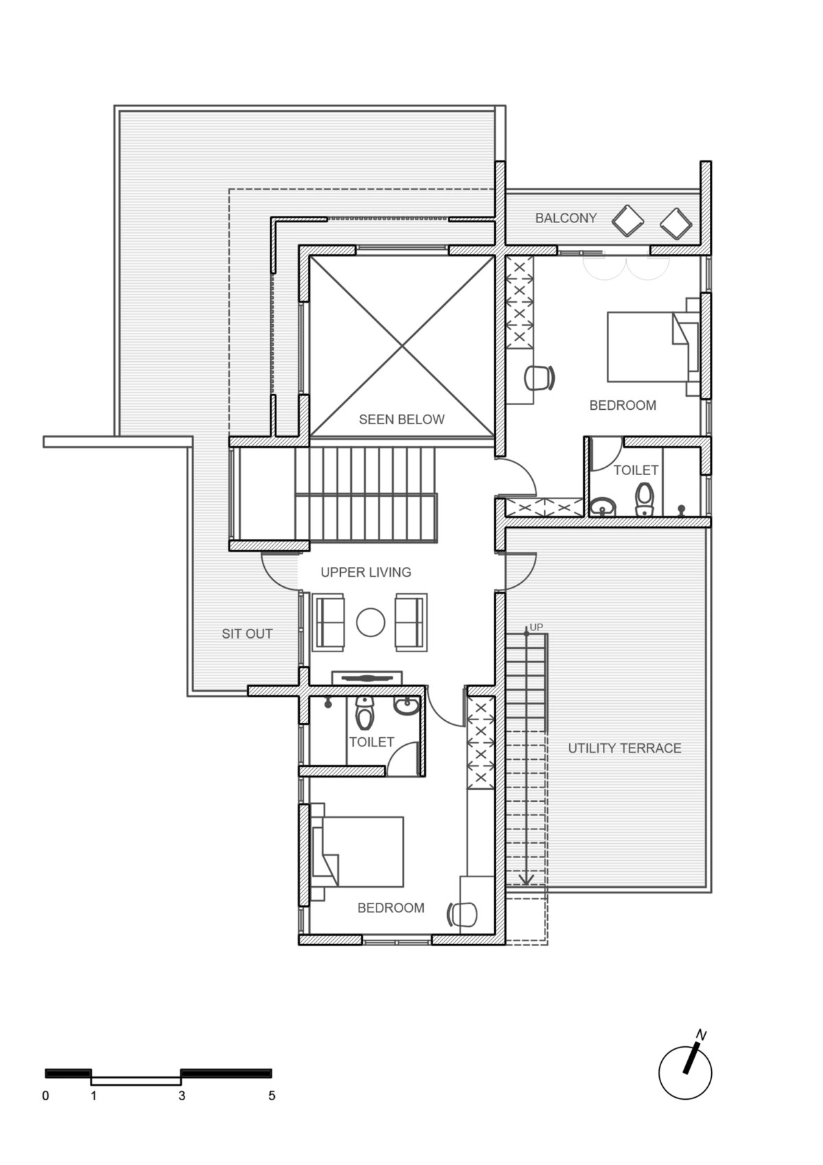
The upper level contains the master bedroom, a parents’ bedroom, and a small family lounge. This floor also features open sit-outs and balconies that draw in light, air, and occasional rain—enhancing the tropical character of the home. All spaces are visually and spatially connected; for instance, a louvered internal window in the master bedroom allows occupants to overlook the entrance, blending utility with a quiet playfulness.

Ventilation is a key design consideration. The double-height living space is topped with clerestory louvered windows, ensuring a steady flow of air and diffused light throughout the day. These passive design choices reduce dependence on artificial lighting and cooling, making the house more climate-responsive.

The material palette is kept simple, natural, and tactile. Brick cladding, Kota stone, beige vitrified tiles, and white-grey painted walls dominate the interiors, with wooden details adding warmth and quiet sophistication. The overall aesthetic is minimal, yet rooted in its tropical setting, lending a grounded elegance to the spaces.


Master Bedroom of Kalluveedu – The Brick House by Shils Designs

Kalluveedu is more than a residence—it is a quiet conversation between tradition and modern living, between family and landscape. It sits lightly on the land, embraces its environment, and offers a gentle rhythm of living for its residents. The architecture doesn't impose but instead frames everyday life with grace, humility, and purpose.

The design of Kalluveedu closely responds to the lifestyle, cultural values, and practical needs of the clients, Mr. Victor and Mrs. Gemitha. One of their key desires was a home that feels rooted in tradition while supporting modern-day living. This is achieved through a spatial layout inspired by traditional Tamil homes—organized along a central axis that brings order, clarity, and a sense of familiarity. The clients also wanted spaces that felt open, well-ventilated, and connected to nature. In essence, Kalluveedu is a personalized, climate-conscious, and culturally grounded response to the clients’ needs for comfort, tradition, openness, and connection to the environment.


Balcony of Master Bedroom of Kalluveedu – The Brick House by Shils Designs


Louvered window of master bedroom of Kalluveedu – The Brick House by Shils Designs


Bedroom of Kalluveedu – The Brick House by Shils Designs


Exterior view of Kalluveedu – The Brick House by Shils Designs


Ground Floor Plan of Kalluveedu – The Brick House by Shils Designs


First Floor Plan of Kalluveedu – The Brick House by Shils Designs




Most Visited Articles




Subscribe

Get our latest article and updates delivered straight to your inbox.