House of Interaction is a residence for a Public figure of the city where three generations of the family co-exist. Client’s brief called for having such spatial arrangements that they encourage not only horizontal, but also vertical interaction; discouraging isolation and yet retaining privacy. This fundamental need of the client called for a ‘Sectional Play’ and creation of volumes that revolve around the idea of developing this house as a ‘House of Interaction’. The idea is not limited to creating interacting opportunities for three generations to reside, but extends to creating interactive interfaces between the inside and the outside, developing elements that address the purpose of sustainability, aesthetics, identity and functionality in truest of its spirit.

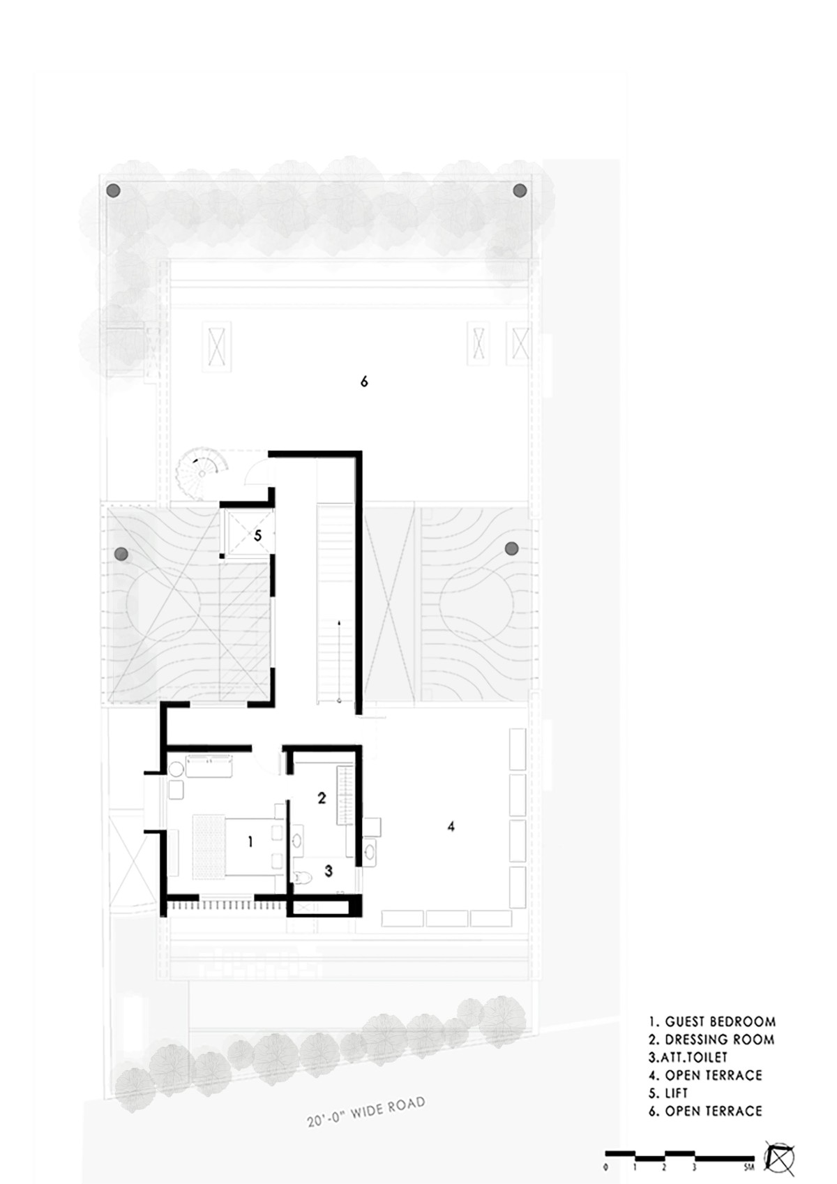
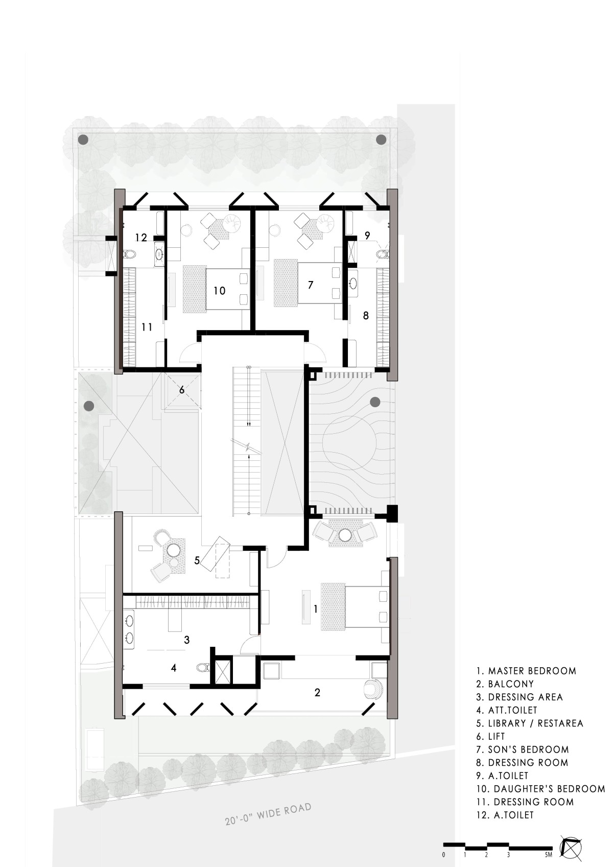
The house on a plot of 4600 Sq.Ft. is strategically split in two; where two identical brick masses are connected with a ‘connector’ block; eventually creating two masses along its length. The connector block is adjoined with two court spaces on both sides and the identical blocks are fused with gardens; thus extending experience of the inside to the landscape outside. Located on a busy city road, the plot is blessed with a magnificent view of large open space. The concern to create a buffer from noise and at the same time allowing the view is instrumental in design of west facade with inclined fins and deep seated habitable areas.

The use of two very distinct materials of brick and travertine stone enhances the dichotomy that the house represents. While the house calls for interactive volumes inside, bricks do talking on the outside. Rhythmic arrangement of bricks on the southern facade intends to bring down the indoor temperature through mutual shading. The arrangements create a drama of light and shadow on the facades with the sun striking on it. Brick bats of varied sizes were derived to achieve the rhythm on the facade. As the southern brick façade faces the harsh sun during day time, the substantial use of brick pattern helps to achieve lower temperature inside due to thermal insulating property of the brick. 

The house has a series of in-between spaces rendering an innate quality to the design of the house, keeping the interior spaces private and allows for interaction with the visitors. The courts, verandah, garden and the stilts- all in sync to achieve the purpose and to offer the most needed breakout spaces-visual as well as physical. The clutter free interior design, climate responsive facades and openings allows a lot of natural light to make one feel fresh.

Surat,Gujarat,India

Architects : Aangan Architects
Area : 7639 sq.ft.
Year of Completion : 2021
Website : https://instagram.com/aangan_architects?utm_medium=copy_link


Most Visited Articles




Subscribe

Get our latest article and updates delivered straight to your inbox.