Architecture

04-09-2025

Photographer : Reshma Kamat

The site was strategically located along a wide road, ensuring high visibility and easy access – ideal for attracting a young and energetic crowd.
 
The design was commissioned by a young start-up with the vision to establish a dynamic sports arena combined with a café. The client emphasized a minimal budget and sought a solution that would be functional, cost-effective, and visually appealing to a youthful audience. Sustainability and reuse were also core values the client wanted to reflect in the design.
 
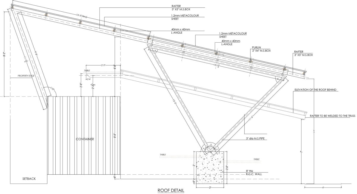
To meet these goals, the construction approach focused on reusing industrial materials. Two shipping containers—a 40-foot and a 20-foot—were procured from the Chennai shipping yard. These containers were placed on a raised platform. The 40-foot container was carefully modified to house the kitchen, providing an efficient and compact culinary space. The 20-foot container was adapted to include the restrooms, making the best use of its smaller footprint. A multilevel metal sloping roof was designed to shelter the containers and common areas while ensuring clear visibility of the sports arena. This roofing not only provided functional shading and weather protection but also contributed to the modern industrial aesthetic of the space.

Local materials were used extensively to ground the project in its context. Stone flooring sourced from the surrounding region gave the space a rustic, natural feel while keeping costs low. Fencing enclosed the property, adding safety and defining the site boundary without the need for heavy construction.

The project successfully delivered a sustainable, cost-effective, and aesthetically youthful structure using repurposed materials. The design met all functional needs while embodying a unique and vibrant character suitable for a sports and recreational venue.
 

Bangalore,Karnataka,India

Architects : Design Plus
Area : 2500 sq. ft.
Year of Completion : 2023
Website : https://www.instagram.com/design_plusblr/

Level 1 seating of Kick Shack by Design plus


Level 1 seating of Kick Shack by Design plus


Multi level roof (allowing cross ventilation) of Kick Shack by Design plus


View from staircase of Kick Shack by Design plus


View from level 2 seating area of Kick Shack by Design plus


Cross section of Kick Shack by Design plus


Level 2 seating overlooking sports arena of Kick Shack by Design Plus


Level 2 seating overlooking sports arena of Kick Shack by Design Plus


Fence stone as flooring of Kick Shack by Design plus


Master Plan of Kick Shack by Design Plus


Container Plan of Kick Shack by Design Plus


Single roof section of Kick Shack by Design Plus


Double roof section of Kick Shack by Design Plus




Most Visited Articles




Subscribe

Get our latest article and updates delivered straight to your inbox.