Text provided by Architect

“The space shouldn't look like a typical workshop; instead, it should create a campus-like environment to promote healthier and happier morale among the people working here,” – clients ideological brief.

Located 20 km from Jammu Airport on the Jammu-Srinagar National Highway, the project transforms a degraded site, once filled with waste, into a sustainable workshop complex. The project mainly draws inspiration from the site, a barren area with a small hillock on the eastern edge and a landfill that slopes into a seasonal stream on the west. This unique natural setting guided the vision to restore the land by planting trees and greenery, ensuring ecological renewal. The goal was to turn the site into a flourishing, sustainable environment where the built structures blend harmoniously with nature.

The guiding principle for the client and the design team was to “Let the materials and textures age gracefully. The built environment should eventually recede into the background, allowing nature to inspire and take centre stage," thereby enabling nature to take over and inspire those who work and visit the site.

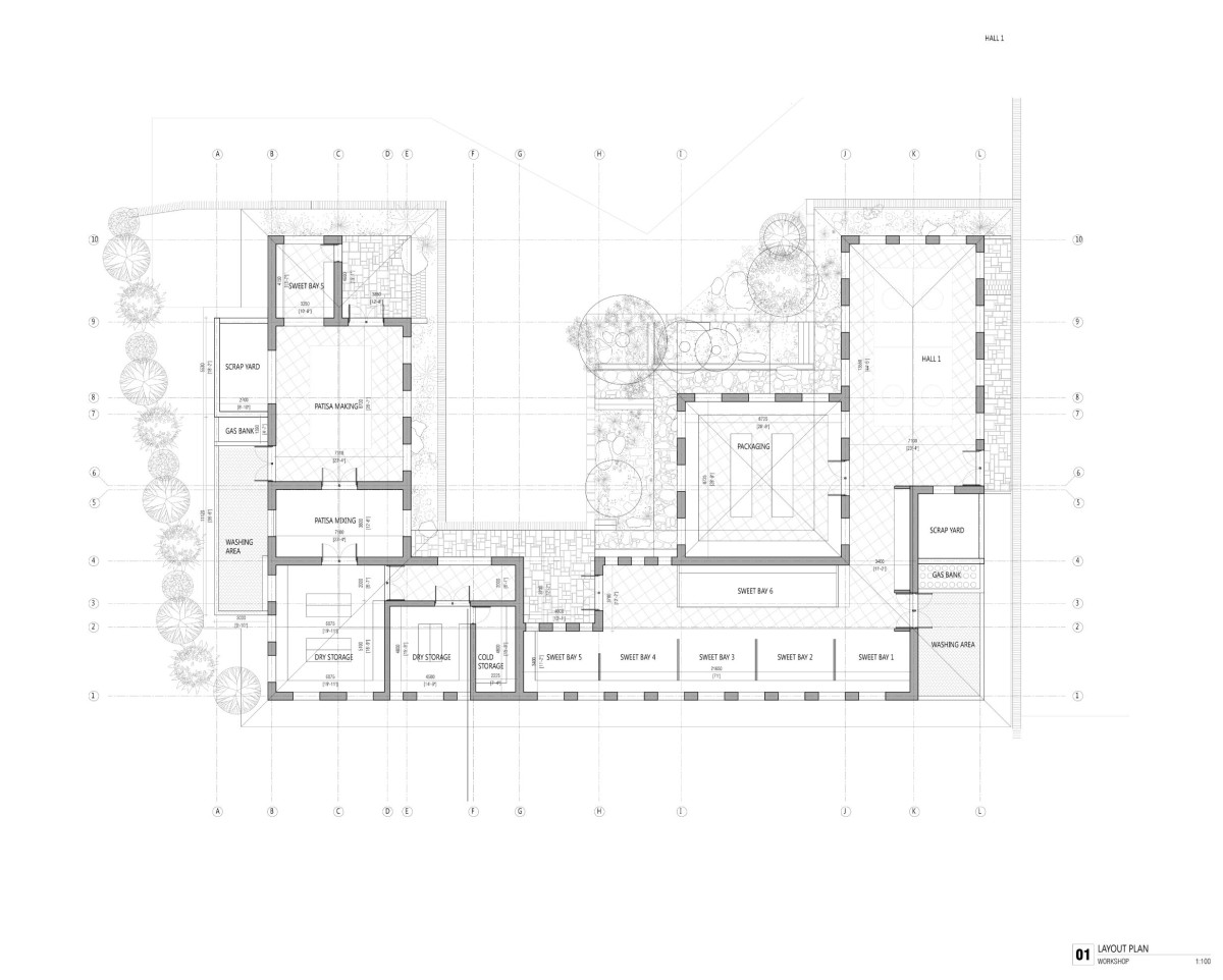
The workshop is designed to produce and distribute traditional Indian sweets, especially the brand's renowned ‘patisa’ made from a century-old recipe. The design process evolved from a detailed study of current methods, incorporating more efficient workflows, modern machinery, and ergonomic spaces for artisans (karigars), all centred around a central open courtyard. The structure stands at 21 feet tall, with 18-inch thick stone walls, a steel roof, and mud tiles. 

Ventilation is carefully positioned on three levels: at the window level to allow in the breeze, at the ventilator level, and through the clerestory to enable hot air to escape, promoting natural airflow throughout the space. Adjacent to the workshop, the administrative block includes residential quarters, showers, a kitchen, an R&D lab, storage, and office areas, combining practicality with comfort. A visitor centre functions as a retail shop and an interactive space for guided tours demonstrating the sweet-making process.

Jammu,Jammu and Kashmir,India

Architects : Studio Windows to Vernacular
Area : 15,500 sq. ft.
Year of Completion : 2023
Website : https://www.instagram.com/windows_to_vernacular?igsh=MTRqcHVjem15cmllbg==

Courtyard of Legacy in Layers by Studio Windows to Vernacular


Workers restroom space of Legacy in Layers by Studio Windows to Vernacular


Entrance of the meditation space of Legacy in Layers by Studio Windows to Vernacular

The meditation space was constructed on a hillock using sacred geometry principles to respect the client's spiritual needs. A 45-degree sloping roof appears to emerge naturally from the ground, topped with a copper cap. To enter, one must descend seven steps, each symbolising one of the seven chakras of the human body. A partly subterranean stone structure provides a calm environment with excellent thermal performance for deep meditation. Despite challenges with clayey soil and wall cracks caused by water retention, the issue was addressed through land profiling to direct water into natural runoff paths.

The structural design integrates load-bearing stone walls with RCC beams and steel roof frameworks to ensure durability and earthquake resistance. Locally sourced stone from highway blasting reduces environmental impact. The 18-inch-thick walls passively regulate temperature, while clerestory windows enhance ventilation. Observations during peak summers revealed indoor temperatures 6-8°C cooler than outside. Food production areas are finished with essential plastering and tiling, complying with food safety regulations.


Pathway to the meditation space of Legacy in Layers by Studio Windows to Vernacular


Visitor centre exterior view of Legacy in Layers by Studio Windows to Vernacular

The visitor centre, a steel-framed structure on a steep slope, resembles a deck overlooking the workshop, blending practicality with the land's natural form. Its position on rocky terrain required careful design to suit the site’s geology.

‘Sustainability’ served as a guiding principle throughout the project. Solar panels, a multi-layer water treatment system, and organic waste recycling are implemented. The terraced vegetable garden rejuvenated land health and supported food production. Materials with multiple life cycles, such as steel, salvaged stone, and mud tiles, minimised the ecological footprint.


Visitor centre interior of Legacy in Layers by Studio Windows to Vernacular


Space dedicated for patisa of Legacy in Layers by Studio Windows to Vernacular


Workshop interior space of Legacy in Layers by Studio Windows to Vernacular


Workshop interior space of Legacy in Layers by Studio Windows to Vernacular


Packaging area of Legacy in Layers by Studio Windows to Vernacular


Raw material storage of Legacy in Layers by Studio Windows to Vernacular


Admin area of Legacy in Layers by Studio Windows to Vernacular

The project also involved community engagement. The nomadic Bhakarwal community, which seasonally camps near the site, contributed to landscaping and maintaining the vegetable garden. Women from the community were employed for non-construction tasks, promoting social inclusivity. Although their relocation was gradual due to regional development, the Bhakarwals continue to be intermittently connected to the site.

Construction began in early 2019 but was paused for a year due to COVID-19 restrictions, completing in late 2023. The project aims to create a thoughtful and ‘sustainable’ built environment by incorporating ecological sensitivity, community participation, and functional design.


Administrative block of Legacy in Layers by Studio Windows to Vernacular


Admin front yard of Legacy in Layers by Studio Windows to Vernacular


Admin corridors of Legacy in Layers by Studio Windows to Vernacular


Workshop courtyard of Legacy in Layers by Studio Windows to Vernacular


Workshop building of Legacy in Layers by Studio Windows to Vernacular


Site Layout of Legacy in Layers by Studio Windows to Vernacular


Site Plan of Legacy in Layers by Studio Windows to Vernacular


Conceptual Layout of Legacy in Layers by Studio Windows to Vernacular


Workshop Layout of Legacy in Layers by Studio Windows to Vernacular


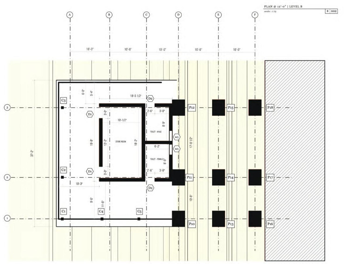
Admin Block Layout of Legacy in Layers by Studio Windows to Vernacular


Visitor Centre of Legacy in Layers by Studio Windows to Vernacular


Visitor Centre of Legacy in Layers by Studio Windows to Vernacular


Meditation space of Legacy in Layers by Studio Windows to Vernacular


Meditation space of Legacy in Layers by Studio Windows to Vernacular




Most Visited Articles




Subscribe

Get our latest article and updates delivered straight to your inbox.