Malhar Medley, located within the larger Malhar Eco-Village in Bengaluru, is a four-acre residential project that redefines community living through diversity and integration. Rejecting the idea of a single housing model, it introduces four distinct home types within a unified, pedestrian-centred and green framework. The master plan takes its cue from the organic growth of towns, where built form and open space evolve side by side, giving each cluster and street a distinct identity while offering a contemporary response to the needs of modern families.

Home Types

The project's strength lies in recognising that communities thrive when they accommodate different ways of living. Medley therefore offers four typologies that respond to varying family structures, life stages, and lifestyle preferences.

Townhouses are two-storey homes of 1,600–1,900 sq. ft., with front and rear gardens inspired by the traditional ‘aangan’. Clustered around shared courtyards, they combine privacy, natural light and a strong sense of community.

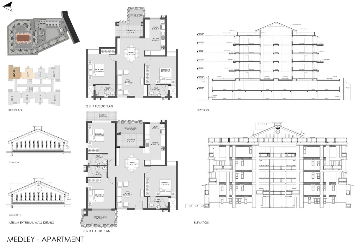
Apartments are organised around a central atrium that functions as a green social core. Each 2/3-bedroom unit comes with a private terrace garden, transforming corridors into lively, verdant spaces that enhance both privacy and neighbourly connection.

- Villaments are compact 1,000 sq. ft. homes with verandahs and generous backyard gardens. Designed for the elderly or for those who enjoy gardening, these homes flow seamlessly into open green spaces and connect directly to cluster parks.

- Walk-up Homes are duplex units conceived as a flexible typology that can adapt to multiple ways of living, including multi-generational households. Drawing inspiration from the architectural traditions of South Karnataka, they balance independence and connectedness, with separate entrances and direct access to pathways and gardens.

Bangalore,Karnataka,India

Architects : Good Earth Eco Futures Pvt Ltd
Area : 256,735 sq. ft.
Year of Completion : 2023
Website : https://goodearth.org.in/

Entrance of Malhar Medley by Good Earth Eco Futures Pvt Ltd & Jayakumar & Associates


Entrance of Malhar Medley by Good Earth Eco Futures Pvt Ltd & Jayakumar & Associates


Lawn view of Malhar Medley by Good Earth Eco Futures Pvt Ltd & Jayakumar & Associates

Layered Landscape

Central to Medley's design philosophy is the understanding that landscape functions as essential infrastructure rather than decorative space. Seventy percent of the total area remains as open space, strategically distributed across multiple levels to maximise both function and accessibility.

- Ground-level cluster parks provide immediate outdoor access for all residents while serving as natural stormwater management systems.

- Rooftop gardens create elevated communal spaces with tall shrubs and trees, offering shared gathering areas with canopy cover for community activities and social events.

- Individual terrace gardens extend living spaces outward, creating personal outdoor rooms for each household.

A basement community garden provides year-round growing space protected from Bengaluru's intense seasonal weather.

This vertical distribution serves practical functions beyond recreation. The layered green system manages rainwater through natural infiltration, provides cooling through evapotranspiration, and creates habitats that support local biodiversity. Native plant species reduce maintenance requirements while the landscape guides movement patterns, with pathways connecting different housing clusters and encouraging casual encounters between neighbours.


Townhouse of Malhar Medley by Good Earth Eco Futures Pvt Ltd & Jayakumar & Associates


Apartments of Malhar Medley by Good Earth Eco Futures Pvt Ltd & Jayakumar & Associates

Sustainable Construction

- Compressed stabilised earth blocks, moulded from on-site soil stabilised with a small amount of cement, reduce the need for transported materials while providing thermal mass for passive cooling and supporting local labour.

Homes are thoughtfully designed for natural light and cross ventilation, featuring large windows, wide verandahs, and air channels that minimise reliance on artificial lighting and ventilation.

- Provisions for solar water heaters and photovoltaic panels on roofs aim to reduce power consumption and promote energy independence.

- Usage of non-toxic, lead-free, and low-VOC paints prioritises environmental and occupant health over conventional alternatives.

- Local stone supplies both structural and decorative elements, connecting the architecture to its geological context while reducing transportation costs.

- Rainwater harvesting systems include percolation channels that recharge groundwater, whilst roof water is filtered and stored in tanks to supplement bore well supply.

- An on-campus sewage treatment plant recycles all wastewater for gardening and toilet flushing, ensuring a sustainable water management system.


Walk-up Homes of Malhar Medley by Good Earth Eco Futures Pvt Ltd & Jayakumar & Associates


Living room of Malhar Medley by Good Earth Eco Futures Pvt Ltd & Jayakumar & Associates


Balcony of Malhar Medley by Good Earth Eco Futures Pvt Ltd & Jayakumar & Associates


Backyard Garden of Malhar Medley by Good Earth Eco Futures Pvt Ltd & Jayakumar & Associates


Dusk light exterior view of Malhar Medley by Good Earth Eco Futures Pvt Ltd & Jayakumar & Associates

Art & Craft Integration

The project prioritises traditional craftsmanship as an essential component of contemporary construction. These carpentry, stonework, and masonry skills add irreplaceable spatial quality to the development whilst supporting local artisan communities.
 
Entryway: Strategically placed boulders guide the eye, creating a captivating tapestry that leads to the community's pavilion.

Pavilion: Housing a tranquil pond and crafted stone pillars from construction waste, the pavilion embodies sustainable construction practices and artistic traditions.

Wooden Elements: Meticulously crafted wooden pillars, staircases, and railings pay homage to regional carpentry traditions, adding warmth to the community.

Glass Bottles: Innovative use of stained glass bottles introduces a playful pop of colour, promoting sustainability through creative repurposing.
 


Medley Master Plan of Malhar Medley by Good Earth Eco Futures Pvt Ltd & Jayakumar & Associates


Townhouse plan of Malhar Medley by Good Earth Eco Futures Pvt Ltd & Jayakumar & Associates


Apartments Plan of Malhar Medley by Good Earth Eco Futures Pvt Ltd & Jayakumar & Associates


Villament-walkup homes plan of Malhar Medley by Good Earth Eco Futures Pvt Ltd & Jayakumar & Associates


Axonometric view of Malhar Medley by Good Earth Eco Futures Pvt Ltd & Jayakumar & Associates




Most Visited Articles




Subscribe

Get our latest article and updates delivered straight to your inbox.