Text provided by Architect

The residence in the industrial town of Vapi is conceptualized to prioritize open spaces, privacy, and a seamless integration with nature while addressing crucial environmental concerns such as air quality, heat control, and protection from pollution. The design focuses on creating two distinct masses connected through courtyards to optimize natural light, ventilation, and aesthetic appeal.

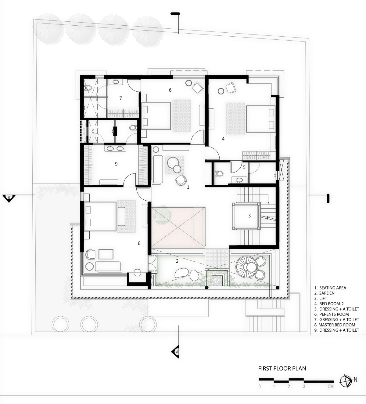
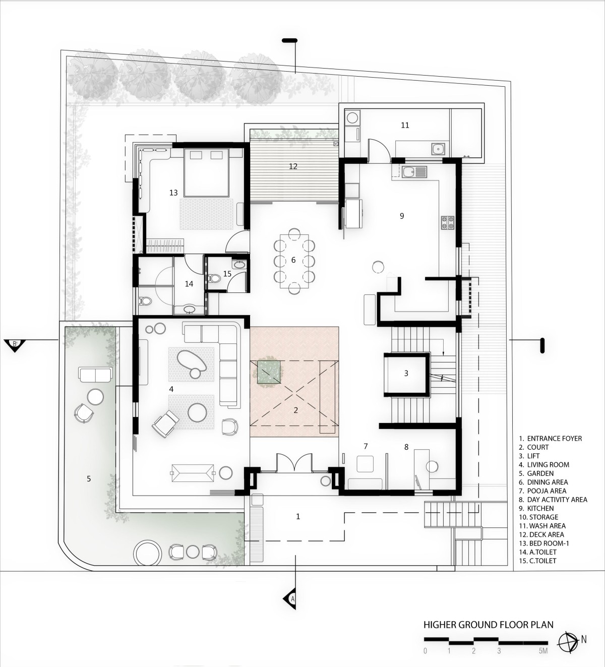
The house is divided into two masses, North and South, linked by courtyards to manage southern light exposure and facilitate openings towards the east and west. The courtyard serve as connectors, providing private outdoor spaces with seating areas for occupants to immerse themselves in nature within the confines of their home. Interactive volumes cascade into each other to allow socialising. 

Environmental Considerations:
1. Good Air Quality: Incorporation of ventilation systems and strategic placement of greenery to enhance indoor air quality. Implementation of proper sealing techniques, screens on windows, and landscaping strategies to minimize dust ingress and prevent insect intrusion. Design features such as air filtration systems and vegetation barriers to mitigate the impact of outdoor pollution.

2. Heat Control: Implementation of design strategies like screening to block heat penetration, minimize heat generation, and facilitate airflow to reduce indoor temperatures. Use of rat-trap bond masonry with heat insulation infill is employed for thermal comfort. 

3. Healthy Living Environment: Emphasis on natural ventilation, use of non-toxic materials, and integration of indoor greens to promote occupant health and well-being.

4. Energy Efficiency: Integration of solar panels to reduce reliance on conventional energy sources and minimize electricity consumption. 

The architecture of the residence in Vapi is a holistic approach that seamlessly integrates design aesthetics with environmental sustainability and occupant comfort. By prioritizing open spaces, natural light, and ventilation while addressing key environmental concerns, the design aims to create a harmonious living environment that promotes well-being and resilience in the face of climatic challenges.

Vapi,Gujarat,India

Architects : Aangan Collaborative LLP
Area : 5827 sq. ft.
Year of Completion : 2023
Website : https://instagram.com/aangan_architects?utm_medium=copy_link

Exterior view of Man-moh Residence by Aangan Collaborative LLP


Exterior view of Man-moh Residence by Aangan Collaborative LLP


External Facade of Man-moh Residence by Aangan Collaborative LLP


Central Court of Man-moh Residence by Aangan Collaborative LLP


Central Court of Man-moh Residence by Aangan Collaborative LLP


Living room of Man-moh Residence by Aangan Collaborative LLP


Dining of Man-moh Residence by Aangan Collaborative LLP


Pooja Area of Man-moh Residence by Aangan Collaborative LLP


First floor view of Man-moh Residence by Aangan Collaborative LLP


First floor view of Man-moh Residence by Aangan Collaborative LLP


Garden of Man-moh Residence by Aangan Collaborative LLP


Garden of Man-moh Residence by Aangan Collaborative LLP


Garden of Man-moh Residence by Aangan Collaborative LLP


Garden of Man-moh Residence by Aangan Collaborative LLP


Night exterior view of Man-moh Residence by Aangan Collaborative LLP


South Side Elevation of Man-moh Residence by Aangan Collaborative LLP


North Side Elevation of Man-moh Residence by Aangan Collaborative LLP


Front Elevation of Man-moh Residence by Aangan Collaborative LLP


Ground Floor Plan of Man-moh Residence by Aangan Collaborative LLP


Higher Ground Floor Plan of Man-moh Residence by Aangan Collaborative LLP


First Floor Plan of Man-moh Residence by Aangan Collaborative LLP


Terrace Floor Plan of Man-moh Residence by Aangan Collaborative LLP


Section 1 of Man-moh Residence by Aangan Collaborative LLP


Section 2 of Man-moh Residence by Aangan Collaborative LLP




Most Visited Articles




Subscribe

Get our latest article and updates delivered straight to your inbox.