Architecture

28-04-2026

Text provided by Architect

Located within the dense residential fabric of Nanded City, Pune, Mantra is a compact single-family residence developed on a 2,500 sq.ft plot. Flanked closely by neighbouring structures on two sides, the site presented immediate challenges: restricted daylight access, limited outward views, and privacy concerns. The design transforms them into the primary generators of spatial organization.

The house draws inspiration from the spatial layout of a typical central India village dwelling, where built forms are organized around an internal courtyard and only private spaces are enclosed. Social life unfolds in shared, semi-open zones, while privacy is layered inward. This memory of openness carried by the client from their rural roots became central to the conceptual framework of the project.

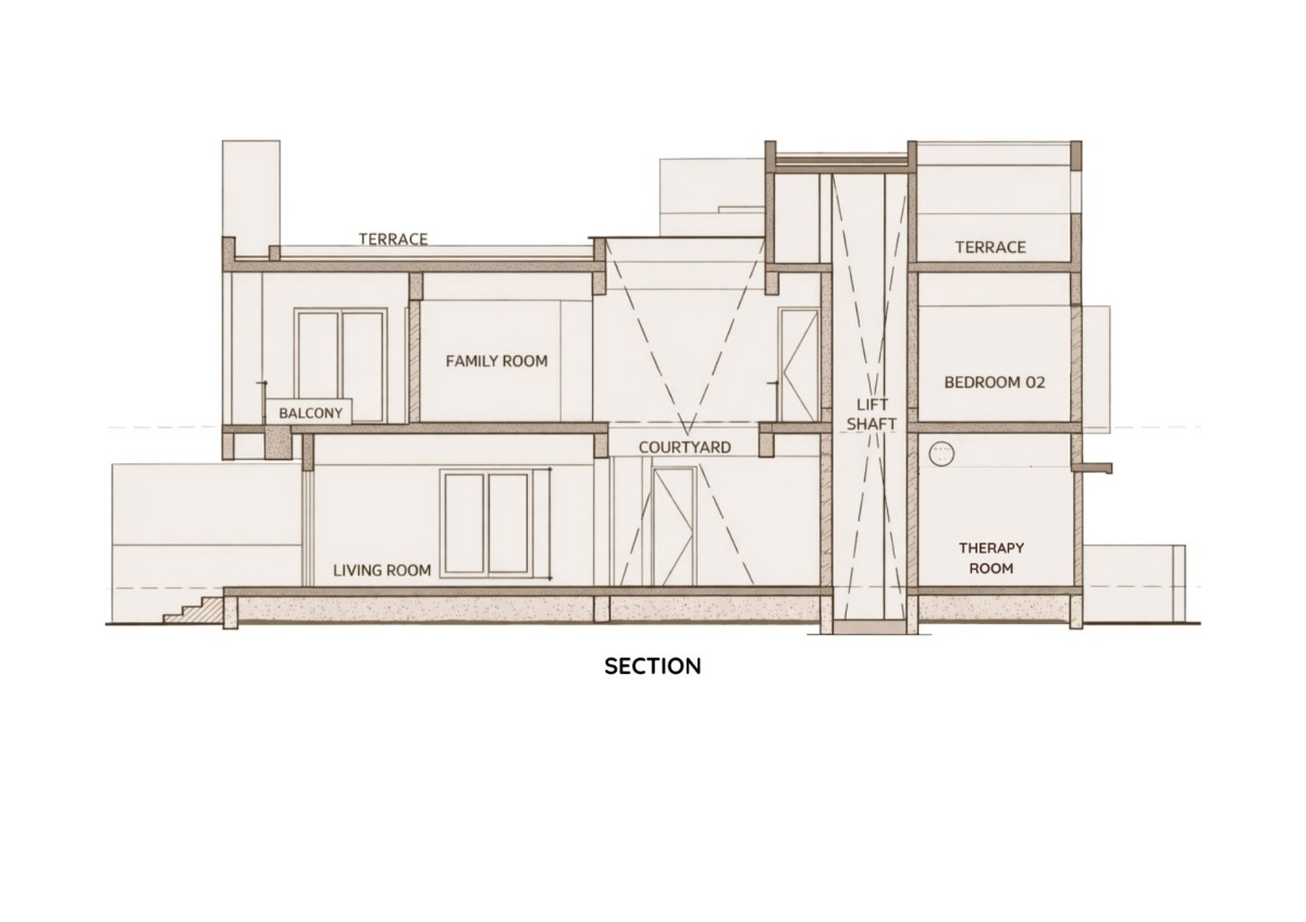
At the heart of the residence lies an 8’ × 8’ courtyard with a Mandir. Modest in scale yet powerful in effect, it functions as the environmental and spatial anchor of the house. The courtyard introduces daylight deep into the plan, facilitates stack ventilation, and establishes visual continuity across levels. Throughout the day, shifting light conditions animate the surrounding walls and floors, transforming the interior atmosphere without reliance on artificial intervention.

Nanded,Maharashtra,India

Architects : Green Hat Studio
Area : 2700 sq. ft.
Year of Completion : 2026
Website : https://www.instagram.com/greenhatstudio/

Entryway of Mantra by Green Hat Studio


Living room of Mantra by Green Hat Studio

The spatial configuration follows a disciplined inward-looking strategy. The ground floor is largely open, allowing the living, dining, and circulation spaces to flow seamlessly into one another. Only bedrooms and essential private spaces are enclosed. This arrangement reflects both vernacular influence and contemporary flexibility, enabling the house to expand during gatherings or contract for intimate daily living.

The entrance is marked by a Veranda that mediates between the public street and the private interior. More than a transitional element, it acts as a shaded pause an architectural threshold that filters climate and movement. In urban settings where abrupt transitions often dominate, the Veranda restores a sense of gradual entry and social interface.


Living room of Mantra by Green Hat Studio


Living room of Mantra by Green Hat Studio


Dining & Living of Mantra by Green Hat Studio

Given the proximity of neighbouring buildings, the design of openings required careful calibration. Windows were treated not as superficial insertions but as spatial instruments. System aluminium frames were selected for their slim profiles and durability, while proportions and sill levels were adjusted to control views and privacy. Bay projections were introduced along constrained edges, redirecting sightlines and deepening the wall section.

These bay windows evolved beyond environmental devices. By extending their depth and integrating built-in seating, they became inhabitable niches functional components of the rooms themselves. In doing so, the design transforms limitation into opportunity, allowing openings to serve climatic, visual, and social roles simultaneously.


Dining of Mantra by Green Hat Studio


Dining of Mantra by Green Hat Studio

Structurally, the house employs a conventional RCC framed system. Integrating the courtyard within a compact structural grid demanded precise coordination of beam alignments and load distribution to maintain openness without visual heaviness. Lightweight blocks were used for wall construction, reducing dead load while enhancing thermal performance.

Material selection remains restrained and purposeful. Kota stone flooring was chosen for its durability, thermal comfort, and understated character, lending continuity across spaces. Granite is used for copings and framing elements, providing robustness at points of contact and exposure. Glass railings maintain visual lightness, reinforcing vertical connectivity around the courtyard. The façade incorporates brick cladding, grounding the exterior expression and introducing material depth without excess ornamentation.

The colour palette is neutral and earthy, allowing light to define the spatial experience. Rather than competing for attention, surfaces act as canvases for shadow and reflection. This deliberate restraint reinforces the studio’s belief that architectural presence emerges from proportion and coherence rather than applied embellishment.


Dining & Kitchen of Mantra by Green Hat Studio


Staircase of Mantra by Green Hat Studio


Family living of Mantra by Green Hat Studio

At its core, Mantra is an exploration of functional precision. Every component structural, spatial, and material has been positioned deliberately. Circulation paths align with light movement, openings respond to climatic realities, and transitions are layered to create gradation rather than abrupt change. The house operates as an integrated system where clarity of function gives rise to clarity of form.

Yet beyond performance and planning efficiency, the project aspires to cultivate an intangible quality. Like humans, spaces can hold memory and emotional resonance. Through disciplined planning, careful proportioning, and sensitivity to light, the house develops a quiet presence an atmosphere that evolves through daily life. This sense of “soul” does not arise from decoration but from coherence and integrity in design.


Family living of Mantra by Green Hat Studio


Bedroom 1 of Mantra by Green Hat Studio


Bedroom 2 of Mantra by Green Hat Studio


Bedroom 2 of Mantra by Green Hat Studio


Bedroom 3 of Mantra by Green Hat Studio

In addressing the challenges of a dense urban plot, the project demonstrates that openness need not depend on outward exposure. By turning inward and anchoring the plan around a central void, the house achieves environmental comfort, privacy, and social adaptability simultaneously.

Mantra is not conceived as an object-building but as a spatial framework one that balances cultural memory with contemporary construction, precision with warmth, and restraint with depth. It stands as a composed response to complexity, where simplicity is not minimalism for its own sake, but the outcome of rigorous resolution.


Bedroom 3 of Mantra by Green Hat Studio


Bedroom 4 of Mantra by Green Hat Studio


Bedroom 4 of Mantra by Green Hat Studio


Balcony of Mantra by Green Hat Studio


Plans of Mantra by Green Hat Studio


Section of Mantra by Green Hat Studio




Most Visited Articles




Subscribe

Get our latest article and updates delivered straight to your inbox.