A Masjid, usually a quintessential Islamic building, is a “place of prostration”, which means ‘kneeling’. Islamic architecture is not regional. Over the years, most of the pre-Islamic vernacular forms and characteristics have gradually become an eclectic mix of the elements and characteristics of areas where Islam had spread.

Unlike historical monumental mosques, contemporary mosques are designed to exhibit these transformed forms establishing a unique identity of their own; ‘Masjid-e-Zubaida’ being one such example.

The design was conceived with a primary notion that a religious space should be such that it helps meditate; cleanses emotionally and spiritually to be in a direct connection with God. The built was articulated by identifying essential elements of a mosque after analyzing the function and symbolic values of each and focusing precisely on the essentials rather than mere aesthetics and grandeur.

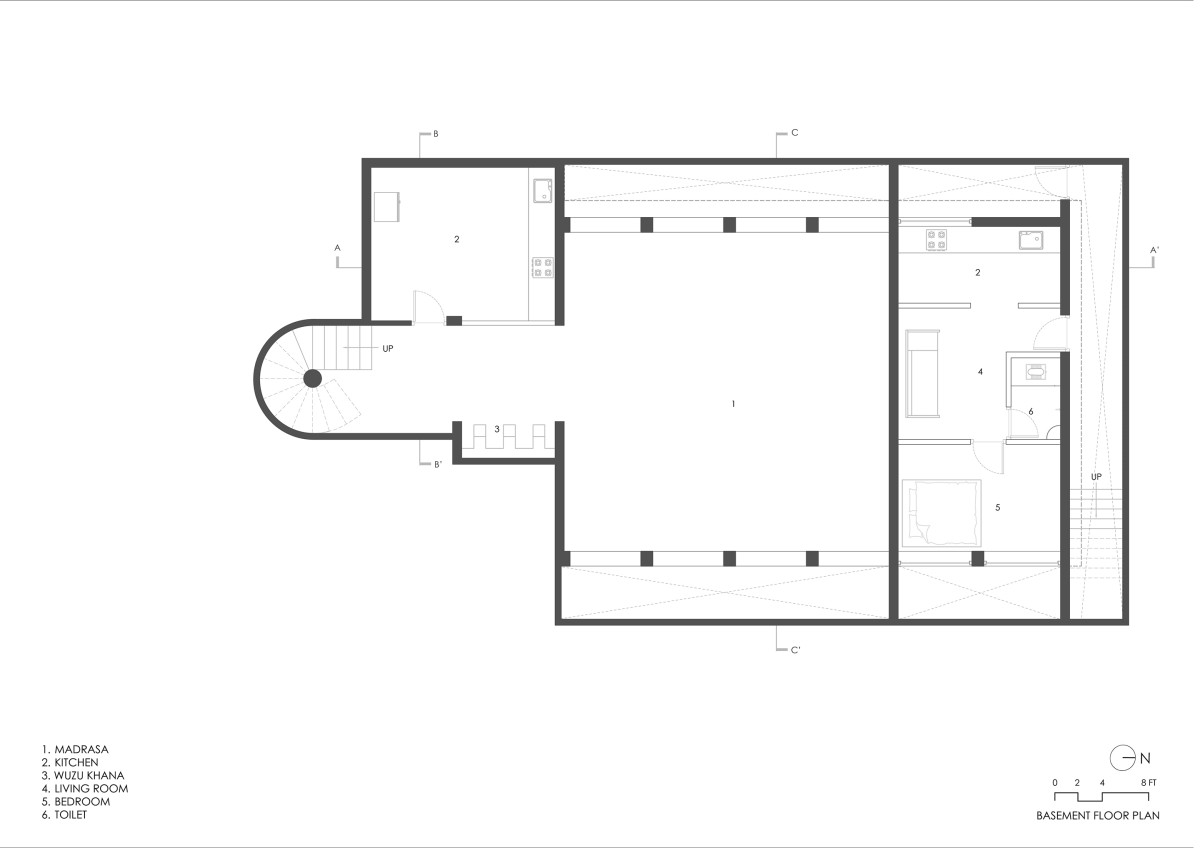
With this in view, the mosque has been designed to combine the fundamental basics in terms of spaces and elements with a high functional value such as Ibadat khana, Minbar, Mihrab and the Minaret with a sober and contemporary architecture. The minaret acts as a visual mark for the mosque. Not merely functional in nature, it also serves as a powerful visual reminder of the presence of Allah. The aesthetic of the mosque is based on the notion that materiality has to be sustainable and locally sourced; CSEB blocks made out of the excavated soil were planned to be used for that purpose. Regrettably, the blocks failed in compression and we, later, had to switch to boiler bricks that were made in our client’s factory. Presence of Madresa on the basement of the mosque aids multiplicity.

Raichur,Karnataka,India

Architects : Neogenesis+Studi0261
Area : 8073 sq.ft.
Year of Completion : 2022
Website : https://www.instagram.com/studioneogenesis/

Exterior view of Masjid E Zubaida by Neogenesis+Studi0261


Exterior view of Masjid E Zubaida by Neogenesis+Studi0261


Exterior view of Masjid E Zubaida by Neogenesis+Studi0261

While not a ritual requirement like the Mihrab, a dome more often used to be a structural requirement to carry larger spans, which also turned into a symbolic representation as the vault of heaven. But, with advancing technologies and construction techniques, the need of domes for achieving larger spans have faded with time. Hence, a clean form was chosen as the main mass with a flat roof under which the Ibadat khana would rest; to adhere to simplicity and individualism.

Exposed brick jali makes up most of the facade allowing sunlight to penetrate inside that makes the whole space divine and create a ‘sense of awe’. The louvered glass, incorporated into the doors and facades, aid light and ventilation. The openings on the upper side of the Ibadat Khana further enhance the environment and additionally light up the space.


Exterior view of Masjid E Zubaida by Neogenesis+Studi0261


Entrance of Masjid E Zubaida by Neogenesis+Studi0261


Staircase of Masjid E Zubaida by Neogenesis+Studi0261


Lobby of Masjid E Zubaida by Neogenesis+Studi0261


Ibadat Khana of Masjid E Zubaida by Neogenesis+Studi0261

The Qibla wall (the holiest section of the mosque)  has been kept plain and serene to turn off one’s attention from the outside environment. Sunlight from the skylight above gradually washes the wall as reminder that ‘Allah’ is the light of the heaven above. The flooring, too, has been kept seamless to reduce worshipper’s distraction and facilitate the required ‘khusyuk’ (concentration) for worship.

The design develops a new language of mosque, that is much more transformed, simple but unique and merges with the modern day needs.


Ibadat Khana of Masjid E Zubaida by Neogenesis+Studi0261


Ibadat Khana of Masjid E Zubaida by Neogenesis+Studi0261


Ibadat Khana of Masjid E Zubaida by Neogenesis+Studi0261


Wuzu Khana of Masjid E Zubaida by Neogenesis+Studi0261


Detailed shot of door of Masjid E Zubaida by Neogenesis+Studi0261


Detailed shot of wall of Masjid E Zubaida by Neogenesis+Studi0261


Detailed shot of exterior wall of Masjid E Zubaida by Neogenesis+Studi0261


Detailed shot of exterior wall of Masjid E Zubaida by Neogenesis+Studi0261


West elevation of Masjid E Zubaida by Neogenesis+Studi0261


North elevation of Masjid E Zubaida by Neogenesis+Studi0261


East elevation of Masjid E Zubaida by Neogenesis+Studi0261


Basement floor plan of Masjid E Zubaida by Neogenesis+Studi0261


Ground Floor Plan of Masjid E Zubaida by Neogenesis+Studi0261


Terrace floor plan of Masjid E Zubaida by Neogenesis+Studi0261


Section AA of Masjid E Zubaida by Neogenesis+Studi0261


Section BB of Masjid E Zubaida by Neogenesis+Studi0261


Section CC of Masjid E Zubaida by Neogenesis+Studi0261




Most Visited Articles




Subscribe

Get our latest article and updates delivered straight to your inbox.