Text provided by Architect

Every home has a story, but Mriya is a story that begins with a dream. A dream cherished, nurtured, and finally realized. The name itself, Mriya, meaning “Dream,” captures the essence of this residence: the fulfilment of a long-held aspiration to create a sanctuary that feels deeply connected to its land and life.

Set within a site wrapped in the fragrance of nutmeg trees in Varandarapilly, Thrissur, Mriya was conceived as a poetic contrast. A bold, contemporary structure rising amidst the softness of nature. Yet, it was never meant to dominate. The guiding principle was to belong, “to let the home breathe with the trees and light, allowing architecture and nature to exist in mutual respect.”

The design emerged from the desire to retain as many of the existing nutmeg trees as possible. Every decision, from the placement of walls to the positioning of openings, was shaped by this fundamental intent. The architecture thus became a process of coexistence, where nature was never erased but rather framed, embraced, and celebrated.

Mriya was envisioned not as a static structure but as a living entity within its ecosystem. The built form interacts constantly with the site like light filtering through leaves, shadows dancing across walls, and the presence of trees integrated within the architecture itself. The retention of vegetation was not a constraint but a creative opportunity. Courtyards, pockets, and openings were thoughtfully designed to accommodate trees, maintaining the existing ecology while enhancing spatial quality. The built mass and the landscape were interwoven so that Mriya feels less like an object placed on land and more like an extension of it.

Thrissur,Kerala,India

Architects : i2a Architects Studio
Area : 3525 sq. ft.
Year of Completion : 2025
Website : https://instagram.com/i2aarchitects?utm_medium=copy_link

Exterior view of Mriya - The Red House by i2a Architects Studio


Car Porch of Mriya - The Red House by i2a Architects Studio


Entrance Porch of Mriya - The Red House by i2a Architects Studio


Entrance Porch of Mriya - The Red House by i2a Architects Studio

The visual identity of Mriya comes alive through projecting cuboidal masses that define the facade. These dynamic boxes, composed of solids and voids, create depth, shadow, and rhythm giving the home a sculptural character. This composition establishes a plus and minus effect, where penetrations in the built form allow light and air to slice through volumes, softening their geometry.

The porch merges seamlessly into the architectural language of the house rather than standing apart. A fin wall extends along the front edge, serving both as a visual anchor and a green screen. It becomes the mediator between the architecture and its natural backdrop, maintaining continuity and scale. One of the most endearing gestures in Mriya is the preservation of several nutmeg trees and a mango tree. Within the porch, the roof slab itself was punctured to allow these trees to grow freely through it, symbolizing the idea that nature leads and architecture follows.


Central Court of Mriya - The Red House by i2a Architects Studio

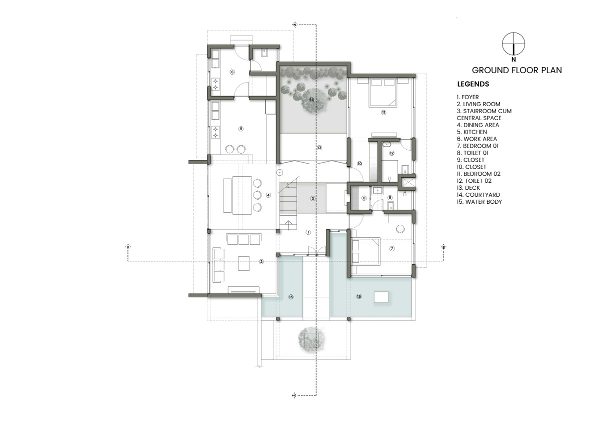
Spatially, Mriya unfolds along a central axis that organizes the home from entry to courtyard. The planning is simple yet deliberate, ensuring fluidity, light, and cross ventilation. The journey begins at the sit-out, which acts as the first threshold, a place of pause before stepping inside. The main door opens to a double height central volume that serves as the heart of the house, visually connecting floors and drawing daylight from roof through strategically placed skylights.

To the eastern side of this axis lie the living, dining, kitchen, and work area. These are all oriented to capture the positivity and warmth of the morning sun. Large east facing windows flood the interiors with natural light during the early hours, a conscious decision to infuse the home with the optimism of dawn. The western side accommodates the bedrooms, ensuring privacy and shading during the warmer part of the day. This dual orientation creates a rhythmic balance, openness and activity on one side, retreat and rest on the other.


Dining to Living room view of Mriya - The Red House by i2a Architects Studio


Dining of Mriya - The Red House by i2a Architects Studio


Courtyard of Mriya - The Red House by i2a Architects Studio



Staircase of Mriya - The Red House by i2a Architects Studio

The double height void acts as the spatial pivot, breaking monotony and infusing grandeur without unnecessary expansion. Rather than stretching horizontally, Mriya achieves spatial richness through vertical play and volumetric layering. This sense of volume is further enhanced by linear skylights, which bring the sky indoors and illuminate the central core with a gentle wash of light.

The material selection for Mriya was guided by the intent to reflect warmth and tactility. Microtopping red on the floors and doors brings a bold yet earthy undertone, grounding the space in warmth and passion. Lime washed walls soften the vibrancy, lending a calm, breathable texture that evokes traditional sensibilities within a modern form. The landscape is composed of Bangalore stone, Mexican grass, and handmade sculptures which complements the natural ruggedness of the site while introducing artisanal finesse.


Skylight of Mriya - The Red House by i2a Architects Studio

The interplay of solids and voids, along with vertical grill patterns and fin elements, helps achieve visual balance between linearity in plan and verticality in elevation. This fusion of proportions lends the structure a timeless elegance. Every element, from the shadows cast by fins to the slender handrails, contributes to the overall calmness of the composition. Nothing feels forced, everything grows naturally out of the larger idea of simplicity and belonging.

Landscape design in Mriya follows the principle of necessity and sensitivity. Every intervention was measured. The nutmeg trees were retained almost entirely and open spaces were carved out based on what the land demanded rather than what was convenient. Two reflective waterbodies flank the sit-out. One beside the living room and the other adjacent to the parent’s bedroom. These bodies of water act as natural coolers, reflectors, and tranquil elements that visually lighten the mass of the building.


Upper living room of Mriya - The Red House by i2a Architects Studio


Upper living room of Mriya - The Red House by i2a Architects Studio


Bedroom 1 of Mriya - The Red House by i2a Architects Studio


Bedroom 1 of Mriya - The Red House by i2a Architects Studio


Bedroom 2 of Mriya - The Red House by i2a Architects Studio


Bedroom 3 of Mriya - The Red House by i2a Architects Studio


Bedroom 3 of Mriya - The Red House by i2a Architects Studio


Dusk light exterior view of Mriya - The Red House by i2a Architects Studio

At the heart of one waterbody stands a red human sculpture. A striking artistic statement symbolizing the fulfilment of a dream. The sculpture painted in deep red, appears to radiate energy outward, as if the dream once imagined has finally come alive. The warmth of the colour diffuses into the space, embodying the emotional essence of Mriya.

Light is the invisible material that defines Mriya. From early morning sunlight seeping through the eastern windows to the soft evening glow filtering through the fin wall, every beam of light marks the passage of time within the home. The linearity that begins in planning extends through details, from the grills to the vertical fins that stretch upward. This continuity of lines gives Mriya a sense of cohesion and rhythm, turning simplicity into elegance.

Despite its minimal vocabulary, Mriya is emotionally rich. It is not defined by scale or ornamentation but by how it feels, ‘open yet intimate’. Mriya is a home where architecture doesn’t overpower nature but learns from it. It is a composition of humility, restraint, and poetic precision. In preserving trees through roofs, framing greenery through walls, and letting light choreograph the interiors, the residence becomes more than a structure, ‘it becomes an experience.’


Dusk light exterior view of Mriya - The Red House by i2a Architects Studio


Site Plan of Mriya - The Red House by i2a Architects Studio


Ground Floor Plan of Mriya - The Red House by i2a Architects Studio


First Floor Plan of Mriya - The Red House by i2a Architects Studio


Section A of Mriya - The Red House by i2a Architects Studio


Section B of Mriya - The Red House by i2a Architects Studio




Most Visited Articles




Subscribe

Get our latest article and updates delivered straight to your inbox.