Architecture

15-12-2022

Photographer : Spaceshift Studio

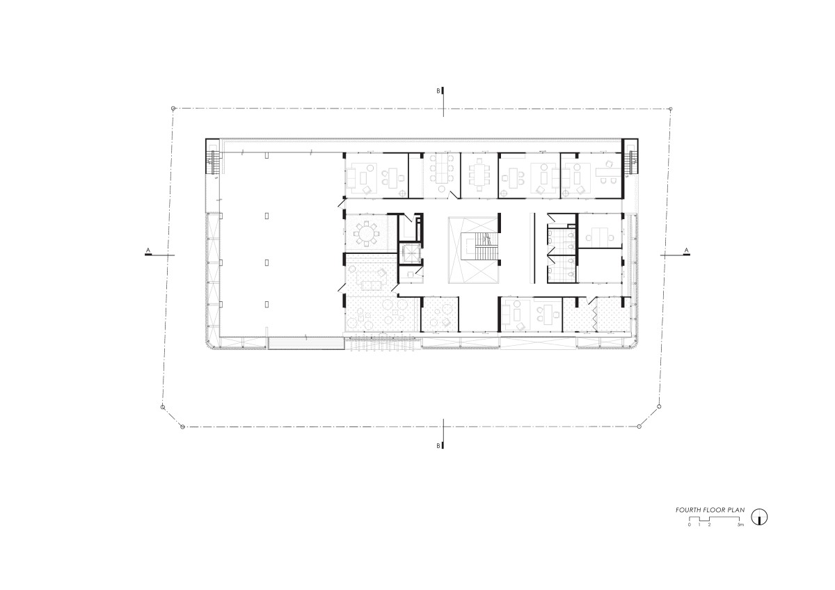
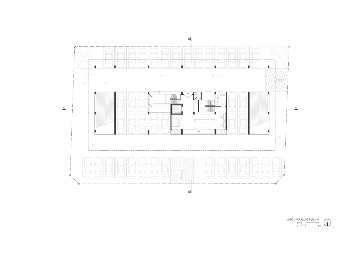
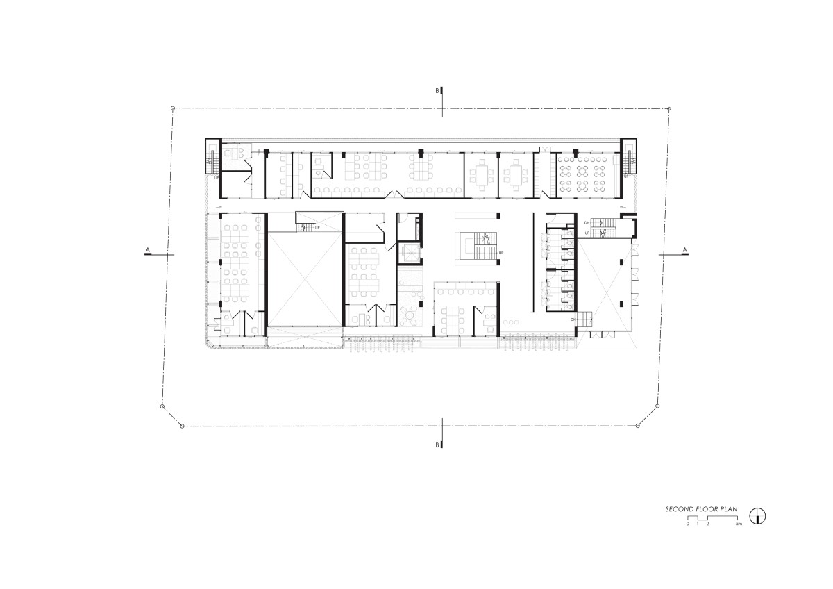
MTL is an office building working about the architectural systematic. The owner wanted his business to be reflected in the architecture with the 4 storey high building with 3000 square meter of function area. Another interesting aspect by the owner is that he wants this office building to give sense of hominess to all of his people.

At first, the site was vacant land with lots of trees. After observing the site, the design concept came up. The perception of people to the architecture should remain the same as before the construction.

Imperfect is an important key for this design. By letting nature become a part of the design, the building allows other creatures such as birds or weeds to grow and live inside. Moreover, the boundary between the circulation part and zoning is blurred. Instead of having a clear separation between each section, the boundary is exploded, and space can be adjusted freely depending on the function.

For the facade, we use 50,000 bricks to create a self-organization facade, allowing nature to control the appearance of the brick which later, will become a characteristic of the building.

Bangkok,Bangkok,Thailand

Architects : Junsekino Architect and Design
Area : 3,836 sq.m.
Year of Completion : 2021
Website : junsekino.com


Most Visited Articles




Subscribe

Get our latest article and updates delivered straight to your inbox.