Text provided by Architect

This home is a contemporary and minimalistic space that aims to strike the ideal balance between simplicity and boldness. The design philosophy revolves around clean lines, uncluttered open areas, and an abundance of natural light. These elements work together to create an atmosphere that is serene and soothing, yet simultaneously vibrant and energising. Every detail—from the materials chosen to the arrangement of the furniture—has been thoughtfully curated to ensure the space feels modern while remaining warm, inviting, and highly functional for everyday living. 

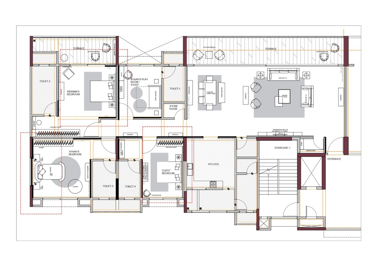
The project is set within a spacious 3,500-sq-ft apartment located in a modern, high-end residential building in baner, one of pune’s most prime and rapidly developing areas. The building’s architectural planning includes large openings and generously sized terraces that maximise ventilation and natural illumination. This inherent structural advantage provided a strong foundation for the interior design approach, allowing the home to feel airy and open throughout the day. The ample daylight also played a significant role in shaping the minimalistic colour palette and material selection, ensuring the interiors felt neither stark nor overwhelming. 

The client’s brief was clear: to design a modern, minimal home that looked elegant and contemporary but was also easy to maintain. Practicality was an essential requirement, especially considering the presence of a young child in the home. The design therefore had to be visually appealing while also being safe, comfortable, and free of unnecessary obstructions. The goal was to craft an environment where the child could move freely without the risk posed by sharp edges, cluttered surfaces, or delicate materials. This led to thoughtful planning, smooth circulation paths, and the use of sturdy yet aesthetically pleasing materials that can withstand everyday use. 

Materiality forms the backbone of the design. A restrained palette of wood, soft-toned fabrics, textural elements, and carefully selected accent pieces creates a sense of harmony throughout the home. Instead of filling the space with elaborate furnishings, the focus was placed on ensuring that each material and piece of décor contributed meaningfully to the overall aesthetic. 

Pune,Maharashtra,India

Architects : Aesthetic Stories by Nidhi
Area : 3500 sq. ft.
Year of Completion : 2025
Website : https://www.instagram.com/aestheticstoriesbynidhi/?Hl=en

Living room of Mungali Residence by Aesthetic Stories by Nidhi

In the living room, neutral fabrics were chosen for the upholstery and curtains to maintain a fresh and light appearance. This neutral foundation allows the space to feel open and timeless. To introduce character and break the monotony of neutrals, we incorporated bone inlay consoles and a centre table. These elements add visual richness through intricate patterns and subtle pops of colour, uplifting the entire room. They act as statement pieces that enhance the minimalistic backdrop without overwhelming it. 


Living room of Mungali Residence by Aesthetic Stories by Nidhi


Dining of Mungali Residence by Aesthetic Stories by Nidhi


Dining of Mungali Residence by Aesthetic Stories by Nidhi


Dining of Mungali Residence by Aesthetic Stories by Nidhi


Furniture console of Mungali Residence by Aesthetic Stories by Nidhi


Master Bedroom of Mungali Residence by Aesthetic Stories by Nidhi

The master bedroom adopts a more dramatic tone through the use of black polish on the wooden furniture. This deep, bold finish instantly elevates the room and adds a layer of sophistication. To balance out this intensity, the bedding fabrics remain soft and neutral. Floral curtains introduce a gentle textural quality and infuse the room with a hint of pastel colour. Together with the textured pastel bedding, these elements create a harmonious blend of boldness and softness, resulting in a space that feels intimate, serene, and refined. 


Master Bedroom of Mungali Residence by Aesthetic Stories by Nidhi


Master Bedroom of Mungali Residence by Aesthetic Stories by Nidhi


Guest Bedroom of Mungali Residence by Aesthetic Stories by Nidhi

The guest bedroom leans into warmth and coziness. The use of rattan furniture paired with wood gives the room an inviting, earthy charm. A textured, playful wallpaper adds a lively yet tasteful dimension to the walls, making the space feel vibrant without being overwhelming. The curtain fabrics were chosen to complement these warm, tactile elements, tying the entire room together into a cohesive and welcoming retreat for visitors. 

The overarching philosophy guiding this home is the belief that “less is more.” Rather than relying on heavy furniture or densely decorated areas, the design embraces thoughtful combinations of colour, texture, and pattern. The multiple bone inlay pieces in the living room share a unified design language yet display unique colours and motifs, making the space visually engaging while retaining its calming ambiance. 

With the client’s tight three-month move-in timeline, structural changes were intentionally avoided. Instead, the project benefited from efficient planning wherein all spaces were worked on simultaneously. Parallel execution and coordinated processes ensured that the home was completed on time without compromising on detail, quality, or craftsmanship


Guest Bedroom of Mungali Residence by Aesthetic Stories by Nidhi


Guest Bedroom of Mungali Residence by Aesthetic Stories by Nidhi


Entrance foyer of Mungali Residence by Aesthetic Stories by Nidhi


Plan of Mungali Residence by Aesthetic Stories by Nidhi




Most Visited Articles




Subscribe

Get our latest article and updates delivered straight to your inbox.