Architecture

12-01-2026

Text provided by Architect

Located in a low density residential gated community of outskirts of Bangalore city which has temperate climate with more than 100 cloudy days and rains through nine months of the year. The architectural approach maximizes the light into the house and ways to keep it warm in the winters and cool during the short summer. 

The house spans 225m² of built area on a 222² plot, consisting of a ground floor, an upper floor, and a roof level. The design emphasizes simplicity, a strong connection to nature, using raw and local materials to express the personality of the homeowners.

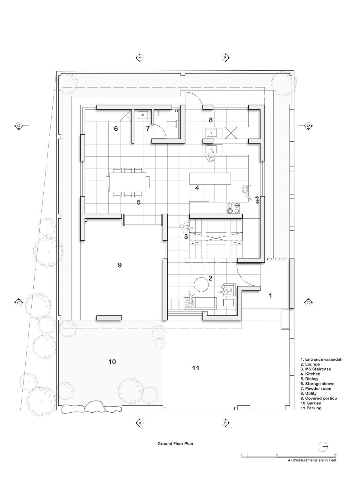
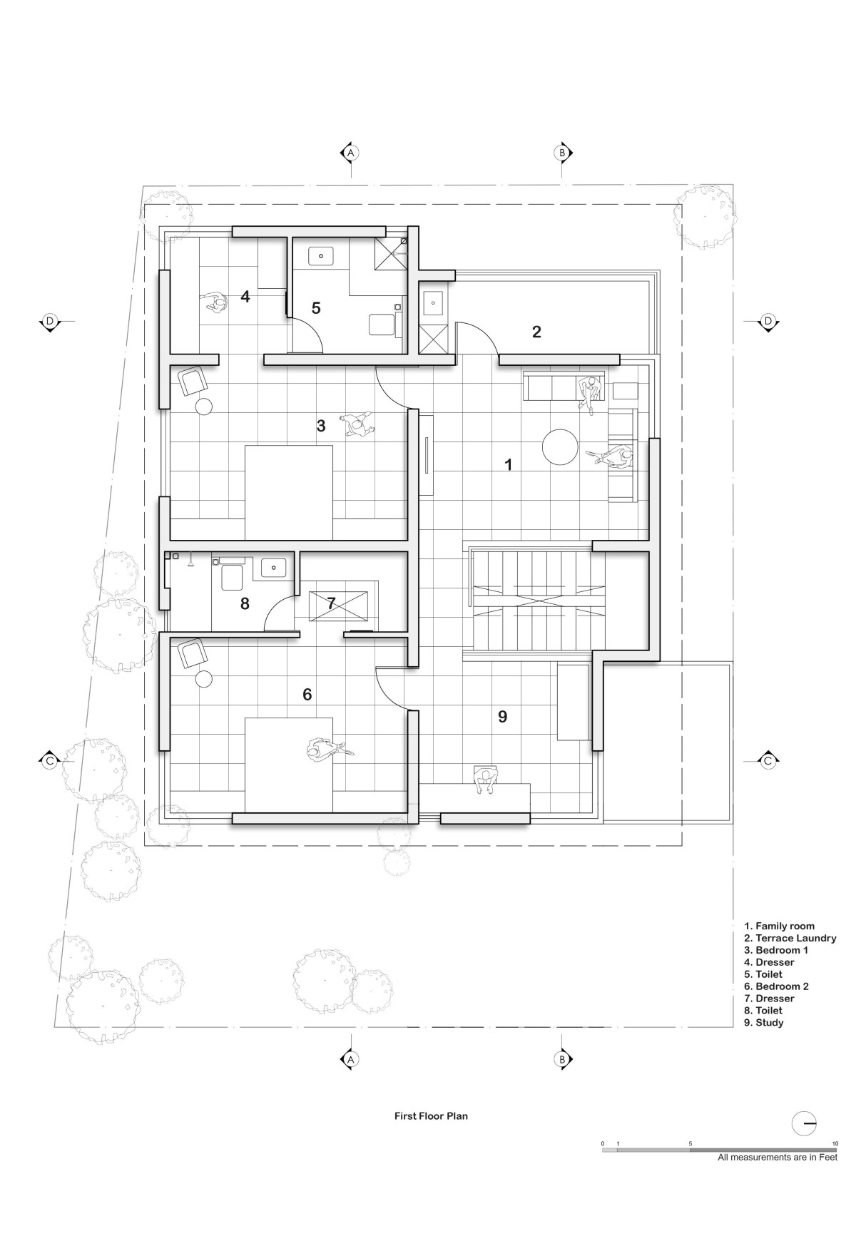
A central concept of the home is creating a space that encourages family interaction. Designed for a couple with two teenage children, the ground floor features an open layout with a large portico and garden for the dogs and the owners to entertain. There are no permanent walls between the living room, kitchen, and common areas, to support communication and connection in daily life. The living and the kitchen are divided by a sculptural staircase. Upstairs the bedrooms, TV room and study rooms allow the family members to remain connected with only glass book shelves dividing the spaces therefore transforming the upper floor into a shared space when desired.

To respond to the climate, the house incorporates many openings in different positions and large corner windows to allow the spaces to feel large and leading to more connectivity with the outside. Thick mud walls and alternative roofs reduce both heat gain, enhancing indoor comfort. 

Bangalore,Karnataka,India

Architects : Studio Alaya
Area : 2430 sq. ft.
Year of Completion : 2024
Website : https://www.instagram.com/studioalaya_proj/

Exterior view of Nila by Studio Alaya


Exterior view of Nila by Studio Alaya


Exterior view of Nila by Studio Alaya


Parking area of Nila by Studio Alaya


Pedestrian entrance of Nila by Studio Alaya


Sitout of Nila by Studio Alaya


Covered Portico of Nila by Studio Alaya


Living room of Nila by Studio Alaya

Unconventionally, the home forgoes typical concrete plastered finishes. Instead, it celebrates raw mud plaster finishes on the walls and concrete finishes on ceilings and natural stone floors. An precast Arch panel roofing system was used for the upper floor while the ground floor has Filler slabs with patterns to enhance the aesthetic of the alternative construction technique. Warm, directional lighting adds to the cozy and distinctive ambience. More than just a shelter, the home offers a sustainable and harmonious living environment. It fosters close family bonds and a deeper connection with the natural surroundings.


Dining of Nila by Studio Alaya


Dining of Nila by Studio Alaya


Dining to Kitchen view of Nila by Studio Alaya


Storage Alcove of Nila by Studio Alaya


Staircase of Nila by Studio Alaya


Staircase of Nila by Studio Alaya


Staircase view of Nila by Studio Alaya


Family room to Study area view of Nila by Studio Alaya


Study Area of Nila by Studio Alaya


Bedroom 1 of Nila by Studio Alaya


Bedroom 2 of Nila by Studio Alaya


Bedroom 2 of Nila by Studio Alaya


Bedroom 2 of Nila by Studio Alaya


Lawn of Nila by Studio Alaya


Lawn of Nila by Studio Alaya


West Elevation of Nila by Studio Alaya


East Elevation of Nila by Studio Alaya


South Elevation of Nila by Studio Alaya


North Elevation of Nila by Studio Alaya


Ground Floor Plan of Nila by Studio Alaya


First Floor Plan of Nila by Studio Alaya


Terrace Floor Plan of Nila by Studio Alaya


Section AA of Nila by Studio Alaya


Section BB of Nila by Studio Alaya


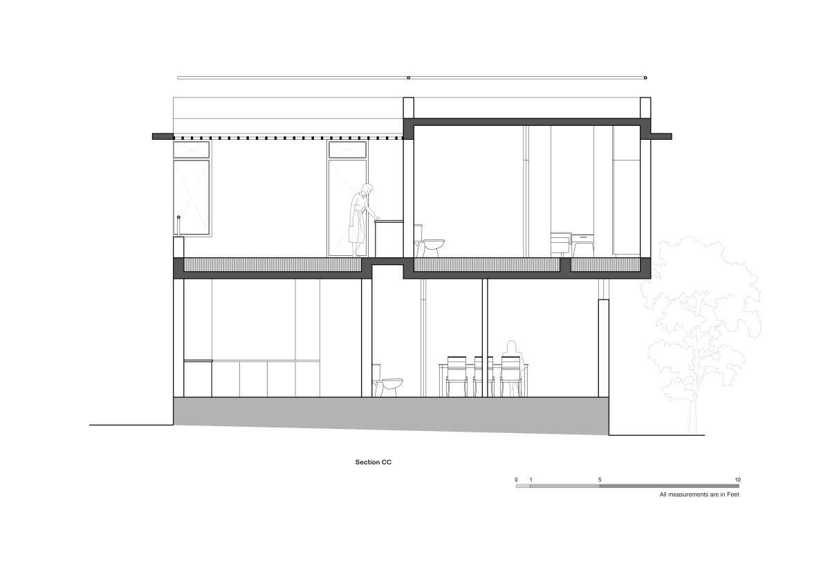
Section CC of Nila by Studio Alaya


Section DD of Nila by Studio Alaya




Most Visited Articles




Subscribe

Get our latest article and updates delivered straight to your inbox.