Architecture

19-06-2025

Photographer : Prantography & Rezwan Kobir Zoha

Nimah is located in Dhanmondi, an elite neighborhood of Dhaka city, where modern architecture style can be noticed among the building and interior design. Nimah is one such project, where interior design, lighting as well as ambient view, climate and wind effects has been worked on. When their team started working on this project, the project was under construction and mainly undertakes functional renovation with interior design here. Since taking over, the Compass team renovated the functions according to the need and considering the surrounding beauty, climate, air flow and thought of an elite interior. Here they work on some floors, mainly the ground floor where their main function was prayer hall, reception area, waiting area and entrance to the house. Reception and waiting on the second floor as Part of the personal office, main office on the sixth floor. for a better living environment, they carry out renovation work on the 7th, 8th, 9th, rooftop and swimming pool areas.

Entrance, reception and prayer area on the ground floor. Stairs connected to the main lift and reception room. The entrance ceiling design uses a cane chandelier. A shallow Water bodies are built around the prayer area to provide a bit of a natural feel. Here they used some flexible elements for interior design, color of the wall and some messy texture tiles to evaluate the prayer space. The Height of the reception and waiting area created a vibrant look by highlighting the walls through the interior design, lighting, tiles cutting and placing randomly. To design the boundary wall used an RCC wall, a type of calligraphy pattern and perforated sheet. This creates a harmony with the design of the entire building facade and maintains a visual relationship with the sidewalk.

Dhaka,Bangladesh

Architects : Compass Architects
Area : 24993.8 sq. ft.
Year of Completion : 2024
Website : https://compassarchi.com/

Exterior view of Nimah Penthouse by Compass Architects


Exterior view of Nimah Penthouse by Compass Architects


Entrance of Nimah Penthouse by Compass Architects


Ground Reception and Waiting Area of Nimah Penthouse by Compass Architects

Entrance, reception and prayer area on the ground floor. Stairs connected to the main lift and reception room. The entrance ceiling design uses a cane chandelier. A shallow Water bodies are built around the prayer area to provide a bit of a natural feel. Here they used some flexible elements for interior design, color of the wall and some messy texture tiles to evaluate the prayer space. The Height of the reception and waiting area created a vibrant look by highlighting the walls through the interior design, lighting, tiles cutting and placing randomly. To design the boundary wall used an RCC wall, a type of calligraphy pattern and perforated sheet. This creates a harmony with the design of the entire building facade and maintains a visual relationship with the sidewalk.


Ground Prayer Hall of Nimah Penthouse by Compass Architects


Courtyard of Nimah Penthouse by Compass Architects

The core of the project is a penthouse of Approx. 15,500 square feet starting from the 8th floor. The inner courtyard on the inner side of this floor connected with the 9th floor, Roof floor and with a pool. During the renovation they added a steel and wooden staircase from the inner courtyard that unifies the entire house into one space. Being a floating staircase, it has more space on bottom and added some plants stones to bring life to the interior space. The entire part is open to the courtyard and the most precious beauty of the house can be enjoyed from here. The exterior facade in the Inner courtyard used Transparent glass that allows you to the sky, city view and everything that happens in nature from each floor. As this part is in the South West, thermally insulated glass is used here and windows for ventilation to air in and out.



Courtyard of Nimah Penthouse by Compass Architects


Courtyard of Nimah Penthouse by Compass Architects


View from staircase of Nimah Penthouse by Compass Architects


Chandelier & Skylight of Nimah Penthouse by Compass Architects


8th Floor Wating Area of Nimah Penthouse by Compass Architects


8th Floor Hall Room of Nimah Penthouse by Compass Architects

Used very minimal elements for the interior design of the hall room. Aluminum louvers and a type of calligraphic pattern are mainly used in the design of the exterior facade of their building that control sunlight through the south-west part of the Hall Room and Some parts are solid walls. Large size wooden tiles are used for the floor and using uneven wooden tiles on columns feels like a tree. They focus on the interior design by connecting small and large gardens around the hall room and perceiving the garden from all sides. wooden ceiling has been Used for interior design and added some lighting to add elegance.


8th Floor Hall Room of Nimah Penthouse by Compass Architects


Ceiling of Hall Room of Nimah Penthouse by Compass Architects


8th Floor Dining Area of Nimah Penthouse by Compass Architects

The dining hall is located on the north side. Since this side is covered with greenery, they use transparent glass in the exterior design so that the beautiful view can be enjoyed outside. In the interior design, they use a combination of colors, tiles, textures, and wood as elements. In the lighting design, they use exceptional light selection and use. During the day, it can be seen that it is very simple and minimal, but at night, the elegance emerges through the lighting design.



8th Floor Dining Area of Nimah Penthouse by Compass Architects




8th Floor Dining Area & Dry Kitchen of Nimah Penthouse by Compass Architects


9th Floor Living Area of Nimah Penthouse by Compass Architects

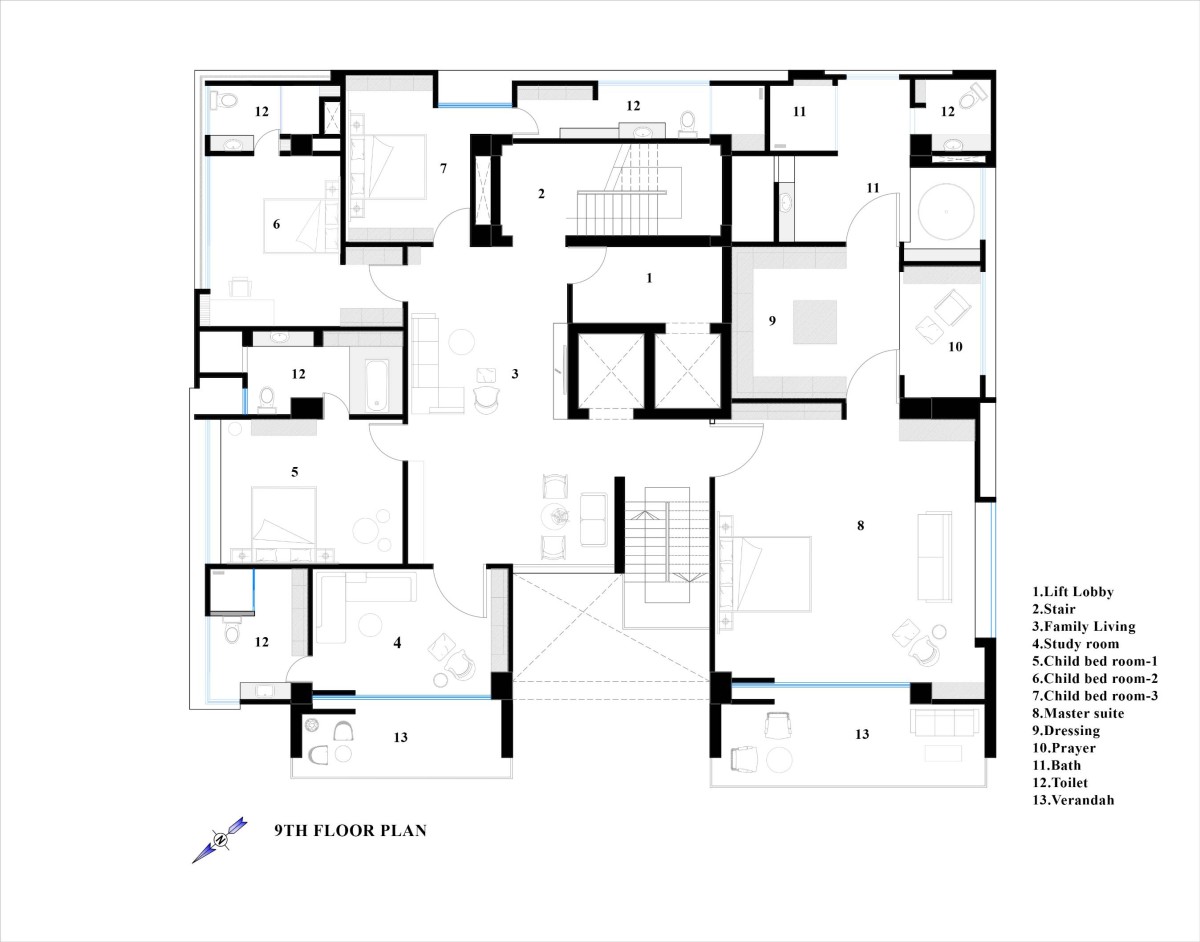
The 9th floor accommodation consists of three bed rooms, family living, study room, dressing room and prayer room attached to the master suite. In designing and positioning the bedrooms they prioritize the local climate and ensure ventilation. The master bed and study room have large terrace balconies from where you can enjoy the nature of the city.


9th Floor Bedroom of Nimah Penthouse by Compass Architects

Used tiles to design the walls inside this floor such as wooden tiles and rustic tiles which will give you innovation in every space. The lighting design gives priority to diffuse light in the bed rooms which will give a good feeling to the users. Different types of lighting have been chosen on the wall to beautifully bring out the textures of tiles, making the interior more vibrant and attractive.


9th Floor Kids Bedroom of Nimah Penthouse by Compass Architects


Walk in wardrobe of Nimah Penthouse by Compass Architects


Bathroom of Nimah Penthouse by Compass Architects


Wash Area of Nimah Penthouse by Compass Architects


6th Floor Office Lobby of Nimah Penthouse by Compass Architects


Swimming pool of Nimah Penthouse by Compass Architects


Try incorporating natural elements in small quantities to improve the properties of the roof integrated natural elements like wooden tiles, stones and greenery to create a space that feels deeply connected to nature. The elements not only soften the urban backdrop but also demonstrate a perfect balance between design and the natural world and encourage tranquility. On the other side, a swimming pool has been designed through a mezzanine floor to which an internal staircase and elevator are connected. This pool is located at the highest point in the Dhanmondi area Where the pool water appears to seamlessly blend with the city skyline creating a stunning infinity effect to enjoy the surrounding view beautifully. The design emphasizes luxury and tranquility with loungers lining the pool deck inviting relaxation in a tranquil setting. The glass railing enhances the illusion while maintaining safety allowing for uninterrupted views of the city.

This house embodies a harmonious connection between contemporary living and the surrounding urban beauty offering a perfect sanctuary within the city. The design of the house emphasizes luxury and tranquility.


Swimming pool of Nimah Penthouse by Compass Architects


Swimming pool area of Nimah Penthouse by Compass Architects


Terrace of Nimah Penthouse by Compass Architects


Terrace of Nimah Penthouse by Compass Architects


Aerial view of Nimah Penthouse by Compass Architects


Roof Top view of Nimah Penthouse by Compass Architects


Ground Floor Plan of Nimah Penthouse by Compass Architects


6th Floor Plan of Nimah Penthouse by Compass Architects


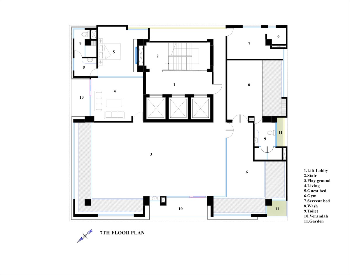
7th Floor Plan of Nimah Penthouse by Compass Architects


8th Floor Plan of Nimah Penthouse by Compass Architects


9th Floor Plan of Nimah Penthouse by Compass Architects


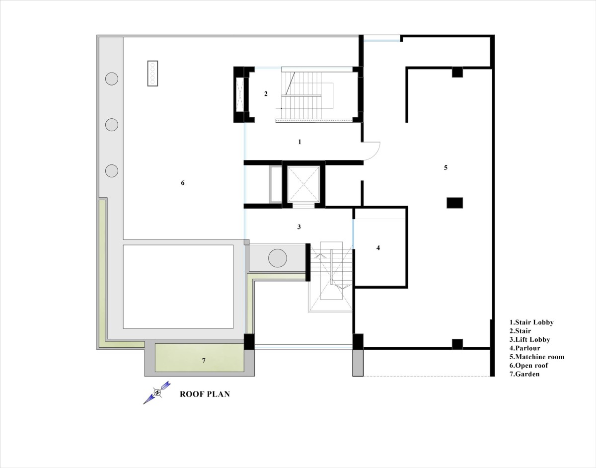
Main Roof Plan of Nimah Penthouse by Compass Architects


Rooftop (Swimming Pool) Plan of Nimah Penthouse by Compass Architects


Section of Nimah Penthouse by Compass Architects




Most Visited Articles




Subscribe

Get our latest article and updates delivered straight to your inbox.