Architecture

25-09-2025

Photographer : Onebox

The coastal town of Pondicherry is witnessing a rapid transformation, where numerous small to medium-scale accommodations and heritage homes are being converted into homestays to serve a growing influx of tourists. Amidst this crowded hospitality landscape, the project introduces a design strategy that is both rooted and distinctive where architecture itself becomes the prime attraction, offering longevity and identity to the business.

The concept was born from a simple yet profound thought that our existence on Earth is, in essence, a nomadic journey. We arrive from nowhere, inhabit this world briefly, explore, connect, and eventually return back to nowhere. This transient nature of human life marked by constant movement in search of livelihood, experience, and meaning formed the philosophical foundation of the project. It celebrates the timeless human impulse to travel, discover new places, engage with diverse cultures, and experience the world beyond borders.

The design is conceived as a boutique resort that takes guests on an experiential journey to a different land through architecture. Following an intensive research period of three months, ten culturally distinct regions admired by global travelers were selected and interpreted architecturally. These include Japan, Chettinadu (India), Mexico, Santorini, Mykonos, Bali, and three conceptual themes: Bohemia (currently Czech Republic - bohemian style), Nowhere (a philosophical space referring nomadism), and Forest (a nature-based raw retreat). Each space is crafted with an emphasis on authenticity, drawing from the original region’s architecture, landscape, culture, materials, artifacts and spatial qualities—translated through a contemporary lens.

Pondicherry,India

Architects : Seeders
Area : 10,200 sq. ft.
Year of Completion : 2024
Website : https://www.instagram.com/theseeders.in/

Facade of Nomads by Seeders


Entrance of Nomads by Seeders

Visitors are welcomed by a 10-foot-high gabion wall, embedded with a concealed planter at the top. Cascading creepers from ferrocement planters soften the rugged stone facade, while Mediterranean-inspired planting enhances the base. The entrance bridge is flanked by a swimming pool and a children’s pool on either side, both bordered with soft vegetation. Moving inward, the front yard features dense tropical planting and a compact lawn paved with random rubble Kadappa stone.

A winding pebble-stone pathway leads guests through a lush corridor, setting the tone for the immersive journey ahead. This carefully choreographed sequence guides visitors through a layered interplay of vegetation, shifting air, texture, and filtered light—building a quiet sense of anticipation with every step. As the journey unfolds, foliage brushes past the body, air feels cooler , and doorways appear from within the greenery like portals ; each one leading to a distinct and immersive world beyond.


Lawn & Swimming Pool of Nomads by Seeders


Front lawn of Nomads by Seeders


Pebble pathway of Nomads by Seeders


Pebble pathway of Nomads by Seeders


Japanese suite of Nomads by Seeders

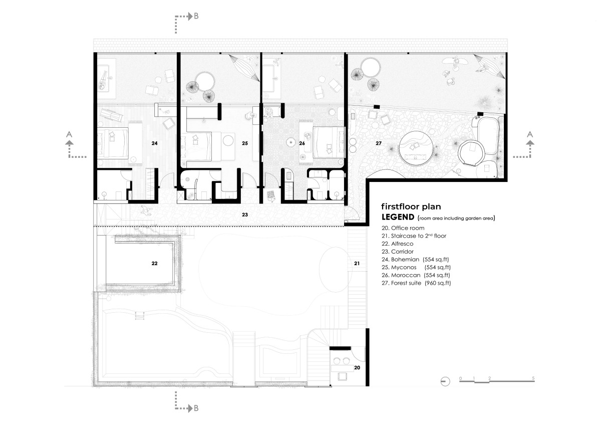
The resort presents an ensemble  of culturally nuanced spaces, each room offering an immersive narrative rooted in distinct architectural traditions from around the world. The Japan room evokes serenity through soft mat flooring, handmade paper lighting fixtures, bamboo gardens, and traditional legless chairs. Its walls are finished using a unique mix of chopped palm leaves and oxide, referencing the tobacco leaf plastering of Japanese interiors. In contrast, the Chettinadu room draws from South India’s vernacular richness ; Athangudi tile flooring, a classic poster bed, bell jar light fixtures, and half-white oxide walls form a tactile. The indoor garden featuring banana trees and areca palms beside the bathtub adds to the homely, tropical sensibility. Earthy and expressive, the Mexico room embraces terracotta tile floors, raw wood furnishings, and clay artifacts, with a curated selection of regional plant species such as aloe vera, banana trees, and dracaenas enhancing the authenticity.


Japanese suite of Nomads by Seeders


Chettinadu of Nomads by Seeders


Chettinadu of Nomads by Seeders


Mexican suite of Nomads by Seeders


Mexican suite of Nomads by Seeders


Santorini Suite of Nomads by Seeders

The Santorini and Mykonos rooms channel the  aesthetics of Greece through seamless white oxide surfaces, curved roofs, organic shower enclosures, and arched openings. The interiors remain minimal, with sculptural lighting embedded in the walls, casting a soft, dramatic glow. Morocco, on the other hand, celebrates detail-arched niches behind the bed, a recessed bay window with diwan cushions, tandur stone flooring with subtle motifs, and pink oxide walls define its material language. The planting palette ranges from palms to succulents and cacti, evoking a dry mediterranean ambiance. 


Santorini Suite of Nomads by Seeders


Bathroom at Santorini Suite of Nomads by Seeders


Mykonos of Nomads by Seeders


Mykonos of Nomads by Seeders


Moroccoan suite of Nomads by Seeders


Bali premium suite of Nomads by Seeders

Spanning the entire second floor, the Bali suite functions as an expansive indoor-outdoor retreat. Outdoors, a lap pool, open shower, tropical deck, and dense green planters create a lush setting, while the indoor zone with circular bed, reclaimed wooden floors, wavy plastered walls, bamboo railings, and woven mat ceilings anchors the atmosphere in relaxed luxury.


Bali premium suite of Nomads by Seeders


Nowhere of Nomads by Seeders

Three conceptual rooms further push the project’s thematic depth. The Nowhere room is a spatial reflection on existential transience. Rendered in black oxide, with leather-finish Kadappa stone floors and diagonally oriented furniture, the room opens up to a quiet rear garden, embracing both philosophical and spatial emptiness. Bohemia, by contrast, is warm and textural—wooden floors, raw timber headboards, macrame hangings, and rattan lighting create an eclectic interior aligned with the modern bohemian aesthetic. Finally, the Forest room reimagines wilderness in architectural form. A river-like blue mosaic flows through the space, surrounded by rubble stone flooring. A circular bed with a bamboo headboard, tree trunk furniture, reclaimed root coffee tables, and a western-closet enclosed in a sculpted ferrocement “rock” structure immerse the guest in a raw, tactile environment. The space is punctuated with lush vegetation and bamboo plumbing fixtures, blurring boundaries between built and natural.

The west-facing facade demanded a responsive design solution to reduce heat gain. A custom terracotta screen was developed using hollow terracotta bars threaded with steel rods and mounted on a metal framework at the back. Throughout the process, it was made sure that no sort of pattern shall arrive but only randomness, to resonate with nature.


Nowhere of Nomads by Seeders


Bohemia of Nomads by Seeders


Bohemia of Nomads by Seeders


Forest suite of Nomads by Seeders


Forest suite of Nomads by Seeders

The overall colour palette of the outdoor spaces is composed of earthy, natural tones with no clue of what’s inside the rooms. Dominated by five key hues, the scheme features dark grey gabion walls, ash green textured exterior surfaces, lush green tropical vegetation, peach-toned pebble stone pathways, and warm terracotta elements—visible in both the pendant jars and the perforated façade screen.

The success of the concept is evident in the numbers. Guests, originally booking for a night, often find themselves extending their stay, intrigued by the promise of discovering another “world” just a door away. This organically driven habit has fostered high retention and return rates, with many revisiting to inhabit a new experience, rather than a conventional room. Unlike typical short-stay accommodations that see surges only on weekends, this property maintains consistent weekday occupancy powered less by marketing and more by spatial intrigue. The architecture isn’t consumed in a single visit—it’s episodic. 

This reinforces a broader idea: hospitality architecture is no longer just about comfort or ambience. It must become a strategy; anchored in market insight, clear differentiation, and spatial storytelling. Here, design becomes the unique selling proposition and branding is embedded in experience. “Nomads” serves as a model for hospitality projects that aspire not only to shelter but to stir the soul.


Toilet of Forest suite of Nomads by Seeders


First floor passage of Nomads by Seeders


Ground Floor Plan of Nomads by Seeders


First Floor Plan of Nomads by Seeders


Second Floor Plan of Nomads by Seeders


Section A of Nomads by Seeders


Section B of Nomads by Seeders




Most Visited Articles




Subscribe

Get our latest article and updates delivered straight to your inbox.