Architecture

12-10-2025

Photographer : Onebox

Text provided by Architect

A community of traditional weavers in Chennimalai, Tamil Nadu, was the target of the grassroots architectural intervention known as the Nurpu Handloom School. The initiative, which is based on the idea of "conserve and develop," aims to create new educational and cultural opportunities while preserving current materials and structures.

Node for centuries to come. This area is intended to serve as both a school and a weaving campus, where education and creation coexist harmoniously and provide local kids with both traditional knowledge and contemporary viewpoints.

Utilizing the site's current topography and layout, the project is situated within a semi-urban weaving cluster.
Adaptive reuse of existing ground-floor structures whenever structurally feasible was one of the main planning concerns.
Constructing a multipurpose central hall that serves as a classroom, gathering place, and weaving workshop
Making the most of usable outdoor spaces for community training, warping, dyeing, and informal interaction
Making sure the layout promotes natural airflow, shared use, and informal pedagogy in areas that are open to the sky.

The design captures the essence of the neighbourhood and the rhythm of weaving by preserving visual porosity and fluid spatial movement.

Chennimalai,Tamil Nadu,India

Architects : Aagaram Architects
Year of Completion : 2024
Website : https://www.instagram.com/aagaramarchitects/

Exterior view of Nurpu Handloom School by Aagaram Architects


Entrance of Nurpu Handloom School by Aagaram Architects


Sitout of Nurpu Handloom School by Aagaram Architects

Based on the fundamental ideas of:
Low-cost building, the project demonstrates a multi-layered and sustainable construction approach.
Maximum space efficiency
Fast construction time
Comfort in terms of temperature
Material and visual interaction with the environment

One of the main strategies is to retrofit load-bearing brick walls from the old structures, which lowers waste and structural costs.
New first-floor slabs were constructed with Kadappa stone slabs and mild steel trusses, which ensured quick assembly and lightweight structural loads.
Filler slab construction with coconut shells and stone pieces added texture, decreased cement use, and improved thermal insulation.
Corrugated GI sheets were used for roofing, which were insulated with aluminium foil underneath to create thermal buffer zones and deflect heat.

In order to limit direct solar gain on walls, deep overhangs and shading devices were installed, together with louvered high-level apertures and north-facing skylights to attract indirect light and hot air escape routes.

All methods guaranteed maximum comfort without relying on artificial cooling and a small environmental impact.


Outdoor court of Nurpu Handloom School by Aagaram Architects


Studio of Nurpu Handloom School by Aagaram Architects

Durability, reusability, and local availability all played a role in the material selection process:
Gypsum-plastered interior walls and unplastered concrete block outside walls, balancing cost and performance.
Widespread use of salvaged materials, such as steel rods from disassembled sections, stone slabs for thresholds, and wood for doors and windows; flooring completed in terracotta tiles, natural stone, and red oxide—all locally sourced and laid using traditional methods.

As an architectural language, roughness and texture are celebrated in the resulting aesthetic, which is both unadulterated and grounded.

By carefully disassembling, cataloguing, and reincorporating doors, windows, rafters, old bricks, and even floor slabs, the project was able to reduce its material budget while also preserving the memory of the original structures, allowing the school to "grow out" of its location. This was a key component of the project's success.

Additionally, by lowering new procurement delays and promoting circular construction logic, the procedure aided in the quick turnaround of building.


Weaving school of Nurpu Handloom School by Aagaram Architects


Weaving school of Nurpu Handloom School by Aagaram Architects

The school has a variety of spaces, including:
Classrooms that double as weaving studios
Common areas for warping and dying
Shared housing units for volunteers and students
Outdoor work courtyards
Storage and service sections that are effectively planned within leftover site pockets These are all connected by spill-out areas and shaded passageways, which facilitate seamless transitions between activities.

Climate Responsiveness and Comfort
Thermal comfort was a non-negotiable design priority, addressed through:
Passive ventilation strategies: stack effect, cross-breezes, shaded courtyards.
Material massing: stone slabs and thick walls act as thermal buffers.
Insulated roofing and ventilated roof cavities to cut down heat transfer.
Minimal mechanical intervention, thereby keeping energy consumption near zero. These measures ensure that the school remains comfortable and functional year-round, even in Tamil Nadu’s hot summer months.

Boundary and Landscape
Similar to the structure, the boundary wall is a patchwork of repurposed materials, consisting of bricks, slabs, and stone debris that was found on the property. It reinforces the idea that learning is not limited but rather connected to its surroundings since it is porous and non-threatening. Native plants, soil retention patches, and unpaved courtyards for percolation and usability are among the simple yet ecologically sensitive landscape elements.


Weaving school of Nurpu Handloom School by Aagaram Architects


Weaving school of Nurpu Handloom School by Aagaram Architects


Display area of Nurpu Handloom School by Aagaram Architects

Community Engagement & Process
The process of construction was not top-down. It was locally resourced, participative, and incremental:
Constructed in stages in accordance with labor schedules and financial constraints. Local artisans and masons, many of whom belonged to the same weaving family, were involved at every stage.
Collective choices were taken on-site, allowing for flexibility and contextual problem- solving. As a result, the school has a homey, lived-in vibe that its users adore.

More than just a structure, the Nurpu Handloom School serves as an example of how design can foster continuity, community, climate, and craft. The project offers a modest, high- impact space that combines tradition with transition through careful reuse, cost-effective methods, and close engagement with place.


Display area of Nurpu Handloom School by Aagaram Architects


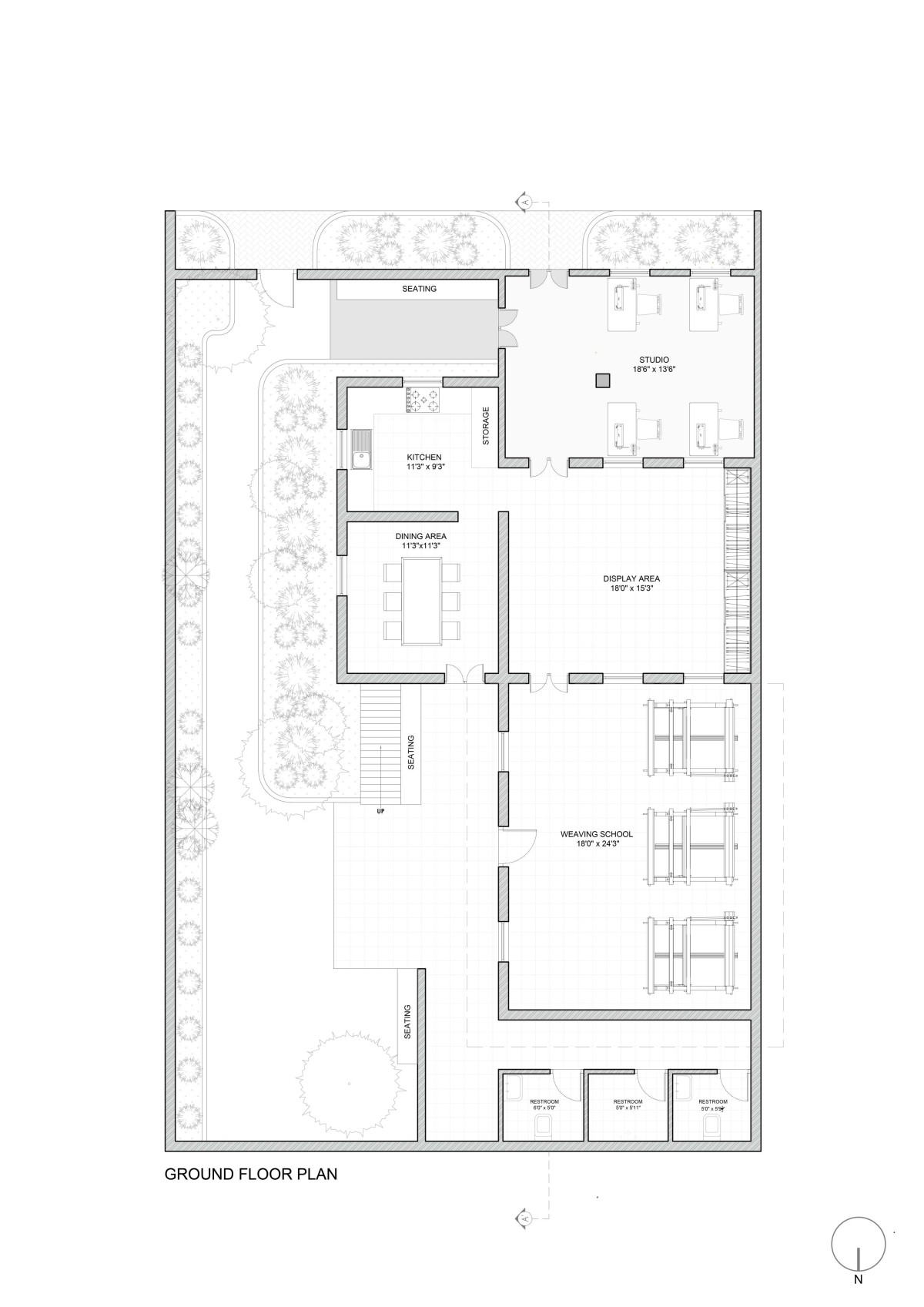
Ground Floor Plan of Nurpu Handloom School by Aagaram Architects


First Floor Plan of Nurpu Handloom School by Aagaram Architects


Isometric Section of Nurpu Handloom School by Aagaram Architects


Exploded view of Nurpu Handloom School by Aagaram Architects




Most Visited Articles




Subscribe

Get our latest article and updates delivered straight to your inbox.