Architecture

21-04-2026

Photographer : Ar. Kiran Nalam

Text provided by Architect

Oneness House - Openness Within Urban Enclosure

The Oneness House transforms a tightly enclosed urban plot into a vertically open living environment, where light, air, and shared inhabitation are organized through section rather than façade.

Located on a compact 19 × 60 ft north-facing plot in Coastal Andhra Pradesh, India, the house is surrounded by built mass on three sides, leaving minimal opportunity for lateral openings. The site lies within a dense residential fabric where privacy, limited frontage, and restricted cross-ventilation define the primary spatial constraints. At the same time, the region experiences prolonged periods of intense heat, with summer temperatures reaching up to 49°C.

The project was commissioned for a family of four seeking a home centered on shared living rather than compartmentalized rooms. The architectural challenge therefore involved resolving environmental performance, spatial openness, and visual continuity within a constrained urban footprint. The design required a strategy that could simultaneously introduce daylight, enable passive cooling, and maintain strong internal connection without relying on conventional external openings.

Kavali,Andhra Pradesh,India

Architects : 8DesignWorks
Area : 3730 sq. ft.
Year of Completion : 2025
Website : https://www.instagram.com/8designworks/

Front Elevation of Oneness House by 8DesignWorks


Entrance of Oneness House by 8DesignWorks


Interior entry axis leading to central living area of Oneness House by 8DesignWorks


Living area of Oneness House by 8DesignWorks


Living area of Oneness House by 8DesignWorks


Interior living space with visual connection across levels of Oneness House by 8DesignWorks

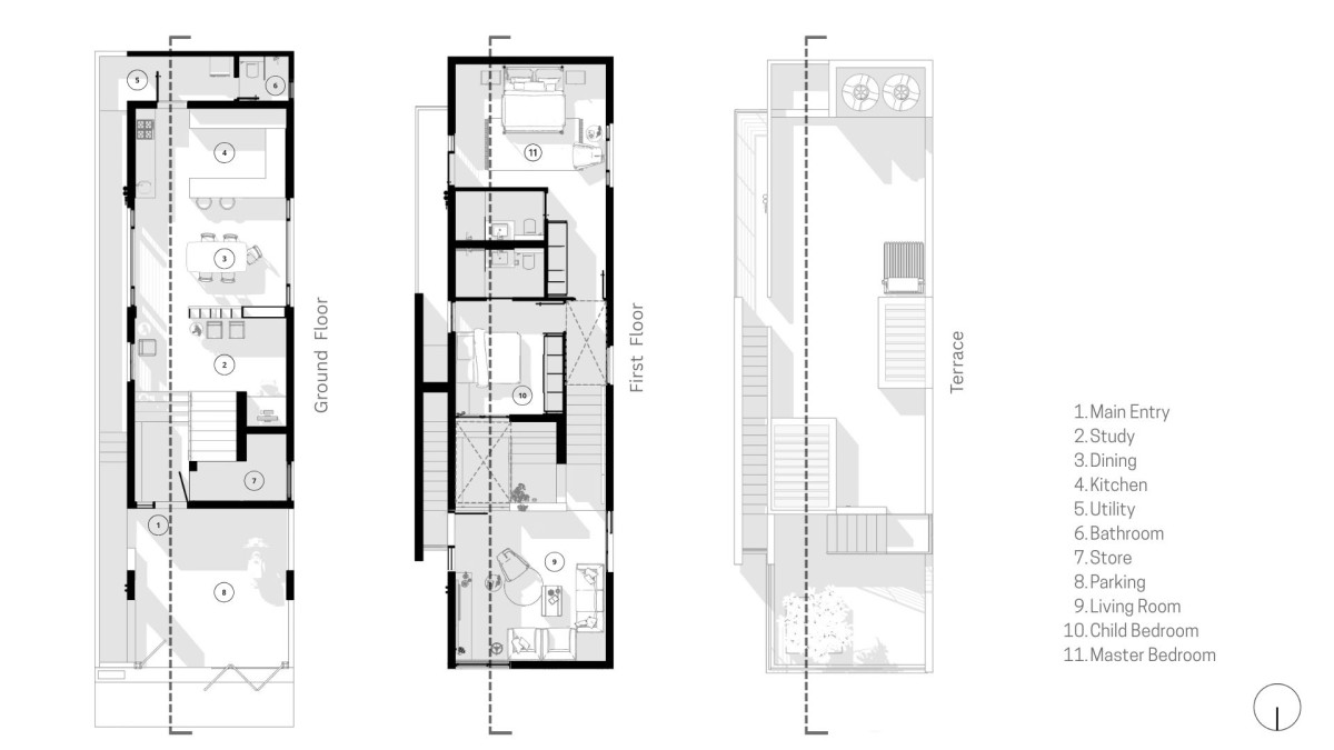
The design reconceives the house not as a stack of enclosed rooms, but as a vertically continuous spatial field structured around a central void. In response to restricted side openings and climatic intensity, the section becomes the primary architectural instrument. Height replaces width as the generator of openness, and the interior volume operates simultaneously as an environmental device and collective living space.

At the core of the house, a tall, uninterrupted void extends through multiple levels, establishing visual continuity and environmental exchange. Rather than treating light and ventilation as applied technical solutions, they are embedded into the spatial framework. Skylights positioned above draw daylight deep into the plan, while operable vents at higher levels facilitate stack-effect ventilation, allowing heated air to rise and escape. Cooler air is introduced at lower shaded openings, producing a passive airflow cycle calibrated to the coastal climate.


Lower level staircase connecting to main living spaces of Oneness House by 8DesignWorks


Living room organized around vertical spatial core of Oneness House by 8DesignWorks


Intermediate staircase landing within the vertical circulation space of Oneness House by 8DesignWorks


Courtyard of Oneness House by 8DesignWorks


Mezzanine level overlooking the central void of Oneness House by 8DesignWorks

Circulation unfolds along the perimeter of this vertical volume, ensuring that movement remains engaged with the central space. Instead of corridors isolating rooms, transitions occur along edges that maintain sightlines across levels. An intermediate mezzanine is inserted within the height of the void, allowing occupation within the vertical field itself. This strategy transforms section into lived space, where inhabitation occurs in dialogue with light, air, and shared activity. The staircase to the terrace is positioned externally, accessed from the mezzanine level, to preserve the spatial clarity of the interior core.


Courtyard of Oneness House by 8DesignWorks


Transitional passage connecting private spaces of Oneness House by 8DesignWorks


Vertical core with stone cladding and skylight of Oneness House by 8DesignWorks

Material decisions reinforce this conceptual clarity. A restrained palette emphasizes thermal performance and tactile comfort. Kota stone flooring moderates interior temperature, while exposed surfaces allow light to articulate depth and proportion. Natural stone cladding is introduced along the core of the double-height skylight, grounding the vertical volume and providing visual weight that anchors its scale. This material articulation prevents the central void from reading as a narrow shaft, instead establishing it as a defined spatial element within the house. Cascading vegetation is integrated into the void, softening vertical scale and introducing seasonal change into the interior atmosphere.


Upper level corridor with overlooking the central void of Oneness House by 8DesignWorks

Occupants experience the house through continuous environmental variation rather than static enclosure. Movement between levels reveals changing light intensity, shifting air currents, and expanding vertical perspectives. Visual connections across floors maintain awareness of shared activity, while differences in height and airflow make climate perceptible as part of everyday inhabitation.

Through this approach, the house converts climatic constraint and urban enclosure into a cohesive spatial system, where environmental performance, structural logic, and social interaction are unified within a single continuous volume.


Bedroom view of Oneness House by 8DesignWorks


Workspace of Oneness House by 8DesignWorks


Study Area of Oneness House by 8DesignWorks


Plans of Oneness House by 8DesignWorks


Section of Oneness House by 8DesignWorks




Most Visited Articles




Subscribe

Get our latest article and updates delivered straight to your inbox.