Text provided by Architect

Overseas Inhabitance: A Vacation Home Rooted in Luxury & Warmth

In an age when life stretches easily across borders, a second home isn’t just a luxury — it’s a lifestyle. For a young Dubai-based couple, originally from Surat, their vacation apartment was never meant to be a quiet hideaway. Instead, it was imagined as a stage for living well: a place where intimacy and exuberance could flow together with ease.

From the very first meeting, their brief stood apart. With a laugh, they confessed: “We don’t have kids, but that doesn’t mean we don’t want large open spaces. We love to host — daily gatherings, sometimes enormous ones — so give us room to breathe.” In the same breath, they insisted their house help’s room be seamlessly integrated — a nod to the role she plays at the heart of their home. 

Amid the noise of city life, this apartment was designed as both an escape and a stage — serene in spirit, yet deeply social in function. A glass-lined foyer sets the tone, opening into a vast, fluid space where living, dining, and kitchen sit in conversation. The sequence extends effortlessly onto a terrace that frames a view of the distant river. Bedrooms anchor either side, balanced but never formulaic — each one with its own quiet character. 

Surat,Gujarat,India

Architects : Flow Studio
Area : 2124 sq. ft.
Year of Completion : 2025
Website : https://www.instagram.com/flow.studio2.0/

Living room of Overseas Inhabitance by Flow Studio


Living room of Overseas Inhabitance by Flow Studio

The language of the interiors resists rigidity. Instead, walls soften into curves, guiding the eye and inviting movement. An arched doorway gestures toward the prayer room before dissolving back into the living space, blurring lines between function and form. The effect is layered: expansiveness balanced by intimate corners, neutrality enriched by the natural drama of veined stone underfoot.

The couple’s love for muted taupe became the foundation. In public spaces, it merges with dark walnut veneer and brushed brass, lifted by the soft shimmer of Banswara marble. In the bedrooms, the palette deepens with notes of ebony, creating rooms that are cohesive yet distinct. The overall mood is warm, elevated, and refreshingly unpretentious.


Living room of Overseas Inhabitance by Flow Studio


Dining of Overseas Inhabitance by Flow Studio


Prayer room of Overseas Inhabitance by Flow Studio


Bedroom 1 of Overseas Inhabitance by Flow Studio

Details became the quiet storytellers here. Accent furniture from popular brands holds its own against artisanal touches: Jaipur rugs underfoot, custom in-situ lights casting shadows, murals layered with texture. Each piece was chosen for how it feels, not just how it looks — grounding the space in a tactile sense of comfort.

More than a vacation apartment, what emerged is a philosophy — of openness and warmth. It’s a home designed for laughter-filled evenings as much as solitary pauses, a home that embraces conviviality without sacrificing serenity. At its core, it is about belonging: to a space, to each other, and to life lived fully.


Bedroom 2 of Overseas Inhabitance by Flow Studio


Bedroom 2 of Overseas Inhabitance by Flow Studio


Bedroom 2 of Overseas Inhabitance by Flow Studio


Bathroom of Overseas Inhabitance by Flow Studio


Terrace of Overseas Inhabitance by Flow Studio


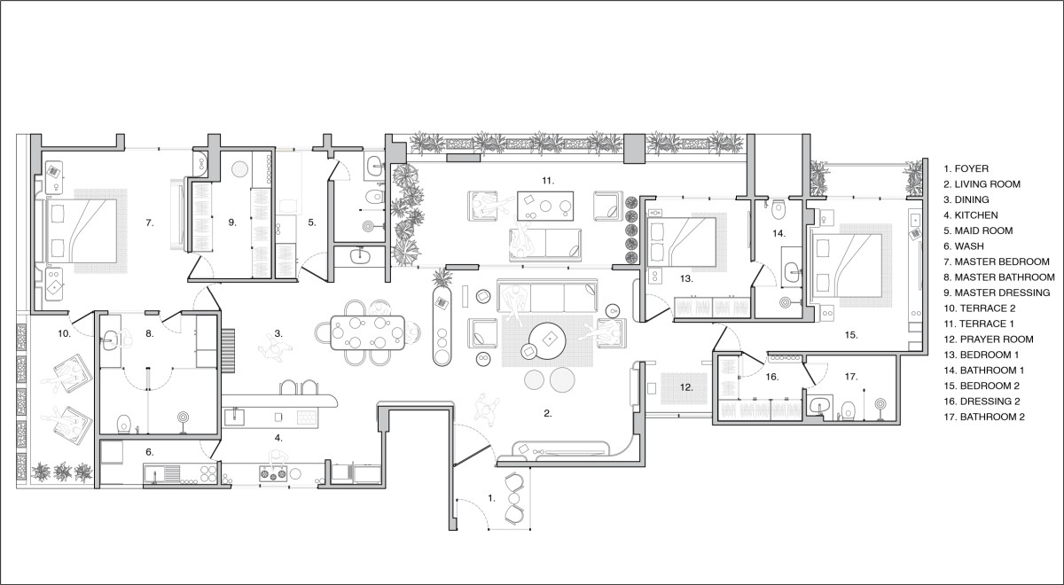
Plan of Overseas Inhabitance by Flow Studio




Most Visited Articles




Subscribe

Get our latest article and updates delivered straight to your inbox.