Text provided by Architect

Project Perch sits along a busy secondary road in a rapidly growing urban neighbourhood, where noise, traffic and constant movement dominate the surroundings. Designing a playschool in such a setting required the architects to prioritise safety, privacy, and controlled exposure for young children. This informed an inward-facing planning strategy that shields the interior from external chaos while allowing natural light to filter in through carefully calibrated openings.

The building’s form is defined by a concrete volume perched above a sweeping curved base. The contrast between the solid upper block and the fluid ground plane creates an identity that is distinct yet unobtrusive within its context. Around the window openings, a band of reflective ACP cladding introduces a deliberate contrast to the exposed concrete surface, catching fragments of the neighborhood and visually softening the mass.

Chennai,Tamil Nadu,India

Architects : V.O.Z.Architects and Designers
Area : 14700 sq. ft.
Year of Completion : 2025
Website : https://www.instagram.com/v.o.z_architects/

Front Elevation of Perch by V.O.Z.Architects and Designers


View from parking of Perch by V.O.Z.Architects and Designers


Ground floor entrance lobby of Perch by V.O.Z.Architects and Designers



Covered Play Area of Perch by V.O.Z.Architects and Designers

At ground level, the curved wall and circular columns enclose a covered play area, forming a protective edge while enabling free circulation. Linear slot cutouts along the curved surface maintain internal visual connection without compromising safety.

Inside, the playfulness in colour and form extends into the staircase core. A crude central RCC partition wall, punctured with varied cutouts, animates vertical movement as light shifts through the openings. This transforms a functional area into an engaging spatial experience.


Covered Play Area of Perch by V.O.Z.Architects and Designers


Covered Play Area of Perch by V.O.Z.Architects and Designers


First floor staircase lobby of Perch by V.O.Z.Architects and Designers


First floor classroom lobby of Perch by V.O.Z.Architects and Designers

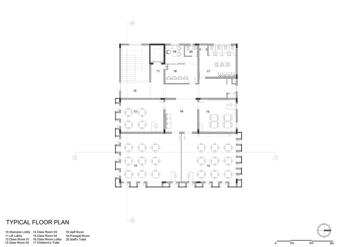
Each floor accommodates classrooms, a staff room, a lobby and toilets. Colour is used as an organisational device, guiding circulation and defining transitions. Every lobby is anchored by a brightly tiled feature wall that adds vibrancy while aiding orientation. The material palette is intentionally restrained, exposed fluted concrete, raw RCC ceilings, polished concrete flooring and terracotta tiles define the tactile experience of the spaces.


First floor kids classroom of Perch by V.O.Z.Architects and Designers


Second floor staircase of Perch by V.O.Z.Architects and Designers


Second floor staircase lobby of Perch by V.O.Z.Architects and Designers


Second floor classroom lobby of Perch by V.O.Z.Architects and Designers

The design intent was to retain a raw façade. Rather than applying RCC cladding panels, the wall was cast directly using profiled metal shuttering. This technique produced a uniform linear texture and articulated the concrete surface without additional finishes.

A floor-level ribbon window in the first-floor classroom offers children a scaled view of the outdoors, reinforcing the project’s sensitivity to child perspective.

Project Perch ultimately offers a protected, stimulating environment for early learning within a challenging urban setting, balancing robustness, openness and play.


Third floor classroom of Perch by V.O.Z.Architects and Designers


Ground floor plan of Perch by V.O.Z.Architects and Designers


First floor plan of Perch by V.O.Z.Architects and Designers


Section 1 of Perch by V.O.Z.Architects and Designers


Section 2 of Perch by V.O.Z.Architects and Designers




Most Visited Articles




Subscribe

Get our latest article and updates delivered straight to your inbox.