Architecture

05-02-2024

Photographer : Nakul Jain

The site is located in Panchkula (Haryana), a satellite town adjoining the border of Chandigarh. Chandigarh city was designed by Le Corbusier and is a symbol of modernism in India. The site is in a newly developed plotted sector, adjacent to the Information & Technology Park of Chandigarh.

The layout was conceptualized as a free plan around a central courtyard. The levels & accesses were carefully divided between the lady and the tenants to provide comfort & privacy to all. The architectural vocabulary is derived as a response to all the development happening in close proximity to the site and its neighborhood. The stark contrast of glass facades of the IT park on one hand and the old existing clusters and slums on the other hand were responded to by developing a blank facade, consisting of the most basic architectural element, the 'plane'. The stacked planes convey the need to go back to the essentials of architecture in the midst of the insensitive development happening all around.

Panchkula,Haryana,India

Architects : Charged Voids
Area : 5350 sq. ft.
Year of Completion : 2020
Website : https://www.instagram.com/chargedvoids/

Exterior view of Residence 414 by Charged Voids


Entrance Deck of Residence 414 by Charged Voids


Entrance of Residence 414 by Charged Voids


Entrance of Residence 414 by Charged Voids


Entrance foyer of Residence 414 by Charged Voids


View of courtyard from entrance foyer of Residence 414 by Charged Voids

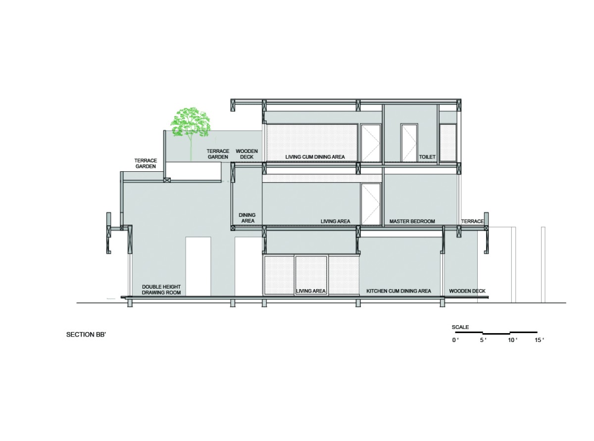
The overall plan is organized around a central courtyard that interacts differently with the interior spaces on different levels. It is open & accessible on the ground floor while the first floor has a ribbon ventilator to ensure privacy for the ground floor.

The lower level houses a bedroom for the old lady in the front and a guest room at the back. The open plan allows the public spaces like the living room, lobby and dining to flow into one another along with an open kitchen. A separate spice kitchen along with the other amenities has also been provided. Since the ground level houses the primary occupant, the volumetric expansion was achieved by having a double height living area. Although the lady wanted to rent the upper floors, she was very keen to have the terrace to herself. This is made possible through access to a separate elevator that opens directly onto the terrace from her entrance foyer.


Double Height Drawing Room of Residence 414 by Charged Voids


Double Height Drawing Room of Residence 414 by Charged Voids


Reading space of Residence 414 by Charged Voids


Space that connect Drawing room and Living area of Residence 414 by Charged Voids


Passage to courtyard of Residence 414 by Charged Voids


Courtyard of Residence 414 by Charged Voids


Living area of Residence 414 by Charged Voids


Dining and Kitchen of Residence 414 by Charged Voids


Family area of Residence 414 by Charged Voids


First floor living and Dining of Residence 414 by Charged Voids

The first floor has a 3 bedroom unit and public areas that flow on to private terraces. The second floor houses a one-bedroom unit with an open pantry. It also has 2 separate units for the domestic help of the lower floors. They too have been given separate private terraces that are not visible in the façade to ensure the maintenance of privacy.

The parking and access for the lower floor is from the north-eastern side of the site while a separate parking and access to the upper levels is towards the south.


Living and Dining area that connect to Terrace Garden of Residence 414 by Charged Voids


Bedroom of Residence 414 by Charged Voids


Bedroom 2 of Residence 414 by Charged Voids


Terrace of Residence 414 by Charged Voids


Terrace of Residence 414 by Charged Voids

The overall material palette is limited to only white marble & Sivakasi gold granite along with simple white plastered surfaces. The flooring on the ground floor is white marble to ensure a luxurious feel while on the upper floors it is the same granite. The textures & finishes on the granite have been explored using a number of traditional techniques & craftsmanship.


Garden of Residence 414 by Charged Voids


Front elevation of Residence 414 by Charged Voids


Rear Elevation of Residence 414 by Charged Voids


Section of Residence 414 by Charged Voids


Section of Residence 414 by Charged Voids


Section of Residence 414 by Charged Voids




Most Visited Articles




Subscribe

Get our latest article and updates delivered straight to your inbox.