Architecture

11-03-2024

RL residence occupies a 240sqm urban plot in Bengaluru. It is flanked by buildings on the East to north, and faces two streets on the west to south. This is a home designed for an entrepreneur and his family of young children, middle-aged relatives and older family members. The brief therefore, was to define a combination of spaces that respond to varying levels of privacy - including three bedrooms, semi-private family lounges, and multipurpose areas for entertainment and get-togethers. 

These internal relationships come through in the arrangement of spaces; the North and East edges hold stairways, an elevator, service areas and a private study, to form an almost impervious wedge towards the neighbors. Living and sleeping areas occupy the core, and slide out towards the streets as cantilevered extensions. To fit in all of the clients’ requirements, the program is stacked vertically on four compact floors. The ground and rooftop levels are largely open and flexible enough for a variety of uses including games, guests, events and barbeques. A private elevator lobby on the ground level, leads the family directly to the first and second levels.

Bangalore,Karnataka,India

Architects : SDeG
Area : 6210 sq. ft.
Year of Completion : 2018
Website : https://www.instagram.com/sdeg__/

Exterior view of RL Residence by SDeG


Living room of RL Residence by SDeG

To liberate the form from its programmed tautness, RLR has large indents of varying heights and depths scooped off its facades. The recesses are articulated to hold windows, balconies and other connections to the outside. The palette here is in stark contrast to a mute white that drapes the rest of the building. Polished plasters, copper laminates, steel and laminated glass aggregate to form a variety of textures and effects. However, the colour and character distinctions inside RLR were imagined differently. A range of material tones are articulated in the interiors as subtle floor to ceiling transitions between marble, wood, glass, lacquer and fabrics.   


Entertainment room of RL Residence by SDeG


Bedroom of RL Residence by SDeG


Bedroom 2 of RL Residence by SDeG


Entrance of RL Residence by SDeG


Dusk light exterior view of RL Residence by SDeG


Dusk light exterior view of RL Residence by SDeG


Ground floor plan of RL Residence by SDeG


First floor plan of RL Residence by SDeG


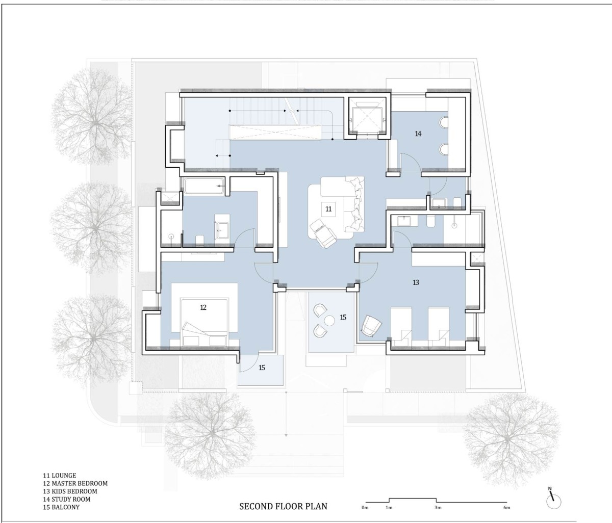
Second floor plan of RL Residence by SDeG


Third floor plan of RL Residence by SDeG




Most Visited Articles




Subscribe

Get our latest article and updates delivered straight to your inbox.