Architecture

31-05-2024

Photographer : HAMID MM

This residence is set in a site that is covered in coconut plantations and other native vegetation belonging to a typical northern Kerala landscape: A very quiet and tranquil setting that doesn't invite any kind of intrusions. Altering this and bringing about any kind of change called for a respectful approach.

Thus, this house is considered as an entity whose external facade is assigned the duty of ‘screening’ off the built from the unbuilt. This is done to place the volume in the most subtle way by not being in stark contrast with the context. This ‘screen’/ envelope of the house is lined with a layer of landscape in the inner periphery acting as a filtering member for the light and noise from the outside, also enabling a play of light inside during the day. Moreover, fresh and humid air from the surroundings is brought in, filtered and spread to different corners of the house.

The facade metaphorically represents a ‘lantern’ where the external envelope shields and glorifies the beauty of the inner core - the light or the function; literally being witnessed during the night. Design follows a clean, straightforward elevation where windows and doors are wrapped inside without revealing their identity, producing a monolithic form. Once entering the house, the visitor is welcomed to a larger volume where all the common spaces are dynamically knit into one with an elongated water body by the entrance.

Malappuram,Kerala,India

Architects : Zero Studio
Area : 5200 sq. ft.
Year of Completion : 2022
Website : https://www.instagram.com/zerostudioofficial/

Exterior view of Screen - The Lantern House by Zero Studio


Exterior view of Screen - The Lantern House by Zero Studio


Verandah of Screen - The Lantern House by Zero Studio


Waterbody of Screen - The Lantern House by Zero Studio


Waterbody of Screen - The Lantern House by Zero Studio


Formal Living of Screen - The Lantern House by Zero Studio

Walls are intentionally kept minimal to provide an unfettered access to the landscape in the periphery, while ensuring required privacy for bedrooms. While the screen and the subsequent landscape layer control the view towards the inner areas, the users are able to have a filtered view towards the outside through the same. This more or less thins the idea of having an opaque boundary to the volume, but serving its purpose of providing security going with an absolutely open planning. The palette for finishes in the interiors is mostly neutral to original shades without compromising this uncluttered appeal.

Designed for a family of four: husband, wife and their two kids who currently reside in the UK and come down during their annual holidays. They wanted their home to be set in their ancestral land, enabling them to be around their loved ones and hosting memorable gatherings while they are here.


Passage to living area of Screen - The Lantern House by Zero Studio


Passage of Screen - The Lantern House by Zero Studio


Indoor court of Screen - The Lantern House by Zero Studio


Prayer Area of Screen - The Lantern House by Zero Studio


Prayer Area of Screen - The Lantern House by Zero Studio


Staircase of Screen - The Lantern House by Zero Studio


Upper floor view of Screen - The Lantern House by Zero Studio

The process behind delivering personalized and intimate spaces for each of the users from a common volume was very much intense and the design ultimately went about having some delights like the floating deck by the living area that opens out to the garden, reading space in the extended stair landing, private balcony of the first floor bedroom overlooking the plantation, the terrace planters, the bay windows and the prayer/ meditation room in the ground floor with perforated wall that brings in interesting patterns of daylight. These are spaces that emote varying moods where these users can celebrate the wholesome experience of ‘homecoming’. 


Master Bedroom of Screen - The Lantern House by Zero Studio


Bathroom and Toilet of Screen - The Lantern House by Zero Studio


Sitout of Screen - The Lantern House by Zero Studio


Dusk light exterior view of Screen - The Lantern House by Zero Studio


Detailed shot of staircase of Screen - The Lantern House by Zero Studio


Front Elevation of Screen - The Lantern House by Zero Studio


Left Elevation of Screen - The Lantern House by Zero Studio


Right Elevation of Screen - The Lantern House by Zero Studio


Back Side Elevation of Screen - The Lantern House by Zero Studio


Site Plan of Screen - The Lantern House by Zero Studio


Ground Floor Plan of Screen - The Lantern House by Zero Studio


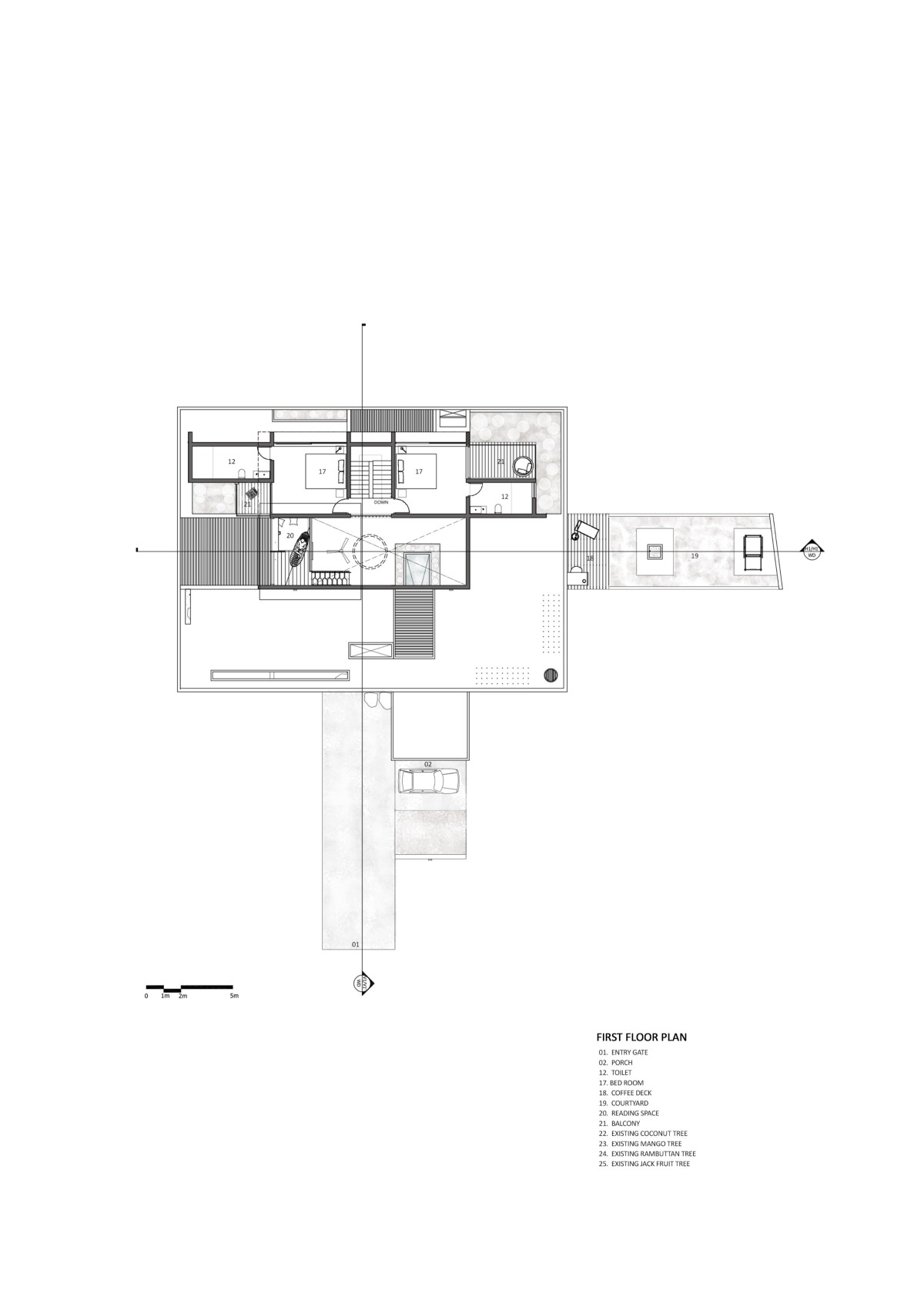
First Floor Plan of Screen - The Lantern House by Zero Studio


Section H3 of Screen - The Lantern House by Zero Studio


Section V3 of Screen - The Lantern House by Zero Studio




Most Visited Articles




Subscribe

Get our latest article and updates delivered straight to your inbox.