Architecture

21-10-2021

Photographer : Studio 415

The homeowners approach us, to design a home that was rooted in tradition and exuded an earthy vibe –- with hints of the contemporary in the interiors. Taking full advantage of the lush greenery that surrounds the house, we came up with a design plan that included an alfresco dining area, airy interiors and plenty of sunlight to maintain a seamless connect with nature.
 
The frame of the two-storey bungalow is RCC (reinforced cement concrete), while the walls are made of locally manufactured highly recyclable laterite stone. The wood-framed pitched roof is covered with terracotta Mangalore tiles. There’s also a small water body outside the house.

Dapoli,Maharashtra,India

Architects : Studio 415
Area : 4010
Year of Completion : 2020

living room

From the ground floor, one enters a double-height living room. Custom sofas from Topical Furniture House give the interiors a clean-lined, modern finish. The doors and windows are made of teak while the flooring is blue satin-finish natural tandoor stone.


living room



living room



dining area

The open-plan living room leads to the dining area, where expansive windows bring the outdoors inside. The customised teak-wood dining table, chairs and bench lend a warm note of rusticity, and the uneven natural edge of the tabletop deepens that organic feel. A copper water pot lends an ethnic touch to the contemporary setting


Study room



passage

Latticework on the walls accentuates the openness of the space, while vibrant cushions inject a burst of colour.
 


Double height

The pitched roof not only adds to the sense of expanse but helps keep the home cool during the warm summer months. Pendant lights provide a harmonious balance to the architectural lines of the wooden beams and rafters. 


master bedroom

On the first floor of the home are the media room, study room, master bedroom and terrace, connected by a passageway with flooring of locally sourced teak wood. 


master bedroom



First floor bedroom



First floor bedroom

In the First floor bedroom, a four-poster bed with quilted headboard, an armchair upholstered in deep peony-blue, the wooden floor and the raftered ceiling come together to create a cosy country-cottage experience. The textured beige on the walls is complemented by darker wood hues, creating a warm and inviting ambience. 


Study room

 
There’s also a study room on the first floor. The straight-line wood flooring, textured brown cabinet, table and chair complement each other, tied together with a neutral background of cream. Natural light and a view of the foliage outside unifies the decor.


Backyard



First floor plan



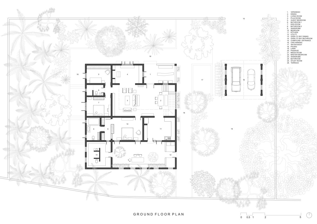
Ground floor plan





Most Visited Articles




Subscribe

Get our latest article and updates delivered straight to your inbox.