Architecture

12-05-2024

Photographer : Nathan Photos

Text provided by ARCHITECT JAY

Sidra, meaning ‘tree in heaven’, is a quintessential home nestled in the rich landscape of the coastal city of Calicut. In this abode, nature and architecture come together to weave a symphony of tropical living experiences. 

The legendary architect Geoffrey Bawa has said, “architecture cannot be totally explained but must be experienced.” With those words, architect Shahbas Tasim Ahamed of Studio Dtail steered his concepts to envision the scintillating Sidra home. Drawing inspiration from the master of tropical modernism, the design studio has crafted this 6200 sq. ft residence that innovatively orchestrates a sensorial scape of interwoven spatial harmonies. 

The moment you enter the subtly framed gateway, the longitudinal monumentality of the handsome rustic exterior, etched in grey stone veneer and Sri Lankan mud plaster, strikes a chord of minimalism at its core. The jutted-out balcony, fanned-out car porch and projected-out fins enrich the contemporary Kerala-style architecture along with minimalistic mullions and a gabled roof. The climate-sensitive architectural style of Sidra entwines green foliage in every province, hemming the spaces with a dramatic quality. 

Seamless spatial layouts, nature-rich transitional zones, strategic openings, wide patios, nourished nooks, double-height volumes, and purpose-driven courtyards are some of the prime architectural vocabulary. From an irregular-shaped site to tackling its wetland by binding its foundation, the design team drafted a colloquy of staggered floor plans that pursue the shape of the land. 

Kozhikode,Kerala,India

Architects : Studio Dtail
Area : 6200 sq.ft.
Year of Completion : 2023
Website : https://www.instagram.com/studiodtail/

Living room of Sidra by Studio Dtail


Living room of Sidra by Studio Dtail


Living room of Sidra by Studio Dtail

A ‘poomukham’ (verandah) and a water court on either side of the front sit-out unveil an inviting sequential entry, offering a sneak peek through latticed screens. A large wooden door with thin timber slats opens into an A-framed double-height interior space. Graced by green foliage, the space linearly extends into an expansive, gorgeous grey living room. As evocative as it is functional, a pergola-style skylight splashes natural light into the volume and suspended bulbous lanterns on the wooden ceiling warm up a cosy ambience. Sleek geometric glass frames slide open to a semi-shaded raised water court that casts an alluring aura and acts as a passive cooling feature. 

Entangled in romantic associations with the exotic tropical theme, the aesthetically pleasing interiors with a soft colour palette weave a sanctum of furnished elegance that manifests into the soul of Sidra home. Browns, greys, whites, beiges and a dash of gentle blues, yellows and greens - pigment the patterned fabrics, artefacts, custom furniture, feature walls, floors, artistic paintings, elaborate lights and dynamic decor. The calibrated grammar of design fosters a spirited kinship with each element. 


Dining of Sidra by Studio Dtail


Dining of Sidra by Studio Dtail


Kitchen of Sidra by Studio Dtail

The living room leads to a staircase crafted with thin rails and wooden treads on a concrete finish. A nook below the stairs becomes a perfect work desk, an ode to the careful curation of nulling negative spaces in the home. From here, the ground floor widens as two wings. A well-portioned, delectable dining, cheered by ample light through full-length windows, abuts the northern wing, with a wash and a powder room in-between. The wooden-themed kitchen is presented as a homemaker's dream, baked as a modular C-shaped workspace with an appetising breakfast table, finished in grey and wooden counters. From the kitchen, it leads to a linear work area and a servant room. 


Kitchen of Sidra by Studio Dtail


Ladies living of Sidra by Studio Dtail

Each bedroom with walk-ins, work desks and ensuite bathrooms follows a distinct theme with mood lighting, exhibiting a signature glam. Tucked alongside the dining is a compact bedroom with elementary wood finishes and a hexagon-patterned feature wall. On the other side of the stairway is a ladies living lounge with a personal courtyard. An ell beyond is the luxurious master suite, accessed via a slim foyer into a spacious and comfy bed space. Artfully modern with beige drapery, leaf motifs and lean wooden beams, the bedroom accommodates exceptional walk-ins for his and her and a premier bathroom. The bedroom extends to an outdoor deck that beckons you to come out and sit with the surrounding nature.


Ladies living of Sidra by Studio Dtail


Study space and Staricase of Sidra by Studio Dtail


Corridor of Sidra by Studio Dtail


Corridor of Sidra by Studio Dtail


Bedroom of Sidra by Studio Dtail

Flanking the first floor, as you ascend the stairs, is a theatrical balcony overlooking the palatial living. This floor features a second ladies living and three stunning bedrooms. Edging the stairs is a classic grey-panelled bedroom adorned in rattan and hazelnut finishes, which leads to an outdoor open terrace. Illustrated in textured stone tiles and fluted panels is a fourth bedroom that borders the northern province. An open terraced garden court, shaded by a tree with a ‘thinnai’ (bench) around it, sits atop the car porch in magnificent poise. The primary bedroom on this floor, in shades of cool greys and wooden flutes, is nourished along with a personal trellis balcony. 

These eclectic spaces add another layer to the tropical experience for its residents to cherish together with family and friends. 
 
Sidra is truly a home that draws you into its graceful comforts with a triumph of planning!


Bedroom of Sidra by Studio Dtail


Bedroom 2 of Sidra by Studio Dtail


Bedroom 2 of Sidra by Studio Dtail


Bedroom 3 of Sidra by Studio Dtail


Bedroom 4 of Sidra by Studio Dtail


Bedroom 4 of Sidra by Studio Dtail


Bathroom of Sidra by Studio Dtail


Bathroom of Sidra by Studio Dtail


Sitout of Sidra by Studio Dtail


Entrance door of Sidra by Studio Dtail


Front Elevation of Sidra by Studio Dtail


Rear Elevation of Sidra by Studio Dtail


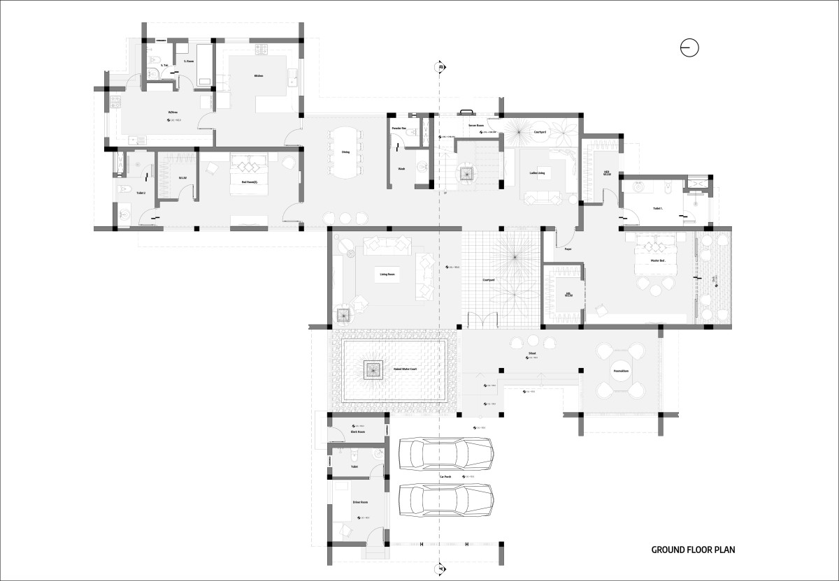
Ground Floor Plan of Sidra by Studio Dtail


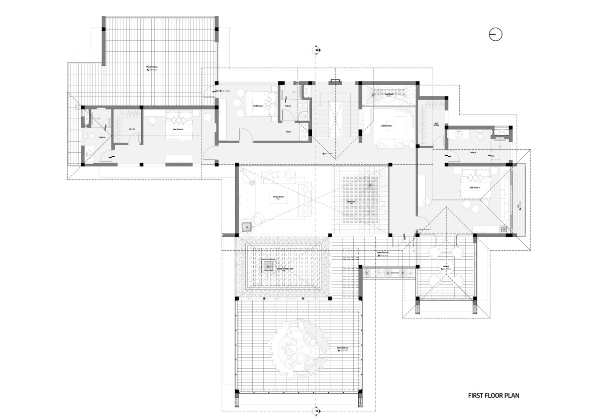
First Floor Plan of Sidra by Studio Dtail


Section of Sidra by Studio Dtail


Site Plan of Sidra by Studio Dtail




Most Visited Articles




Subscribe

Get our latest article and updates delivered straight to your inbox.