Interior

21-07-2023

Photographer : Ishita Sitwala

Text provided by Vipul Lunia

The Sky House, with a scenic view of river Tapi on the southern side, is located on the 11th & 12th floor of a high-rise structure in a residential neighborhood in the city of Surat. Designed by Yellow Studios, the apartment majorly done in Natural Materials with contemporary detailing and Nordic colour palette, celebrates the Client’s love for luxe, elegance & life and also caters to the family’s desire of a cozy bubble for a home. 

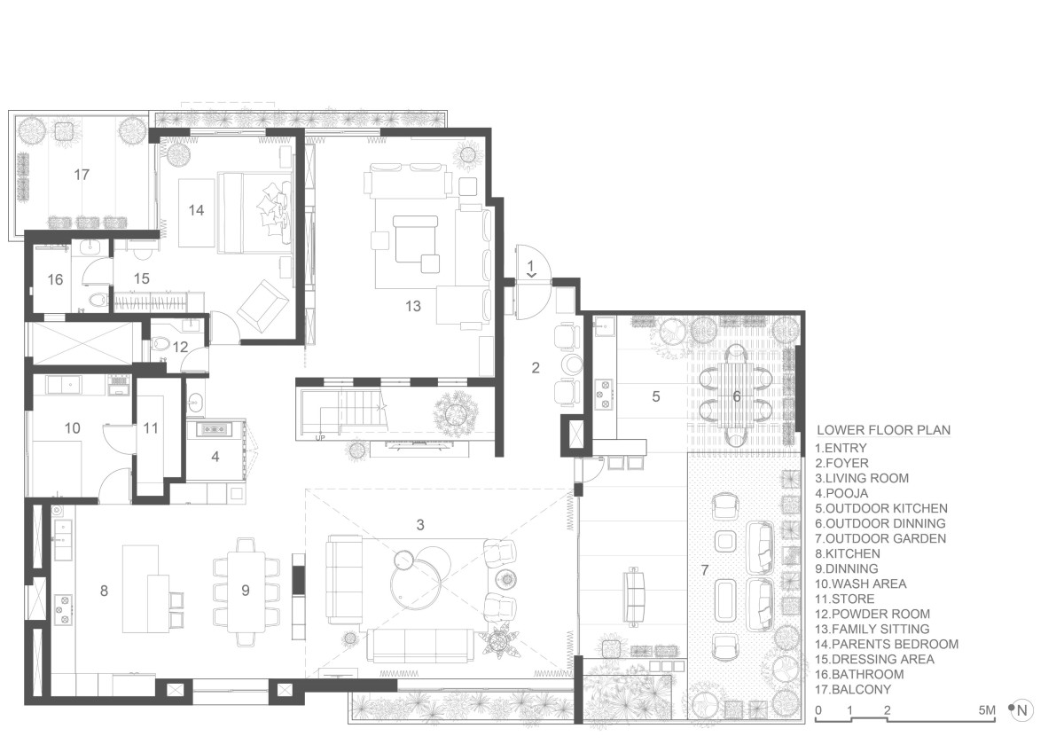
The 6200 sq. ft penthouse with three sides open, was a design opportunity to bring in natural light to all liveable spaces and resulting Living room with a neutral background palette, looks stunning in the flooding sunlight through the exterior glass walls. This double heighted space is adorned with various furniture pieces like russet tan leather sofa accompanied by two lounge saddle tan leather chairs, a chic chandelier, a TV unit beneath the stairs, giving the space a wholesome feel. Here the stairs were to blend amidst the living space in such a manner as if it was an integral part of it, which was achieved by using a linear design along the straight lines of the space and working with glass & metal design for the desired result. 

Central art space, developed from metal and wood, acts as a divider to separate Kitchen & Dining area from the living room, while allowing movement between the spaces from either side, making it a very clever and functional feature for a family who loves to host guests. The whole idea for this divider panel, which also reflects the client’s love for art collection, came from a column which was in the way for a seamless design for the lower level.

Family’s recreational area is the semi-private Family sitting which as Azaz of Yellow Studios says, “was designed as a buffer between the private and open spaces of the home. The area, initially walled up, was later harmonized with the living room by replacing the walls with the alternating wood-glass panels.” A red leather sectional sofa against a winter Peach wall, creates a circle of warmth and tranquil while the art installed encrusted TV panel draws the focus. 

Located on the top floors of the building, the terraces on both levels command an exhilarating view of the charming city. With green pockets and lattice shade over the patio juxtaposing with the bar stools and the ultra-cozy designer chairs, the terrace garden designed factoring the shadow pattern, is perfect space for unwinding. 

Lower Level plays on the open plan layout, seamlessly connecting living room, kitchen & dining area and family sitting, with the only exception of the parents’ bedroom. Parents’ bedroom embodies the Nordic color palette and presents the most humble of its forms. Customized as per the needs of the head couple of the family, it is minimalistic in terms of furniture and art deco. 

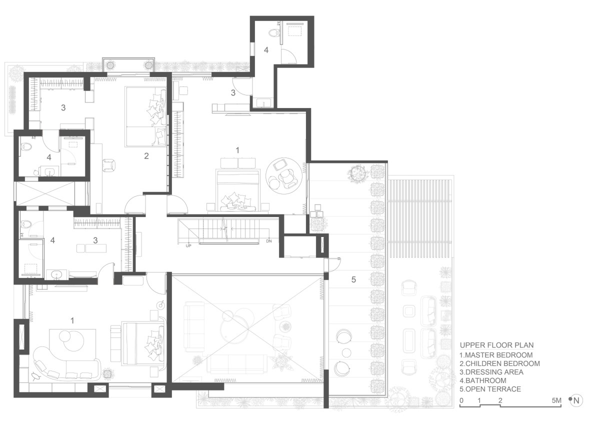
Upper Floor comprises of the two master bedrooms and a children’s room. The west facing bedroom featuring an upholstered Divan bed against the backdrop of a travertine stone wall, with two wooden side tables, an upholstered bed ottoman and hanging lights, exudes an earthy yet glitzy vibe. While the greenish blue velvet sectional sofa and poufs pitted against a dark-oak wooden garbed wall in the lounge area, enlivens the place and makes it perfect for a private hosting. 

The East facing bedroom, which opens up to the common terrace, nestles the sage green leather upholstered chic Divan, two wooden side tables, pine green Ottomans in analogous color scheme with the bed, red leather lounge chair adjacent to the clear glass wall, amongst the pastel walls. Art wall by Rogan design, animates this perfect hide-out.

The children’s room done majorly in pastel colors, has brightly yellow painted sections on the wall which gives the room a very energetic vibe. Space is such designed so as to accommodate the play area, study area, sleep area, achievement wall and yet not look cluttered. A very colorful & lively painted wardrobe and Art wall by Rogan design, renders the space with a touch of innocence. 

Surat,Gujarat,India

Architects : Yellow Studios
Area : 6200 sq. ft.
Year of Completion : 2020
Website : https://www.instagram.com/yellow_studios/


Most Visited Articles




Subscribe

Get our latest article and updates delivered straight to your inbox.