Architecture

19-08-2024

Photographer : Fabian Charuau, Bharath Ramamrutham

Rajasthan is synonymous with sandstone as a building material but sadly, over the last few decades, this material has been reduced to a 'cladding 'medium and its potential as a robust and sustainable structural element has not been explored. 

The house in Jaipur presented them with an opportunity to explore and evolve a method of building that has been prevalent in traditional buildings for centuries. They laid out a simple brief: no material other than stone should be used for construction.

The traditional method of load bearing construction relied on the impermeable thickness of walls. This was reengineered to develop a hollow interlocking structural wall system that creates a more effective thermal break, provides space to integrate services within the wall cavity, and effectively reduces the material consumption by 30%.
 
Floor systems alternate between vaults and large single span stone pieces. Every building element from the basement raft/retaining walls/lintels/door and window jambs/reveals/stairs/screens etc. has been made from stone blocks, either from the quarry (superstructure elements) or excavated from the site (substructure elements). 

Jaipur,Rajasthan,India

Architects : Malik Architecture
Area : 8000 sq. ft.
Year of Completion : 2019
Website : https://www.instagram.com/malik_architecture/

Exterior view of Stone House by Malik Architecture


Driveway of Stone House by Malik Architecture

The house is arranged around a narrow courtyard that extends into even narrower slits and fissures as it weaves its way through the house, essentially drawing on the proportions of voids and interstitial spaces of traditional dwellings as a method to counter the effect of the harsh summer sun. Large front and rear facing glazing is shaded by deep overhangs and operable, hand-cut stone screens to modulate light, privacy, and views. 

Hard sandstone ( Jodhpur stone) is quarried 45 mins away from the site. At their request, the quarry foreman reverted to the “splitting” stone technique using traditional stonemasonry tools instead of the high-yield gangsaw extraction that is machine intensive and eliminates the natural stone grain. Splitting the stone mobilizes the human touch, limits the processing, and retains the natural Earth imprint of the stone. 


Entrance passage of Stone House by Malik Architecture


Entrance of Stone House by Malik Architecture


Living room of Stone House by Malik Architecture

Stonemasons from the surrounding villages have worked stone with their hands for generations. The accumulated knowledge of the past along with the theory of Engineering created an interesting and often contradictory overlap of intelligences that was most often resolved by the Head Stonemason, including identifying the optimal size of stone that could be carried and laid by 2 masons with minimal mechanical assistance (unlike brick, there is no Standard stone size). 

The purview of Craft, often limited to embellishment, artifice, and object, was expanded to the building scale. Easily consumable symbology is supplanted by the primal and essential deployment of material resource and craft in a space that is both Ancient and Contemporary.  

Approximately 5-7*C variation can be observed between the exterior and interior. This is due to the thermal mass of material and the “cavity” construction. A minimal amount of steel such as tie-rods and shear pins reinforce the stone for seismic performance. Lime mortar is used only to seal the exterior joints. 


Dining of Stone House by Malik Architecture


View from staircase of Stone House by Malik Architecture

Prior to finalizing this construction method, and owing to a limited budget, a detailed comparison between the “All Stone” method, “Reinforced Stone”, and “Conventional” Structure (i.e. R.C.C. frame, Civil infill, exterior stone cladding, internal plaster, and paint) was prepared. The proximity of the material and skilled stonemasons, reducing the number of agencies on site, etc, it was concluded that building in stone was actually cheaper than the conventional alternative.

Time and cost was reduced due to the method of quarrying, which also gave the project a balance between natural (Earth imprint) and smooth handmade finishes.

By focusing on a single building material that requires negligible processing between the quarry and its final application on site, and has a low embodied energy; the usage of other higher impact materials has been reduced or eliminated from the project. 


Lobby of Stone House by Malik Architecture


Lounge of Stone House by Malik Architecture


Courtyard view of Stone House by Malik Architecture


Outdoor lobby of Stone House by Malik Architecture


Terrace of Stone House by Malik Architecture


Detailed shot of wall of Stone House by Malik Architecture


Detailed shot of foldable window of Stone House by Malik Architecture


South Elevation of Stone House by Malik Architecture


North Elevation of Stone House by Malik Architecture


East Elevation of Stone House by Malik Architecture


West Elevation of Stone House by Malik Architecture


Lower Ground Floor Plan of Stone House by Malik Architecture


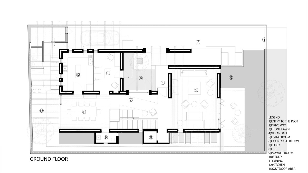
Upper Ground Floor of Stone House by Malik Architecture


First Floor Plan of Stone House by Malik Architecture


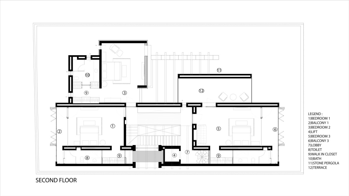
Second Floor Plan of Stone House by Malik Architecture




Most Visited Articles




Subscribe

Get our latest article and updates delivered straight to your inbox.