Symphony is designed to be an architect’s home office, accommodate his studio and all other allied facilities. While it is perceived as an architect’s expression of the integration geometric forms, materials, textures and colors. This expression in a tight urban scenario involves various challenges including, an effective utilization of the limited space, while not letting people realize the limitations on the land. In the tight urban context of Noida, this a 112 sq m plot with dimensions of 7.5mX15m in a row housing society. 

With the two-side abutting building and a strict regulation on setback front and back, what was left to play with, was creating an elevation to portray his design principles and artistic ideologies, while carving out a home like interiors. The building is designed to be open, lit and airy, while taking maximum light and air from the two open sides of the plot. Various functions are zoned on different horizontal and vertical levels, as to increasing privacy, as you go deeper and higher. A double heighted cutout and porous steel staircase, along with a harmonious interplay of light and shadow, create an illusion of a bigger space volume.

The combination of materials like concrete, steel, glass and clay are harmoniously blended to put in to their best use. The architect who loves to play with colors have chosen Cyan as the color for his building and have explored the various shades and combinations of cyan to give an artistic imprint to the building. Various geometric forms of squares, rectangles, arches and triangles have been explored in the design, yet to bring in a balance, rhythm and unity. Reinstating his beliefs, this material palette along with the forms and colors create a visual melody, and thus a symphony. 

Noida,Uttar Pradesh,India

Architects : Myspace Architects
Area : 4090 sq. ft.
Year of Completion : 2025
Website : https://www.instagram.com/myspace_architects/

Exterior view of Symphony - An Architect’s Expression by Myspace Architects


Entrance of Symphony - An Architect’s Expression by Myspace Architects


Entrance of Symphony - An Architect’s Expression by Myspace Architects


Open to sky courtyard of Symphony - An Architect’s Expression by Myspace Architects


Lounge of Symphony - An Architect’s Expression by Myspace Architects


Staircase of Symphony - An Architect’s Expression by Myspace Architects

Every art form holds the potential to inspire another. In this project, the architect draws from the harmony of a perfectly orchestrated musical symphony to compose a built form that sings within a tight urban context. The façade becomes a visual sonata —shaped by consciously curated proportions, a distinctive palette of cool tones against warm terracotta, and a dynamic interplay of materials.

Curved profiles, rhythmic balcony lines, and the punctuated screen wall together create a fluid narrative — one that resonates with both movement and pause, echoing the cadence of music. The gentle sweep of the edges and the flowing metalwork further add different layers to reinforce this abstract musicality, allowing the elevation to transcend utility and evoke an emotion of melody.

This is not merely a structure; we call it as a composition — a symphony in architecture.


Staircase of Symphony - An Architect’s Expression by Myspace Architects


Staircase view of Symphony - An Architect’s Expression by Myspace Architects


Workspace of Symphony - An Architect’s Expression by Myspace Architects


Second floor lounge area of Symphony - An Architect’s Expression by Myspace Architects


Balcony of Symphony - An Architect’s Expression by Myspace Architects


Balcony of Symphony - An Architect’s Expression by Myspace Architects


Dusk light exterior view of Symphony - An Architect’s Expression by Myspace Architects


Dusk light exterior view of Symphony - An Architect’s Expression by Myspace Architects


Dusk light exterior view of Symphony - An Architect’s Expression by Myspace Architects


Elevation of Symphony - An Architect’s Expression by Myspace Architects


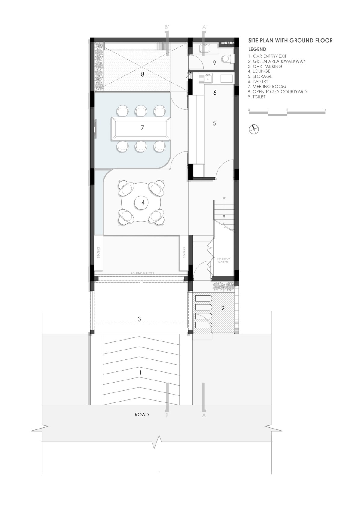
Site Plan of Symphony - An Architect’s Expression by Myspace Architects


First Floor Plan of Symphony - An Architect’s Expression by Myspace Architects


Second Floor Plan of Symphony - An Architect’s Expression by Myspace Architects


Third Floor Plan of Symphony - An Architect’s Expression by Myspace Architects


Terrace Plan of Symphony - An Architect’s Expression by Myspace Architects


Section AA of Symphony - An Architect’s Expression by Myspace Architects


Section BB of Symphony - An Architect’s Expression by Myspace Architects


Staircase detail of Symphony - An Architect’s Expression by Myspace Architects




Most Visited Articles




Subscribe

Get our latest article and updates delivered straight to your inbox.