Interior

08-04-2023

Photographer : Suryan and Dang

Terra Interiors, manufacturer and retailer of bespoke millwork and modular furniture, approached The Picturesque Studio to design their brand new retail outlet and experience centre in Plaza Mall, Gurugram. The 5200 square feet showroom is designed to provide customers with an exclusive experience of the range of kitchens and wardrobes the brand offers. The space is intended to display a wide variety of design settings without causing visual overload for the visitor. 

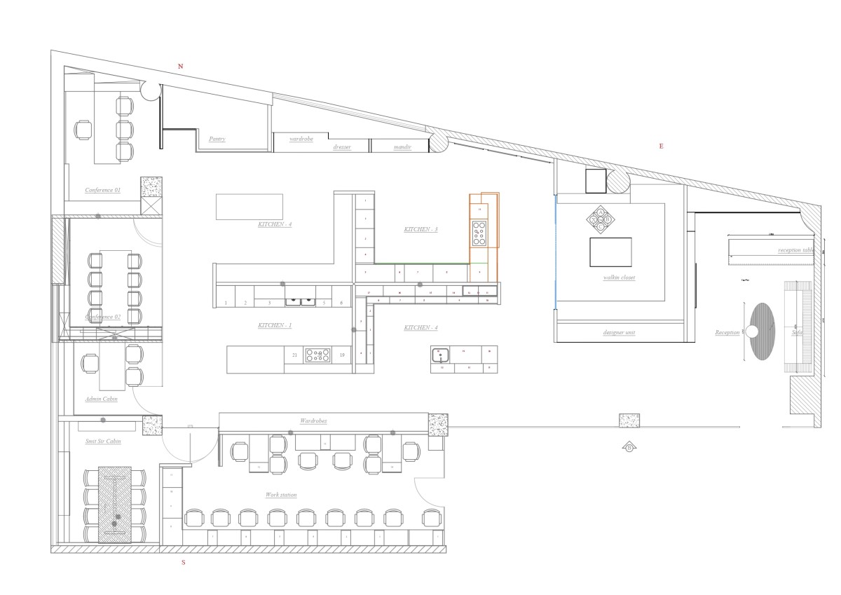
As the outlet is located inside a mall, wooden slats were installed in front of the expansive glass displays overlooking the mall atrium to create optimum privacy. These slats are positioned diagonally, such that they conceal the showroom behind, while at the right angle, also display the engraved brand name. The experience centre is split into three major zones: the reception area, the main showroom, and workspaces for the staff. 

Upon entering, one is greeted by a large reception clad in warm wood veneer inlaid with gold metal inserts. The extensively veneered walls, display shelf, and reception desk help establish the design intent of the showroom. A full-height, expansive console stands in a wide hallway to the left, in a palette that provides a glimpse of the materials used prominently throughout the showroom. The hallway leads the customers to the first of the four kitchen exhibits, designed with an industrial aesthetic. A row of light-coloured wall-mounted cabinets above the black stone countertops are gloss-finished, balancing out the base cabinets clad in dark, textured Laminam.

Further ahead, the second kitchen is finished in a blend of modern and traditional looks. A high-gloss wood-finished countertop is layered under a white stone slab, lending dimension to the island and breaking away from the streamlined, black tinted glass look of the rest of the kitchen. Around the corner, the third kitchen stands in a Neoclassical style with choice contemporary touches. Creamy white stone countertops are set against a wall of navy blue cabinets and fluted glass shutters, framed in sleek gold profiles that provide the space with a bold, European look. The fourth kitchen is a minimalist space, with grey shutters and tinted glass lending it a masculine sentimentality. 

Each kitchen has been designed to feel less like a display and more like a home, to provide customers with a premium experience. While standing within one kitchen, other kitchens are out of the customer’s line of sight, allowing them to be immersed in each style without distractions. The kitchen islands are used to the advantage of the designers for this purpose. While one is realised as a cooking island with the help of a cooktop, a second one contains a sink, and two more are breakfast counters. Each space gives the customer an opportunity to envision their own home within the fabric of the showroom. 

A fully functional walk-in closet is also integrated with the experience centre—resplendent in dark wood tones and complete with a storage-cum-display island. This space has functionality at the forefront of its design, with shelves of various sizes, combinations of open and closed storage units, as well as a full length mirror. A sandwiched glass partition isolates the wardrobe from the rest of the showroom, letting clients visualise how it could be easily integrated into their home. 

Though the core idea of this retail space and experience centre is meant for the brand to display their products, it does more than just that. It is also a tool to showcase the use of the newest technology in the market. Automatic sensors, soft close hinges, sliding shelves, and a plethora of other innovative technology is utilised while curating the various corners. Most importantly, sufficient space is provided to swap out fittings for the latest ones as and when required. 

A conference room, multiple workstations and private meeting rooms make up the back half of the showroom, where the staff can conduct meetings with the clients and support them with informed decision-making. The workspaces function independent of the retail space and are designed in a way to display the brand’s production skills. 

With the integration of the workspaces into the Terra Interiors Experience Centre, the design brings multiple operations of the brand under a single roof, facilitating an important aspect of customer relations—helping them better ideate their own homes.

Gurgaon,Haryana,India

Architects : The Picturesque Studio
Area : 5,200 sq.ft.
Year of Completion : 2022
Website : https://www.instagram.com/the.picturesque.studio/?hl=en


Most Visited Articles




Subscribe

Get our latest article and updates delivered straight to your inbox.