Architecture

02-08-2021

Photographer : Dhrupad Shukla

Sitting in a traditional town scale context of ‘Meta’, the bungalow belongs to a family of diamond merchant who migrated to Surat city for business expansion. While the family roots are still connected with native town, our brief was to design a house on the ancestral land, for generations to come. Design concerns evolved around constant quest to translate traditional - vernacular concepts into contemporary vocabulary.
 
The challenge was an irregular shaped land with shared walls on three sides and an open front on the West. Hence the intention was to carve out the built and keep it as porous as possible providing a constant flow of light and ventilation. Also the façade is harmoniously treated with surrounding built that express continuation with traditional visuals of the place; allowing it to merge well in the streetscape. The small squares in repetition are borrowed from a very interesting seen pattern on the parapets of the surrounding houses. This same language of intricacy is crafted in metal grills at openings; creating an interesting play of light and shade on surfaces, also ensuring safety.

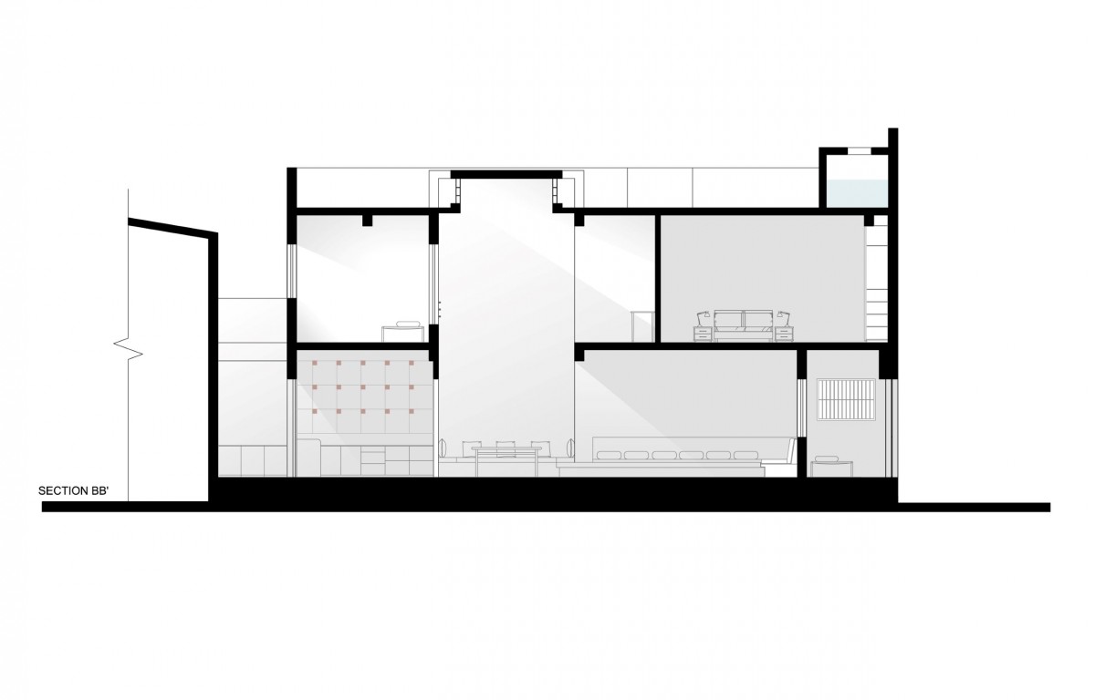
Setting in motion, the verandah in front is a continuation of traditional ‘Osri’ that maintains the hierarchy of open – semi-open – enclosed space. Living room is designed with a minimal color palette that complements the inbuilt furniture with a feel of traditional Indian seating. 

Surat, Gujarat, India

Architects : D’WELL
Area : 2500 sq ft
Year of Completion : 2020
Website : www.instagram.com/d_welldesign/

Traditional houses follow central courtyard typology in the hot and dry climate of Banaskantha district. The central dining space is developed volumetrically as extended living space with openings that keep entire house naturally lit and ventilated. The bridge connects two rooms on upper floor and looks over the double heighted space; rejoicing the wash of skylight while providing vertical connectivity. 


The spaces are comparatively larger in scale in order to accommodate a large group of people on occasional gatherings and allow flexibility of multipurpose usage. This brings back an opportunity of co-living that seems to be diluting in current times of separate designated spaces for every individual. 
To celebrate the roots of family business, a dedicated corner is planned as an accountant’s place. This ancestral arrangement holds a true sentimental value to the family. 


An open light well is carved out at the east corner of the plot to amplify cross ventilation of the house further illuminating the bedrooms with natural light. Similarly the kitchen is extended into semi-open wash area, maintaining porosity of the built envelope. 


Due to dry climate and a constant scarcity of water, traditionally a room was dedicated to store water in brass vessels. These ancestral brass vessels are placed as ornamentation in different corners of the house, attaching a sentimental value for the generations to come.




Most Visited Articles




Subscribe

Get our latest article and updates delivered straight to your inbox.