Architecture

13-03-2024

Photographer : Hemant Patil

A series of three houses intending to redefine traditional house forms, more or less from similar era aligning to a contemporary wish-list were being envisioned simultaneously. The first one set in an open rural context resembling ‘gadi’(land fortress) was completed in 2020, second project wrapped in a tight urban situation is being addressed here and the third one that grows sensitively with succeeding generations is under construction. 

The tale begins with division of half an acre of ancestral land among four relative families willing to build a cluster of their individual dwelling, located in Pune, Maharashtra. Apparently, due to variable mindsets only one of the family, consisting of old parents living with two sons and their respective families, who had to settle for an odd shaped plot, agreed to experiment with us. A modern breathable abode with a traditional setting of generations living under one roof in the given dense urban fabric was a challenge. To ensure the most relevant response we drew inspiration from regional houses called ‘wadas’, especially the once situated in towns flourishing as tightly knit neighbourhoods.  

Considering the joint family, zoning of personal and shared spaces is done with subtle transitions, such that it divides volume of the house both horizontally and vertically. These resemble the simplicity of interconnections profoundly seen in crunched spaces of a traditional urban house form. 

Pimpri- Chinchwad,Maharashtra,India

Architects : PMA madhushala
Area : 5167 sq. ft.
Year of Completion : 2023
Website : https://www.instagram.com/pma.madhushala/

Living room of The Breathing Quadrant by PMA madhushala


Living room of The Breathing Quadrant by PMA madhushala

Adhering to a singular ‘unit’, derived as per comfortable functional space integrated with appropriate proportions and vastu regulations, linear positioning of rooms is done as per layers of privacy. Following the present-day notion, family aspired to have separate bedrooms with attached toilets which was leading to an apartment-like structure in this limited buildable space. So, to attain humanistic proportions, we introduced the idea of giving shared toilets on each floor with provision for common laundry cupboard and janitor closet. Thereby, germinating a design where the common areas are pronounced without compromising on the functional sizes of rooms at the same time placing the relished space for activities like gym and sauna on the topmost floor.

Curtailing the excess needs and hence their construction area on each floor provided us an opportunity to make a porous mass of three floors raised up on pilotis, bringing in light amidst the crunched surroundings. It opened up lower space for parking that can be transformed to host community functions, directing us to adopt RCC construction system that got inlaid as a grid of columns and beams. It was broken organically wherever required to make it seamless from inside. 


Dining of The Breathing Quadrant by PMA madhushala


Courtyard of The Breathing Quadrant by PMA madhushala


Courtyard of The Breathing Quadrant by PMA madhushala


Kitchen of The Breathing Quadrant by PMA madhushala


Ceiling view of The Breathing Quadrant by PMA madhushala


Ceiling view of The Breathing Quadrant by PMA madhushala


First floor view of The Breathing Quadrant by PMA madhushala


First floor view of The Breathing Quadrant by PMA madhushala


Entry to bedroom of The Breathing Quadrant by PMA madhushala


Master Bedroom of The Breathing Quadrant by PMA madhushala

Crafting the achieved enclosures into rhythmic undulations henceforth became a medium to cater variable experiences. The core with an oculus in courtyard bringing the sun inside, openings in north-south direction forming a venture passage for southern winds, alongside the interplay of curved wall surfaces with cuboidal cantilevered volumes and multilingual connectors infuses life.

For instance, in regional houses the play of transitions occurring unexpectedly in-between the floors evoke a sense of discovery making it intriguing. Inheriting the character here as an assembly of ramps, staircases and their extended landings makes it omnidirectional. Movement on these cascaded stone slabs, complemented by suspended metal treads while gazing at the quarter slice brick finishes with relief textures on concrete patterns fills us with joy. This juxtaposition opens up avenues to celebrate the vibrancy of multiple age groups living together. The vault projecting over 8 feet walls in private spaces on top floor bestows upon the magnitude of space inside and humble look from outside. 

Besides that, an entrance foyer called ‘aangan’ in the east with raised garden where first floor feels like ground floor embraces the house periphery as seen in the traditional houses. Integration of nature, orientation of the house, volumetric interplay to create stack effect and the water body for passive cooling helps in self-sustenance. 

Moreover, the external envelope is an interpretation of walls seen in traditional urban house forms whose thickness yields for storage or planter, facilitating thermal insulation as well. Brick details of the fenestrations avails it a language creating a sculpture ‘in the round’. 


Bedroom of The Breathing Quadrant by PMA madhushala


Master Bedroom 2 of The Breathing Quadrant by PMA madhushala


Second floor view of The Breathing Quadrant by PMA madhushala


View from top floor of The Breathing Quadrant by PMA madhushala


Washroom of The Breathing Quadrant by PMA madhushala


Entrance foyer of The Breathing Quadrant by PMA madhushala


Entrance of The Breathing Quadrant by PMA madhushala


Exterior view of The Breathing Quadrant by PMA madhushala

The collage of brick and stone defines a distinct visual vocabulary for architecture in this region. This aesthetics of exposed rawness on the surfaces existing traditional urban houses is captivating. An attempt to translate that rooted feature resulted in an experiment with poured man-made stone ‘concrete’ at the sturdy base crowned with bricks stringed across like filaments. Metaphorically, it strikes a balance and reinforces our belief in the synergy of materials which leads to an evolution making it more appealing as it weathers down. Thus, following a mystical idea of ‘duality’ traversing across all the three projects in this series. 

Putting it in a nutshell - nestled in the grooves of traditional wisdom, wrapped in a heaving neighbourhood; it is an abode featuring brotherhood.


Exterior view of The Breathing Quadrant by PMA madhushala


Parking area of The Breathing Quadrant by PMA madhushala


Detailed shot of exterior wall of The Breathing Quadrant by PMA madhushala


Detailed shot of exterior wall of The Breathing Quadrant by PMA madhushala


Parking Plan of The Breathing Quadrant by PMA madhushala


Ground Floor Plan of The Breathing Quadrant by PMA madhushala


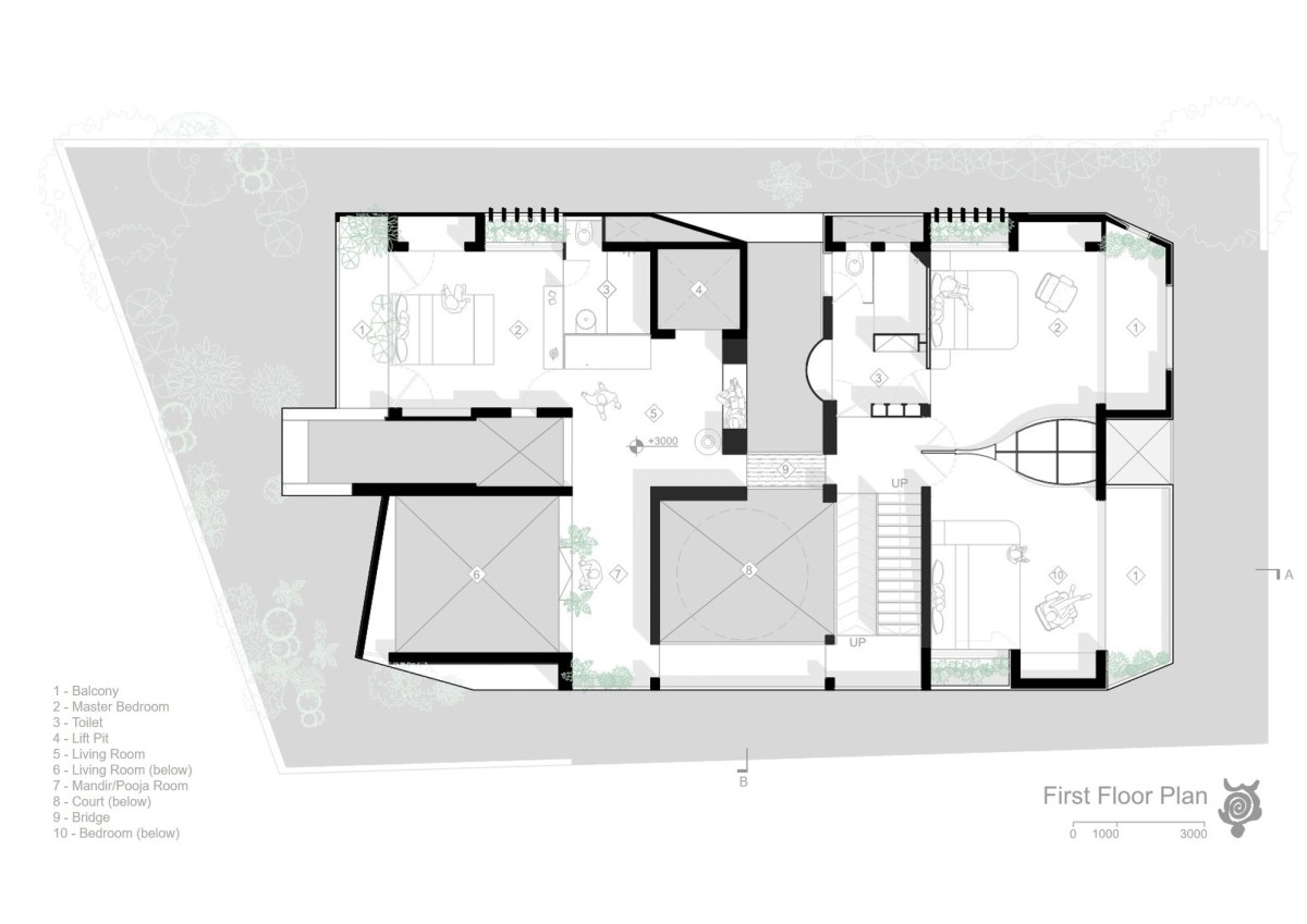
First Floor Plan of The Breathing Quadrant by PMA madhushala


Second Floor Plan of The Breathing Quadrant by PMA madhushala


Terrace Floor Plan of The Breathing Quadrant by PMA madhushala


Section1 of The Breathing Quadrant by PMA madhushala


Section2 of The Breathing Quadrant by PMA madhushala




Most Visited Articles




Subscribe

Get our latest article and updates delivered straight to your inbox.