The Courtyard House in Bhilai, Chhattisgarh, India, stands as a testament to contemporary design that seamlessly blends with the local context while prioritizing the values of family and togetherness. This architectural gem spans 8000 square feet of super built-up construction on a 6000 square feet double corner plot. Completed with meticulous attention to detail, it exemplifies a harmonious fusion of aesthetics and functionality.

The project's genesis lies in the concept of creating two separate yet interconnected homes for two brothers. The central courtyard, a key element of the design, serves as the heart of the project, uniting the two dwellings and symbolizing the deep bond between the two families.

The clients, two brothers from a joint family, articulated their vision for distinct homes while preserving their strong familial connection. Thus, the design aimed to create a series of living pavilions surrounding the central courtyard, facilitating seamless interactions between the two households. To shield the interiors from the intense summer sun while ensuring natural ventilation, careful consideration was given to the positioning of openings.

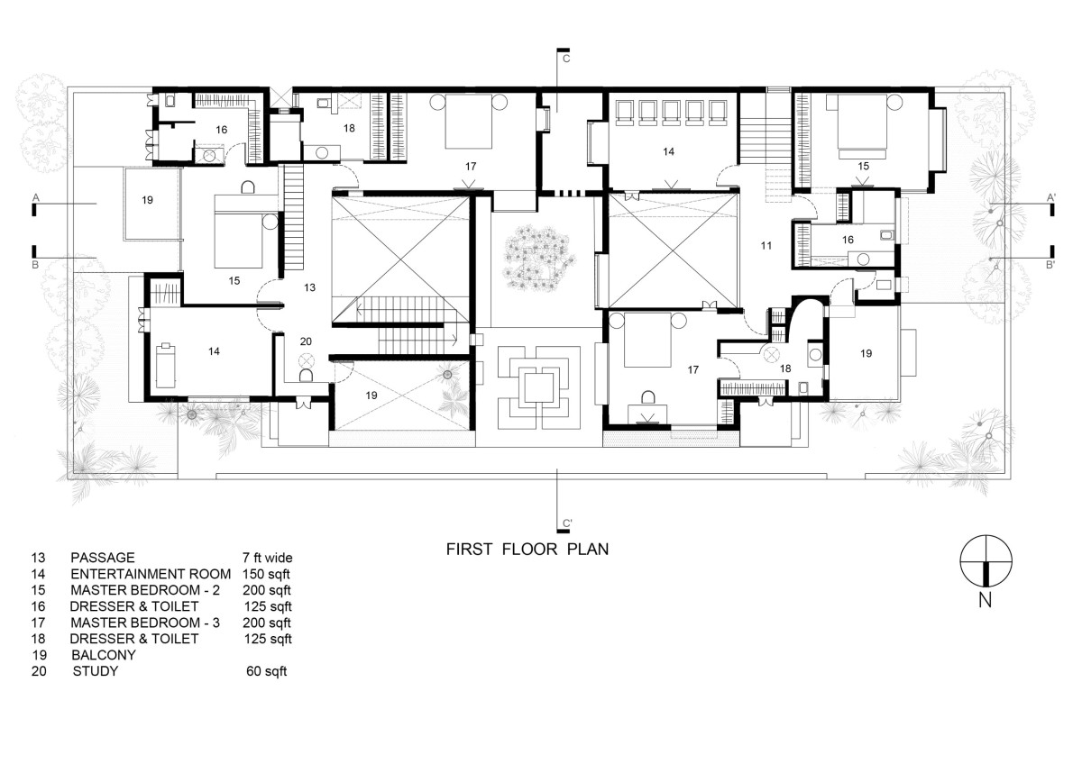
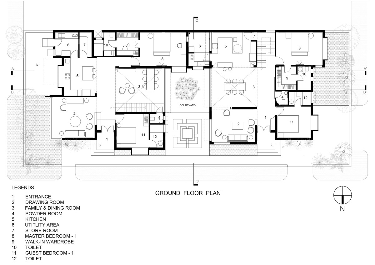
Each individual home was meticulously planned to cater to the needs of a modern family. Both homes feature separate formal drawing areas, informal family spaces with living and dining sections connected to open kitchens. The kitchen areas extend into a store room and a utility mud kitchen, which leads to washing and parking areas with back entrances for both homes.

Bhilai,Chhattisgarh,India

Architects : Atelier Varun Goyal
Area : 8000 sq.ft.
Year of Completion : 2022
Website : https://www.instagram.com/ateliervarungoyal/

Drawing Room of The Courtyard House by Atelier Varun Goyal

The functional layout comprises three master bedrooms with dressers, one guest room, and one kid's room, all equipped with attached washrooms. The design language is defined by the interplay of geometry and materials, creating a harmonious fusion of form and function. The result is a contemporary living environment that fosters a sense of togetherness and connection between the two families while allowing for individual privacy and independence.

Approaching The Courtyard House, its double corner positioning immediately commands attention. The carefully designed elevation showcases clean lines and harmonious window arrangements, providing a glimpse into the contemporary and contextual design that awaits within. The lush front garden, adorned with diverse plant varieties and towering old trees, greets visitors with captivating dappled shadows, hinting at the tranquil atmosphere inside. As one ascends the meticulously crafted steps, they are guided towards the entrance door, symbolizing the journey into the heart of the home.


Drawing Room of The Courtyard House by Atelier Varun Goyal


Detailed shot of Drawing room furnitures of The Courtyard House by Atelier Varun Goyal


Dining of The Courtyard House by Atelier Varun Goyal

Upon entering, a foyer with white marble flooring sets the stage for artistic aesthetics, while the living area's black-painted walls and large windows create an intimate ambiance with views of lush greenery. To the left, the formal drawing room is further connected with the garden, while on the left side is the living room, featuring family seating and a dining table. The minimalist charm of this family cum dining space invites gatherings, seamlessly merging with an open-concept kitchen.

Passing through the dining area, the central courtyard unfolds—an oasis of tranquility connecting the two homes and intertwining their stories. The courtyard serves as a shared space embodying togetherness, symbolizing familial bonds, and contributing to the overall sense of unity. Venturing into private retreats, bedrooms coexist with spacious dressers and elegant washrooms, embodying comfort and luxury. Attached washrooms feature opulent Indian marble cladding, complemented by teak wood accents and quirky handles.


Kitchen of The Courtyard House by Atelier Varun Goyal

The essence of individuality and privacy is preserved through thoughtful design, with distinct main and back entrances for each home. Main entrances beckon exploration, offering glimpses into distinctive character, while back entrances connect utility areas and parking spaces, emphasizing practicality and convenience. Dedicated service entrances discreetly accommodate staff movement.

The journey through The Courtyard House encapsulates unity, transcending physical boundaries. Each step unveils a design philosophy rooted in aesthetics, functionality, and a deep connection to the environment. The central courtyard unites two homes through a shared space embodying togetherness, while interstitial spaces contribute to the sense of unity and play of light and shadow.


Connection of various spaces in the house of The Courtyard House by Atelier Varun Goyal

The Courtyard House project masterfully stays true to the architectural trend of embracing interconnected spaces and fostering unity within family homes. Its central courtyard, inspired by traditional stepwells, transforms into a waterbody during summers and a bonfire place during winters, adding versatility and seasonal charm to the space. Moreover, the design thoughtfully integrates interstitial spaces like corridors, staircases, and verandahs, enhancing the overall ambiance and providing an inviting living environment.

The project's theme can be summarized as "Contemporary and Contextual." It blends modern aesthetics with the local context, prioritizing movement patterns and connectivity between the two homes while ensuring privacy for each family. The material selection revolves around locally available, earthy, and natural materials, contributing to sustainability and complementing the environment. The design narrative, known as the "Story in Black and White," features a minimalist and monochromatic color palette that adds elegance and sophistication, creating a timeless backdrop for architectural elements and furnishings. Fenestration and skylights are thoughtfully placed to maximize natural light, minimize the need for artificial lighting, and promote energy efficiency. The Courtyard House embodies contemporary living with a strong sense of contextual design. It showcases minimalism, a seamless connection between living spaces and kitchens through the central courtyard, and a strong connection with nature through strategically placed windows. The design's versatility is evident in the blend of contemporary and traditional materials, promoting cultural values and heritage.

The color and material palette of The Courtyard House is a masterful play of contemporary and minimalist aesthetics. The integration of black and white tones, along with the strategic use of textures, reflects a contemporary design approach. The clean lines and absence of excessive ornamentation align with minimalism, emphasizing a less-is-more philosophy. This aesthetic choice emphasizes simplicity, functionality, and a focus on essential elements.


Black Staricase of The Courtyard House by Atelier Varun Goyal

The black and white color palette epitomizes minimalism, creating a timeless and serene backdrop. This choice not only provides a cohesive visual identity but also allows the interplay of light and shadow to take center stage. The usage of white and black local marbles, along with terrazzo flooring, underscores the contemporary feel while also introducing textural richness.

The blend of materials, such as reclaimed teak wood, Indian marble, and terrazzo, reflects a balanced mix of tradition and modernity. While contemporary design often features sleek and modern materials, the incorporation of reclaimed teak wood adds a layer of history and warmth. This balanced mix of materials bridges the gap between the past and the present, creating a nuanced and inviting interior space.


Black Staricase of The Courtyard House by Atelier Varun Goyal


White staircase of The Courtyard House by Atelier Varun Goyal



The study in first floor of The Courtyard House by Atelier Varun Goyal



Master Bedroom of The Courtyard House by Atelier Varun Goyal

The lighting elements in The Courtyard House add a unique touch of elegance to the contemporary design. Art deco lights and lamps introduce a vintage flair while still aligning with the minimalist design ethos. These lighting elements create an intriguing contrast against the backdrop of black and white, adding depth and character to the spaces.

The custom mid-century furniture collection curated by Varun Goyal, the Principal Architect, further contributes to the space's uniqueness. These pieces emphasize individuality within the minimalist framework, showcasing a personalized design approach that values both aesthetics and functionality. The Courtyard House's design philosophy centers around minimalism and contemporary aesthetics, with an emphasis on thoughtful space planning. The signature style of Atelier Varun Goyal is showcased in the seamless connection between the living spaces and kitchens of both homes through the central courtyard. This design feature fosters interaction and togetherness among family members, promoting an open and harmonious atmosphere within the interconnected spaces.


Master bedroom 2 of The Courtyard House by Atelier Varun Goyal


Bay Windows of The Courtyard House by Atelier Varun Goyal


Office space of The Courtyard House by Atelier Varun Goyal

The design concept for The Courtyard House was driven by the idea of creating a contemporary living environment rooted in aesthetics, functionality, and a deep connection to the environment. While the design maintains a cohesive theme of minimalism and contemporary aesthetics throughout, it also incorporates various decor ideas that enrich the space without overwhelming it. The blend of black and white color palettes, the strategic use of textures, the integration of reclaimed teak wood, and the selection of art deco lighting and mid-century furniture all contribute to a space that is visually captivating, culturally resonant, and timeless in its appeal.

The Courtyard House embraces several sustainable and green features, embodying its commitment to social, economic, and environmental responsibility:
1. Courtyard as a Sustainable Epicenter: The central courtyard serves as a sustainable epicenter, promoting natural interactions and family bonding. It reduces the need for additional indoor entertainment and cooling while encouraging outdoor activities and fostering a strong sense of community.

2. Daylight Optimization: The design prioritizes the usage of natural daylight through carefully planned windows and skylights. This strategy reduces the reliance on artificial lighting during the day, leading to energy conservation and lower electricity consumption.

3. Efficient Cross Ventilation: Maximum cross ventilation facilitates the flow of cool breezes and fresh air throughout the interior spaces. This passive cooling strategy minimizes the need for air conditioning, contributing to energy efficiency.

4. Use of Natural Materials: The project's material selection revolves around locally available, earthy, and natural materials. Indian marbles, terrazzo floors (made from marble waste), and reclaimed teak wood not only complement the surrounding environment but also have lower environmental impacts compared to synthetic alternatives.

5. White Walls and High Ceilings: The incorporation of white walls and high ceilings helps maintain a cool and pleasant indoor temperature. The white surfaces reflect heat and light, reducing the need for artificial cooling during hot weather, thus promoting energy efficiency.

6. No False Ceilings: The decision to avoid false ceilings enhances the openness of the spaces and promotes better air circulation, making the home more comfortable and eco-friendly.


Dresser Toilet of The Courtyard House by Atelier Varun Goyal


Entrance Lobby of The Courtyard House by Atelier Varun Goyal


Courtyard view of The Courtyard House by Atelier Varun Goyal


Courtyard view of The Courtyard House by Atelier Varun Goyal

By integrating these sustainable and green features, The Courtyard House not only provides a comfortable and aesthetically pleasing living environment but also demonstrates a conscious effort to reduce its ecological footprint and contribute positively to the environment.


Front elevation of The Courtyard House by Atelier Varun Goyal

The Courtyard House is a testament to the power of thoughtful design in creating a contemporary living space that prioritizes family connections, sustainability, and aesthetic appeal. It seamlessly blends modern aesthetics with the local context, fostering a sense of togetherness while offering privacy and independence to its residents. With its striking design elements, innovative use of materials, and commitment to sustainability, it stands as a shining example of architectural excellence and responsible living.


West elevation of The Courtyard House by Atelier Varun Goyal


North Elevation of The Courtyard House by Atelier Varun Goyal


East Elevation of The Courtyard House by Atelier Varun Goyal


Ground floor plan of The Courtyard House by Atelier Varun Goyal


First floor plan of The Courtyard House by Atelier Varun Goyal


Terrace floor plan of The Courtyard House by Atelier Varun Goyal


Section AA of The Courtyard House by Atelier Varun Goyal


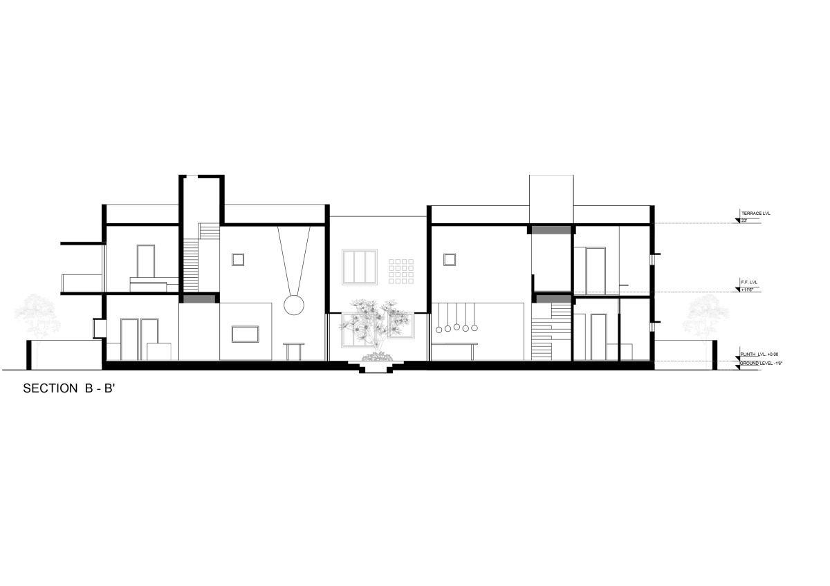
Section BB of The Courtyard House by Atelier Varun Goyal


Section CC of The Courtyard House by Atelier Varun Goyal




Most Visited Articles




Subscribe

Get our latest article and updates delivered straight to your inbox.