Botkhali,Noakhali

Architects : Rafiq Azam (SHATOTTO Architecture for green Living)
Year of Completion : 20-02-2016
Website : shatottogreen.com

Led by Ar. Rafiq Azam, SHATOTTO is a design firm that engages in creating architecture for green living. The studio firmly believes that architecture has a responsibility towards its surrounding nature as also the society that it is a part of. With their contemporary design ideas coupled with innovative materialism and a reverence for Mother Nature, Shatotto crafts inventive design solutions to complex challenges, bringing about a healthy dialogue between nature and the human society.


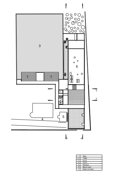
Nestled amongst the paddy fields in the village of Botkhali in Noakhali, the S.A Family Graveyard is the final resting place for the client’s parents. As his parents spent their lifetimes in this quaint village, it was chosen as the site for their ultimate abode. The client wanted to pay his respects to the precious memories of his parents as also towards those of his other relatives in the course of time.


The design of the project is a conceptual translation of the client’s emotional reflection and the appreciation for life itself. It is a symbol that respects death and emphasizes the beauty of life on this earth.


In the chaos of our daily routines, we tend to overlook the fact that this planet is a threshold between the ‘foreplay’ and ‘aftermath’ of life. The graveyard, with its concrete frame, creates a space that becomes a metaphor for this elusive journey that transcends between the earthly life and the celestial universe.


Keeping in line with Shatotto’s philosophy of creating architecture that breathes alongside nature in harmony, the graveyard is welcomes the silence that is brought in by the winds from the surrounding paddy fields. The singular bench in the graveyard, with the company of the encompassing calmness, crafts a space that allows one to contemplate in peace.


The graveyard is surrounded by farmsteads with crops that change their colour with the changing seasons, from bright green during monsoon to a deep gold in autumn. Along with the rawness of the concrete, brick, marble and ceramic, the aura of the spaces in the graveyard transform with time, ushering a novel sense of peace each time. Shatotto successfully bridges the hypothetical distance between life and death with the S.A. Family Graveyard.


Ar. Rafiq Azam is a painter by conviction and an architect by profession. Painting since the young age of seven, he began pouring plenty of water, green and light in his watercolours, an indulgence that became one with his life; that has today shaped his design philosophy. Graduating from the Architecture Dept. of Bangladesh University of Engineering and Technology (BUET), he was satisfied knowing that this profession would let him follow his passion of painting. While studying, he was faced with bad grades, although this process of learning made him realize that architecture is more intricate than he had imagined and the unfathomable passion and commitment that it called for.




Most Visited Articles




Subscribe

Get our latest article and updates delivered straight to your inbox.