Architecture

27-02-2026

Photographer : Himon Mukherjee

Text provided by Architect

Before space, there was silence. Before architecture, a wall."
A single, linear wall stands at the edge of the land—unadorned, unyielding, uninterrupted. It is not a gate, nor an enclosure. It is a pause. A decision to withhold. The house does not begin with rooms, but with this moment of refusal where the outside must wait, and the inside prepares itself to unfold.

The vertical mass—taller and bolder than its surroundings—holds space with quiet assertion. It is a moment where the body halts, the eye lifts, and attention sharpens. A pause that anchors the threshold just before stepping inside.

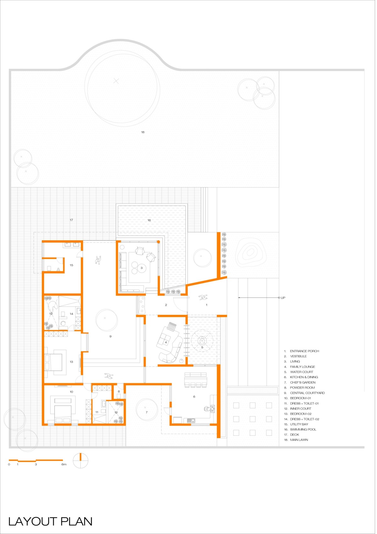
Beyond this first encounter, A compact foyer compresses movement before releasing it into a linear grid that balances openness with order. The living space is modestly sunken, bringing the water’s surface in close alignment with the interior edge blurring horizon and home. Private spaces are arranged along a clear linear grid, with verandahs and courtyards easing the transition between inside and outside.

Vadodara,Gujarat,India

Architects : Maanchitra
Area : 25000 sq. ft.
Year of Completion : 2024
Website : https://www.instagram.com/maanchitra_/

Entrance Porch of The Silent Wall by Maanchitra


Entrance Porch of The Silent Wall by Maanchitra


Living room of The Silent Wall by Maanchitra


Living room of The Silent Wall by Maanchitra


Living room of The Silent Wall by Maanchitra


Central Courtyard of The Silent Wall by Maanchitra

The house leans on elemental materials, rough natural stone, untreated wood, and lime-washed surfaces that bring warmth without finish. Avoiding laminates, polish, and synthetic gloss, the palette was kept intentionally raw, allowing materials to breathe, weather, and carry their age with quiet dignity. Imperfection was not a flaw, but a choice—a way to let the passage of time become part of the architecture. Artworks and handcrafted objects are not added but embedded—each niche, surface, and insert treated as part of a larger rhythm.

Though minimal in composition, the house holds a quiet intensity. It unfolds slowly, revealing itself through everyday transitions: stepping from a shaded corridor into a sunlit courtyard, or walking toward the stillness of the pool. The first gesture was a wall but beyond that, it is a study in openness.

It is a house of transitions, from light to shadow, wall to water, closeness to expanse.
“It’s a home that doesn’t reveal itself — it reveals you.”


Dining of The Silent Wall by Maanchitra


Water Court of The Silent Wall by Maanchitra


Bedroom of The Silent Wall by Maanchitra


Toilet of The Silent Wall by Maanchitra


Toilet of The Silent Wall by Maanchitra


Lawn view of The Silent Wall by Maanchitra


Night exterior view of The Silent Wall by Maanchitra


Plan of The Silent Wall by Maanchitra




Most Visited Articles




Subscribe

Get our latest article and updates delivered straight to your inbox.