The wedge house, located in Vizhinyam, Kerala is a single-family home built on a site of 23.48 cents in a quiet, calm, and peaceful areaIntended to be a vacation home, the client wanted a space where they could relax and enjoy a break from their busy schedules. The basic zoning on site was done with careful consideration to the local micro-climate. This resulted in the building being oriented along the east-west axis with the longer facades facing north and south. The principle concept of this project was the modern interpretation of Kerala's traditional courtyard houses. The planning was initiated by keeping the courtyard as the central key featureThe connectivity and functionality of spaces around it were then slowly developed. Traditional courtyard designs are usually naturally ventilated and have an open-to-sky construction. The double-height central courtyard is surrounded by common areas such as dining, living, and prayer areas. Since the client had requested a fully air-conditioned home, all the facades facing the courtyard had sliding glass doors that could be closed when air-conditioned or kept open at other times. Due to the site’s proximity to an airport, it was important to ensure that all the glass partitions and windows were designed to be vibration-resistant. These partitions play a huge role in visual connectivity around the space. The wind direction in Kerala is usually from southwest and northeast direction. This was also an important consideration which affected the design of the home. The courtyard has openings on east, west and south wall at terrace level to allow for maximum cross ventilation. The south west wall is raised which results in a slanted roof with a glass skylight on it which brings in diffused east light making the space completely lit throughout the day. This double-height slanted courtyard also facilitates a stack effect for better micro-climatic conditions within the space. On the first floor, the most frequently used space is the family living roomlocated on the northeast corner of the house with an open terrace on the west. Tall windows were designed on the east façade by raising the north The wedge house, located at Vizhinyam, Kerala is a single-family home built on a site of 23.48 cents in a quiet, calm, and peaceful area. Intended to be a vacation home, the client wanted a space where they could relax and enjoy a break from their busy schedules. The basic zoning on site was done with careful consideration of the local micro-climate. This resulted in the building being oriented along the east-west axis with the longer facades facing north and south.


The principle concept of this project was the interpretation of Kerala's traditional courtyard concept to suit the requirements of the modern man. The planning was initiated by keeping the courtyard as the central key feature. The connectivity and functionality of spaces around it were then slowly developed. Traditional courtyard designs are usually naturally ventilated and have an open-to-sky construction. However, in the current context, there is a requirement wherein the client needed to use the abutting spaces as air-conditioned spaces during the peak of summer and be able to completely cut off the noise from outside. So the courtyard had to be designed as a space that can be switched between mechanical ventilation and natural ventilation as the need arises. 

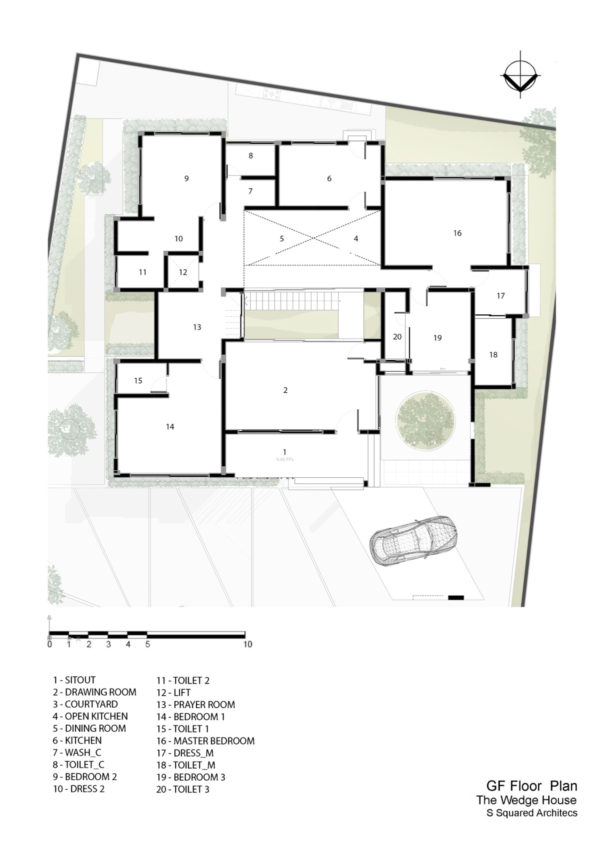
The double-height central courtyard is surrounded by common areas such as dining, living, and prayer areas. Since the client had requested a fully air-conditioned home, all the facades facing the courtyard had sliding glass doors that could be closed when air-conditioned or kept open at other times. Due to the site’s proximity to an airport, it was important to ensure that all the glass partitions and windows were designed to be vibration-resistant. These partitions play a huge role in visual connectivity around the space.

The wind direction in Kerala is usually from the southwest and northeast direction. This was also an important consideration that affected the design of the home. The courtyard has openings on the east, west, and south wall at the terrace level to allow for maximum cross ventilation. The southwest wall is raised which results in a slanted roof with a glass skylight on it which brings in diffused east light making the space completely lit throughout the day. This double-height slanted courtyard also facilitates a stack effect for better micro-climatic conditions within the space.

Trivandrum,Kerala,India

Architects : S Squared Architects
Area : 5500 sq.ft.
Year of Completion : 2020
Website : https://ssquaredarchitects.com/

On the first floor, the most frequently used space is the family living room, located on the north east corner of the house with an open terrace on the west. Since the client was insistent that this space should receive maximum east light, tall windows were designed on the east facade by raising the northeast corner wall. A double skin wall was introduced to protect its inhabitants from the harsh, direct sunlight. These slanted wall and louvers on east wall made it possible to bring maximum diffused east light into the space. A large tree was proposed on the west side as a part of the structure to shade the open terrace area in front of the family living. A similar double skin wall was designed on the west side to protect it from harsh sunlight. These skin walls are constructed with Ferro cement panels to make them more cost-effective and lightweight.


The client’s dream for this home was to have a relaxing and peaceful space. The interiors design of the houses reflect this and was inspired by ‘Zen’ and ‘Biophilic’ concepts and principles. The Japanese Zen style is all about creating an environment of peace and relaxation. It involves neutral colours, minimalist and simple furniture and decorations, and features that bring balance and clean lines. A Biophilic design plays on our evolutionary need to be close to the natural world, and is often described as 'architecture of life'. Biophilic interior design is all about incorporating nature within built spaces, good natural daylight, natural color schemes and a large amount of house plants. The functionality and climatology were the key ideas that brought up the unique form of the house.


Isometric exploded view of the Wedge House



Sectional Views





Most Visited Articles




Subscribe

Get our latest article and updates delivered straight to your inbox.